









Book your tour. Save an average of $18,473. We'll handle the rest.
We collect exclusive builder offers, book your tours, and support you from start to housewarming.
- Confirmed tours
- Get matched & compare top deals
- Expert help, no pressure
- No added fees
Estimated value based on Jome data, T&C apply













































Why tour with Jome?
- No pressure toursTour at your own pace with no sales pressure
- Expert guidanceGet insights from our home buying experts
- Exclusive accessSee homes and deals not available elsewhere
Jome is featured in
- Single-Family
- $436.58/sqft
- $325/monthly HOA
- 0.09-acre lot
Home description
Experience Echo at Crabapple by Arkan Homes—an exclusive collection of 23 luxury residences set in the heart of Downtown Crabapple in Milton, one of Georgia’s most desirable and storied communities. Tucked amid rolling pastoral landscapes and premier equestrian estates, this boutique neighborhood perfectly marries timeless Southern charm with elevated modern design. Residents enjoy unparalleled convenience with immediate access to top-performing schools, fine dining, and the attractions of Alpharetta, Avalon, Roswell, and Atlanta.
Every home is intentionally curated with thoughtful 360-degree craftsmanship, from irrigated landscaping and architecturally distinctive elevations to rounded gutters and steel carriage-style garage doors. Seamless indoor-outdoor living defines the community, with options such as private courtyards, rooftop terraces, expansive decks, and dramatic outdoor fireplaces—ideal for everyday living and extraordinary entertaining.
Inside, the homes showcase a refined level of finish: 10-foot ceilings on the main and terrace levels, wide-plank hardwood flooring, detailed accent walls, multi-slide and French doors, and frameless glass showers. Optional hydraulic elevators provide effortless access between all levels. Gourmet kitchens elevate culinary experiences with oversized quartz islands, JennAir appliance suites, custom range hoods, open shelving, and separate sculleries offering additional prep space and a second dishwasher.
Primary suites evoke a true spa retreat with tray ceilings, freestanding soaking tubs, rain showers, Delta designer fixtures, and fully customized walk-in closets. Smart and thoughtful features throughout—including dual 50-gallon water heaters, Carrier HVAC systems with digital thermostats, in-wall pest control, and premium designer lighting—ensure exceptional comfort, efficiency, and peace of mind.
Echo at Crabapple offers not just a home—but a lifestyle of elegance, convenience, and modern sophistication in one of Milton’s most premier settings.
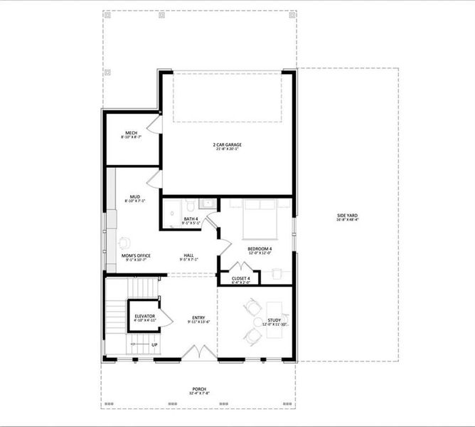
Homesite 2 showcases the Rosewood floor plan, a flexible three-level layout. Off the entry, a versatile bonus room serves perfectly as an office, lounge, or playroom. The terrace level offers a private bedroom and bath ideal for an in-law suite or guest retreat, along with a mudroom and convenient access to the two-car garage.
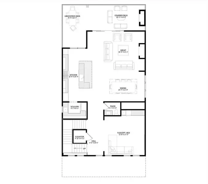
The main level is built for both everyday living and entertaining, featuring a chef’s kitchen with an oversized island, a full scullery, and open views to the family room with a fireplace and custom built-ins. An airy dining area seats 8+ and fills the space with natural light. This level also includes a bedroom, full bath, and separate powder room. Multi-slide doors open to a spacious deck with covered and uncovered areas and a fireplace for year-round use.
The upper level hosts the serene primary suite, highlighted by abundant natural light and a tray ceiling with detailed wood inlays. The primary bath includes a double vanity, separate frameless shower, and soaking tub. A secondary bedroom with an en suite bath, a generous loft, and a laundry room with a sink complete this floor. Thoughtful upgrades include a custom coffee station, a twin window that fills the kitchen with natural light, and elegant trim details throughout.
Residents also enjoy community amenities including a private dog park, gathering green, and wellness garden. Projected completion: March 2026.
Atlanta Fine Homes Sotheby's International, MLS 7682188
May also be listed on the Arkan Homes website
Information last verified by Jome: Today at 2:03 AM (April 21, 2026)
Home highlights
Home of the Atlanta Braves with modern ballpark vibes, dining, and housing in the vibrant Battery Atlanta district.
Book your tour. Save an average of $18,473. We'll handle the rest.
We collect exclusive builder offers, book your tours, and support you from start to housewarming.
- Confirmed tours
- Get matched & compare top deals
- Expert help, no pressure
- No added fees
Estimated value based on Jome data, T&C apply
Home details
- Property status:
- Pending/Under contract
- Lot size (acres):
- 0.09
- Size:
- 3,729 sqft
- Stories:
- 3+
- Beds:
- 4
- Baths:
- 4
- Half baths:
- 1
- Garage spaces:
- 2
- Fence:
- Wood Fence, Fenced Yard
Construction details
- Builder Name:
- Arkan Homes
- Year Built:
- 2026
- Roof:
- Roof Gutter, Composition Roofing
Home features & finishes
- Construction Materials:
- CementBrick
- Cooling:
- Central Air
- Flooring:
- Ceramic FlooringCarpet FlooringTile FlooringHardwood Flooring
- Foundation Details:
- Slab
- Garage/Parking:
- Door OpenerGarageRear Entry Garage/ParkingAttached Garage
- Home amenities:
- Home Accessibility FeaturesGreen Construction
- Interior Features:
- Ceiling-HighWalk-In ClosetFoyerBuilt-in BookshelvesTray CeilingBreakfast BarWalk-In PantryLoftSeparate ShowerDouble Vanity
- Kitchen:
- DishwasherMicrowave OvenRefrigeratorDisposalGas CooktopKitchen IslandGas OvenKitchen Range
- Laundry facilities:
- Laundry Facilities On Upper LevelUtility/Laundry Room
- Lighting:
- Lighting
- Property amenities:
- BarDeckOutdoor FireplaceSoaking TubLandscapingCabinetsTerraceElevatorIrrigationFireplaceYardSmart Home SystemPorch
- Rooms:
- KitchenOffice/StudyGuest RoomDining RoomFamily RoomLiving RoomOpen Concept FloorplanPrimary Bedroom Upstairs
- Security system:
- Fire Alarm SystemCarbon Monoxide Detector

Get a consultation with our New Homes Expert
- See how your home builds wealth
- Plan your home-buying roadmap
- Discover hidden gems
Utility information
- Heating:
- Water Heater, Central Heating, Gas Heating
- Sewer:
- Public Sewer
- Utilities:
- Electricity Available, Natural Gas Available, Underground Utilities, Phone Available, Sewer Available, Water Available
- Water source:
- Public

Community details
Echo at Crabapple
by Arkan Homes, Alpharetta, GA
- 7 plans
- 3,000 - 4,600 sqft
View Echo at Crabapple details
Community amenities
- Dog Park
- Greenbelt View
- Walking, Jogging, Hike Or Bike Trails
- Shopping Nearby
Floor plans in Echo at Crabapple
About the builder - Arkan Homes
Neighborhood
Home address
Schools in Fulton County School District
GreatSchools’ Summary Rating calculation is based on 4 of the school’s themed ratings, including test scores, student/academic progress, college readiness, and equity. This information should only be used as a reference. Jome is not affiliated with GreatSchools and does not endorse or guarantee this information. Please reach out to schools directly to verify all information and enrollment eligibility. Data provided by GreatSchools.org © 2025
Places of interest
Getting around
Air quality
Noise level
A Soundscore™ rating is a number between 50 (very loud) and 100 (very quiet) that tells you how loud a location is due to environmental noise.

Considering this home?
Our expert will guide your tour, in-person or virtual
Need more information?
Text or call (888) 545-5198
Financials
Estimated monthly payment
Let us help you find your dream home
How many bedrooms are you looking for?
Similar homes nearby
Recently added communities in this area
Nearby communities in Milton
New homes in nearby cities
More New Homes in Milton, GA
Atlanta Fine Homes Sotheby's International, MLS 7682188
Some IDX listings have been excluded from this IDX display. Listings identified with the FMLS IDX logo come from FMLS and are held by brokerage firms other than the owner of this website. The listing brokerage is identified in any listing details. Information is deemed reliable but is not guaranteed. If you believe any FMLS listing contains material that infringes your copyrighted work please click here to review our DMCA policy and learn how to submit a takedown request. © 2025 First Multiple Listing Service, Inc.
Read moreLast checked Apr 21, 1:40 am
- Jome
- New homes search
- Georgia
- Atlanta Metropolitan Area
- Fulton County
- Milton
- Echo at Crabapple
- 233 Lask Ln, Milton, GA 30004
































