














Book your tour. Save an average of $18,473. We'll handle the rest.
- Confirmed tours
- Get matched & compare top deals
- Expert help, no pressure
- No added fees
Estimated value based on Jome data, T&C apply

























Why tour with Jome?
- No pressure toursTour at your own pace with no sales pressure
- Expert guidanceGet insights from our home buying experts
- Exclusive accessSee homes and deals not available elsewhere
Jome is featured in
- Townhouse
- Quick move-in
- $273.48/sqft
- $125/monthly HOA
Home description
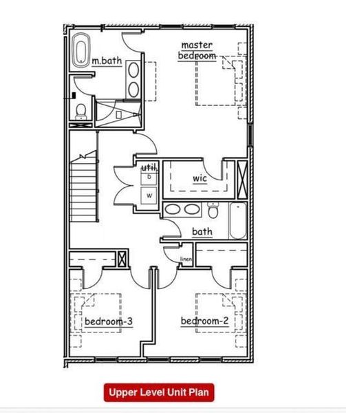
Discover the perfect fusion of luxury and leisure at Skyview on Broad, nestled in the heart of Downtown Sugar Hill. Kittle Homes,a 2 time Obie award recipient proudly presents a stunning new collection of three-story luxury townhomes, thoughtfully designed to complement your lifestyle. Entertain with ease in this expansive floorplan. Kitchen features sleek hood vented to the exterior, quartz countertops, designer backsplash, apron front sink and Bosch Appliances. Kitchen access to private deck from kitchen area. This open floorplan has an open-concept dining area and fireside family room with linear fireplace and tiles to ceiling for that transitional look that is perfect for everyday use or for entertaining. Owner's ensuite features freestanding tub, separate shower with frameless shower door with tiles to the ceiling, and double vanity. Two feature walls add class and charm to the home. The all-brick exteriors throughout the community evoke a sense of timeless luxury that will make anyone proud to call this home. Gas lanterns grace your front door to add charm and chic! Don’t miss this opportunity to be part of one of Sugar Hill’s most luxurious new construction communities where modern living meets hometown charm. Just outside your door, immerse yourself in the dynamic yet charming atmosphere of Sugar Hill’s walkable Downtown. Explore an array of shops, restaurants, and entertainment options, all within reach. Year-round festivals and community celebrations bring the neighborhood to life, making it a welcoming and vibrant place for all ages. A community Dog Park is there for your pooch to run around and enjoy outdoors. PICTURES ARE NOT INDICATIVE OF THE FLOORPLAN, BUT ARE REPRESENATIVE OF FINISHES. PICTURES ARE OF A DIFFERENT FLOORPLAN. Projected completion date FALL 2025.
Atlanta Communities, MLS 7683610
May also be listed on the Kittle Homes website
Information last verified by Jome: Today at 2:29 AM (December 5, 2025)
Home highlights
Versatile arena in Duluth hosting concerts, sports, and events near Gwinnett’s shops and residential communities.
Book your tour. Save an average of $18,473. We'll handle the rest.
We collect exclusive builder offers, book your tours, and support you from start to housewarming.
- Confirmed tours
- Get matched & compare top deals
- Expert help, no pressure
- No added fees
Estimated value based on Jome data, T&C apply
Home details
- Property status:
- Move-in ready
- Lot size (acres):
- 0.10
- Size:
- 2,651 sqft
- Beds:
- 4
- Baths:
- 3
- Half baths:
- 1
- Garage spaces:
- 2
- Fence:
- No Fence
Construction details
- Builder Name:
- Kittle Homes
- Year Built:
- 2025
- Roof:
- Composition Roofing
Home features & finishes
- Construction Materials:
- CementBrick
- Cooling:
- Central Air
- Flooring:
- Laminate FlooringCarpet FlooringTile Flooring
- Foundation Details:
- SlabConcrete Perimeter
- Garage/Parking:
- Door OpenerGarageRear Entry Garage/ParkingAttached Garage
- Interior Features:
- Ceiling-HighCrown MoldingPantrySeparate ShowerDouble Vanity
- Kitchen:
- DishwasherOvenDisposalGas CooktopKitchen IslandGas Oven
- Laundry facilities:
- Laundry Facilities In HallLaundry Facilities On Upper Level
- Lighting:
- Lighting
- Property amenities:
- DeckSoaking TubLandscapingCabinetsElectric FireplacePatioFireplace
- Rooms:
- KitchenFamily RoomOpen Concept Floorplan
- Security system:
- Smoke DetectorCarbon Monoxide Detector
Utility information
- Heating:
- Zoned Heating, Central Heating, Forced Air Heating
- Utilities:
- Electricity Available, Natural Gas Available, Underground Utilities, Cable Available, Sewer Available, Water Available

Community details
Skyview On Broad
by Kittle Homes, Sugar Hill, GA
- 3 homes
- 2 plans
- 2,231 - 2,384 sqft
View Skyview On Broad details
Community amenities
- City View
- Dog Park
- Sidewalks Available
- Shopping Nearby
More homes in Skyview On Broad
Floor plans in Skyview On Broad
About the builder - Kittle Homes
Neighborhood
Home address
- City:
- Sugar Hill
- County:
- Gwinnett
- Zip Code:
- 30518
Schools in Gwinnett County School District
GreatSchools’ Summary Rating calculation is based on 4 of the school’s themed ratings, including test scores, student/academic progress, college readiness, and equity. This information should only be used as a reference. Jome is not affiliated with GreatSchools and does not endorse or guarantee this information. Please reach out to schools directly to verify all information and enrollment eligibility. Data provided by GreatSchools.org © 2025
Places of interest
Getting around
Air quality
Noise level
A Soundscore™ rating is a number between 50 (very loud) and 100 (very quiet) that tells you how loud a location is due to environmental noise.
Natural hazards risk
Climate hazards can impact homes and communities, with risks varying by location. These scores reflect the potential impact of natural disasters and climate-related risks on Gwinnett County
Provided by FEMA

Considering this home?
Our expert will guide your tour, in-person or virtual
Need more information?
Text or call (888) 486-2818
Financials
Estimated monthly payment
Similar homes nearby
Recently added communities in this area
Nearby communities in Sugar Hill
New homes in nearby cities
More New Homes in Sugar Hill, GA
Atlanta Communities, MLS 7683610
Some IDX listings have been excluded from this IDX display. Listings identified with the FMLS IDX logo come from FMLS and are held by brokerage firms other than the owner of this website. The listing brokerage is identified in any listing details. Information is deemed reliable but is not guaranteed. If you believe any FMLS listing contains material that infringes your copyrighted work please click here to review our DMCA policy and learn how to submit a takedown request. © 2025 First Multiple Listing Service, Inc.
Read moreLast checked Dec 5, 1:40 pm
- Home
- New homes
- Georgia
- Atlanta Metropolitan Area
- Gwinnett County
- Sugar Hill
- Skyview On Broad
- 345 Sugarview Rd, Sugar Hill, GA 30518































