














Book your tour. Save an average of $18,473. We'll handle the rest.
- Confirmed tours
- Get matched & compare top deals
- Expert help, no pressure
- No added fees
Estimated value based on Jome data, T&C apply

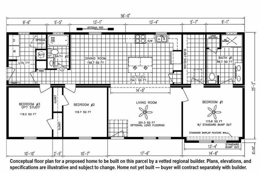
- 3 bd
- 2 ba
- 1,420 sqft
2 Middle Ground Church Rd, Chester, GA 31012
Why tour with Jome?
- No pressure toursTour at your own pace with no sales pressure
- Expert guidanceGet insights from our home buying experts
- Exclusive accessSee homes and deals not available elsewhere
Jome is featured in
- Single-Family
- Quick move-in
- $169.01/sqft
- 1.10-acre lot
Home description
To-be-built new home package on a 1.1-acre wooded homesite in Dodge County, GA. Home not yet built. This coordinated land-home offering pairs a build-ready parcel with a vetted regional builder, providing a clear path to new construction at an accessible price. New construction on acreage at this price level is extremely limited locally, offering a strong alternative to older resale homes. The property features approx. 140 ft of paved road frontage on Middle Ground Church Rd, a flat homesite, & mature trees. Located near State Route 518 with access to I-16, approx. 15 miles from Eastman. Electricity available; well & septic included. Residential zoning.
How it works: Select home design & builder specs, secure construction-to-perm financing, then close on the land & begin construction. Home is partially built offsite with a 5–6 month timeline. Buyer contracts directly with the builder. Land & home sold separately.
EXP Realty, LLC., MLS 7681409
Information last verified by Jome: Today at 2:17 AM (January 20, 2026)
Book your tour. Save an average of $18,473. We'll handle the rest.
We collect exclusive builder offers, book your tours, and support you from start to housewarming.
- Confirmed tours
- Get matched & compare top deals
- Expert help, no pressure
- No added fees
Estimated value based on Jome data, T&C apply
Home details
- Property status:
- Move-in ready
- Lot size (acres):
- 1.10
- Size:
- 1,420 sqft
- Stories:
- 1
- Beds:
- 3
- Baths:
- 2
- Fence:
- No Fence
Construction details
- Year Built:
- 2025
- Roof:
- Shingle Roofing
Home features & finishes
- Construction Materials:
- Vinyl Siding
- Cooling:
- Ceiling Fan(s)Central Air
- Flooring:
- Laminate FlooringVinyl FlooringCarpet Flooring
- Foundation Details:
- Slab
- Interior Features:
- Walk-In ClosetDouble Vanity
- Kitchen:
- DishwasherKitchen RangeElectric Oven
- Laundry facilities:
- Common Laundry Facilities
- Property amenities:
- BackyardYard
- Rooms:
- Primary Bedroom On MainDining RoomLiving RoomPrimary Bedroom Downstairs
- Security system:
- Smoke DetectorCarbon Monoxide Detector

Get a consultation with our New Homes Expert
- See how your home builds wealth
- Plan your home-buying roadmap
- Discover hidden gems
Utility information
- Heating:
- Central Heating
- Utilities:
- Electricity Available, Phone Available, Sewer Available, Water Available
Community amenities
- Woods View
Neighborhood
Home address
Schools in Dodge County School District
- Grades 03-05Publicdodge county elementary school10.3 mi167 orphans cemetery roadna
- Grades PK-02Publicdodge county primary school11.7 mi1118 mcrea hwyna
GreatSchools’ Summary Rating calculation is based on 4 of the school’s themed ratings, including test scores, student/academic progress, college readiness, and equity. This information should only be used as a reference. Jome is not affiliated with GreatSchools and does not endorse or guarantee this information. Please reach out to schools directly to verify all information and enrollment eligibility. Data provided by GreatSchools.org © 2025
Getting around
Natural hazards risk
Provided by FEMA

Considering this home?
Our expert will guide your tour, in-person or virtual
Need more information?
Text or call (888) 486-2818
Financials
Estimated monthly payment
Let us help you find your dream home
How many bedrooms are you looking for?
Similar homes nearby
Recently added communities in this area
Nearby communities in Chester
New homes in nearby cities
More New Homes in Chester, GA
EXP Realty, LLC., MLS 7681409
Some IDX listings have been excluded from this IDX display. Listings identified with the FMLS IDX logo come from FMLS and are held by brokerage firms other than the owner of this website. The listing brokerage is identified in any listing details. Information is deemed reliable but is not guaranteed. If you believe any FMLS listing contains material that infringes your copyrighted work please click here to review our DMCA policy and learn how to submit a takedown request. © 2025 First Multiple Listing Service, Inc.
Read moreLast checked Jan 20, 1:40 am
- Jome
- New homes search
- Georgia
- Dodge County
- Chester
- 2 Middle Ground Church Rd, Chester, GA 31012




