



Book your tour. Save an average of $18,473. We'll handle the rest.
- Confirmed tours
- Get matched & compare top deals
- Expert help, no pressure
- No added fees
Estimated value based on Jome data, T&C apply
- 5 bd
- 5.5 ba
1034 Riverclift Dr, Conyers, GA 30094
Why tour with Jome?
- No pressure toursTour at your own pace with no sales pressure
- Expert guidanceGet insights from our home buying experts
- Exclusive accessSee homes and deals not available elsewhere
Jome is featured in
- Single-Family
- Under construction
- $500/annual HOA
- 0.59-acre lot
Home description
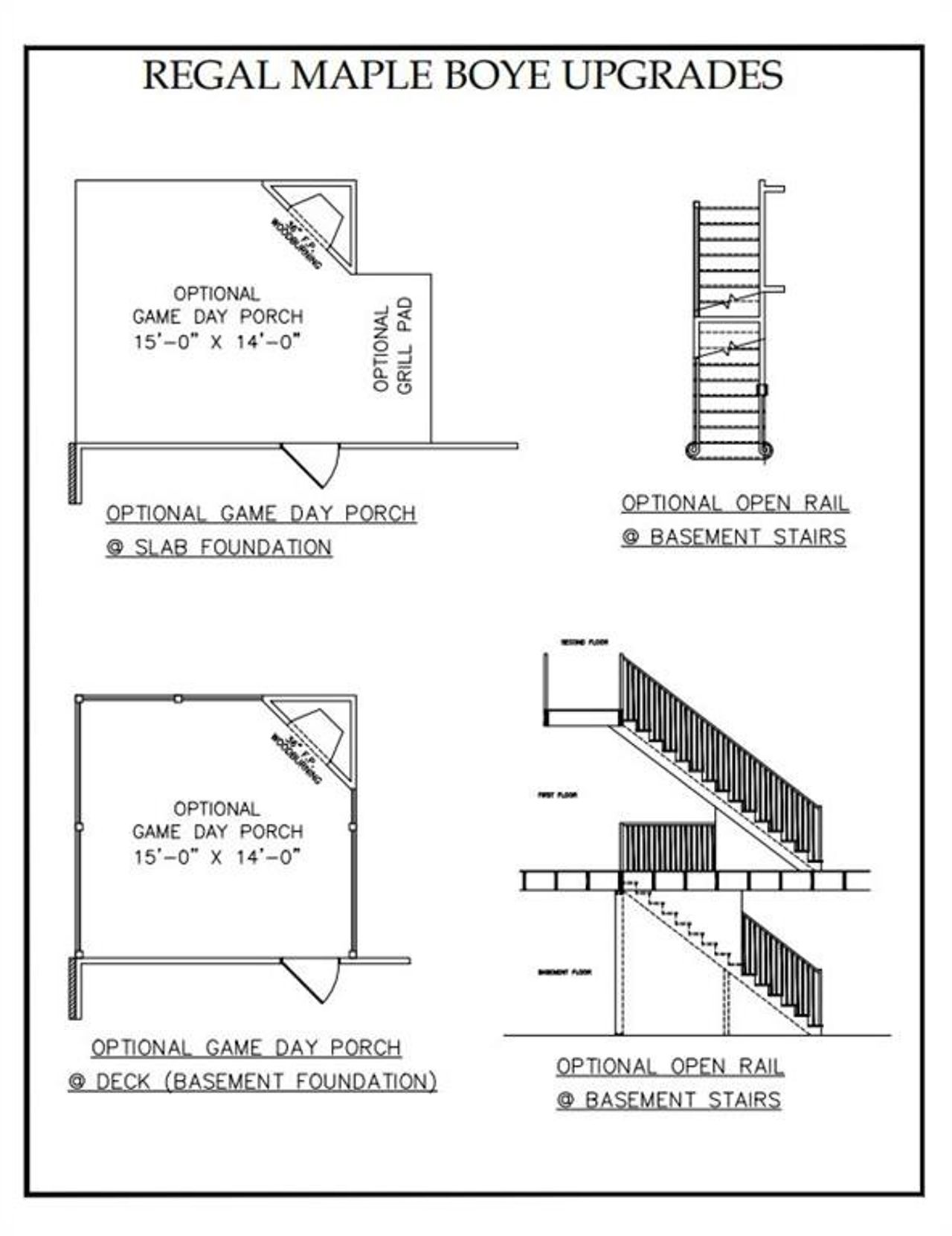
The Maple Regal: Where Elegance Meets Entertainment! Step into timeless sophistication with The Maple Regal-a stunning 5-bedroom, 4.5-bathroom residence designed for luxurious living and effortless entertaining. From the moment you arrive, the home's stately brick exterior (three sides with a water table rear) and charming stucco accents set the tone for what's inside. Grand Entrance & Living Spaces Enter through double doors into a soaring two-story foyer, anchored by a dramatic staircase. The expansive family room features a cozy fireplace flanked by floating shelving and opens to a breathtaking catwalk that overlooks the foyer, living area, gourmet kitchen, and breakfast area. Chef's Dream Kitchen The heart of the home is a gourmet kitchen equipped with stainless steel appliances, 42" cabinetry, granite countertops, a stylish tile backsplash, and a central island with a farm sink-perfect for casual meals or hosting guests. Main-Level Guest Retreat: Your visitors will appreciate the comfort of an oversized guest en-suite on the main level, offering privacy and convenience. Work & Dine in Style. Need a home office? The separate living room/study provides a quiet workspace. Meanwhile, the formal dining room-with its decorative ceiling-sets the stage for unforgettable dinners with family and friends. A spacious 3-car side-entry garage ensures plenty of room for vehicles, storage, and hobbies. Luxurious Owner's Suite Upstairs, the owner's retreat features a tray ceiling, a cozy sitting area with a fireplace, and a massive walk-in closet. The spa-inspired bathroom includes a vaulted ceiling, double vanity, custom-tiled enclosed shower, stand-alone tub wrapped in tile, and a linen closet. Optional Upgrades Customize your Maple Regal experience with optional features like a media room, gameday porch, finished basement, and a cutting-edge technology package. Elevations, features, and pricing may vary by location. Secondary photos are STOCK PHOTOS
Keller Williams Realty Atl Partners, MLS 7676014
Information last verified by Jome: Today at 2:17 AM (December 6, 2025)
Home highlights
Georgia’s iconic park featuring scenic trails, a historic granite dome, and year-round family attractions near Atlanta.
Book your tour. Save an average of $18,473. We'll handle the rest.
We collect exclusive builder offers, book your tours, and support you from start to housewarming.
- Confirmed tours
- Get matched & compare top deals
- Expert help, no pressure
- No added fees
Estimated value based on Jome data, T&C apply
Home details
- Property status:
- Under construction
- Lot size (acres):
- 0.59
- Stories:
- 2
- Beds:
- 5
- Baths:
- 5
- Half baths:
- 1
- Garage spaces:
- 3
- Fence:
- No Fence
Construction details
- Year Built:
- 2026
- Roof:
- Composition Roofing
Home features & finishes
- Construction Materials:
- StuccoBrick
- Cooling:
- Ceiling Fan(s)Central Air
- Flooring:
- Ceramic FlooringCarpet FlooringTile FlooringHardwood Flooring
- Foundation Details:
- Slab
- Garage/Parking:
- ParkingDoor OpenerGarageSide Entry Garage/ParkingRear Entry Garage/Parking
- Home amenities:
- InternetHome Accessibility FeaturesGreen Construction
- Interior Features:
- Ceiling-HighCeiling-VaultedWalk-In ClosetFoyerTray CeilingWalk-In PantrySeparate ShowerDouble Vanity
- Kitchen:
- DishwasherMicrowave OvenOvenKitchen IslandDouble Oven
- Laundry facilities:
- Laundry Facilities On Upper LevelUtility/Laundry Room
- Property amenities:
- BasementDeckOutdoor FireplaceCabinetsFireplace
- Rooms:
- Sitting AreaKitchenDining RoomFamily RoomSeparate Living and Dining
- Security system:
- Security System
Utility information
- Heating:
- Electric Heating, Zoned Heating, Water Heater, Central Heating, Forced Air Heating
- Utilities:
- Electricity Available, Natural Gas Available, Underground Utilities, Phone Available, Cable Available, Water Available, High Speed Internet Access
Neighborhood
Home address
Schools in Rockdale County School District
- Grades 04-12Privatehills academy4.2 mi301 honey creek rd sena
GreatSchools’ Summary Rating calculation is based on 4 of the school’s themed ratings, including test scores, student/academic progress, college readiness, and equity. This information should only be used as a reference. Jome is not affiliated with GreatSchools and does not endorse or guarantee this information. Please reach out to schools directly to verify all information and enrollment eligibility. Data provided by GreatSchools.org © 2025
Places of interest
Getting around
Air quality
Natural hazards risk
Climate hazards can impact homes and communities, with risks varying by location. These scores reflect the potential impact of natural disasters and climate-related risks on Rockdale County
Provided by FEMA

Considering this home?
Our expert will guide your tour, in-person or virtual
Need more information?
Text or call (888) 486-2818
Financials
Similar homes nearby
Recently added communities in this area
Nearby communities in Conyers
New homes in nearby cities
More New Homes in Conyers, GA
Keller Williams Realty Atl Partners, MLS 7676014
Some IDX listings have been excluded from this IDX display. Listings identified with the FMLS IDX logo come from FMLS and are held by brokerage firms other than the owner of this website. The listing brokerage is identified in any listing details. Information is deemed reliable but is not guaranteed. If you believe any FMLS listing contains material that infringes your copyrighted work please click here to review our DMCA policy and learn how to submit a takedown request. © 2025 First Multiple Listing Service, Inc.
Read moreLast checked Dec 6, 7:40 am
- Home
- New homes
- Georgia
- Atlanta Metropolitan Area
- Rockdale County
- Conyers
- 1034 Riverclift Dr, Conyers, GA 30094


























