








Book your tour. Save an average of $18,473. We'll handle the rest.
We collect exclusive builder offers, book your tours, and support you from start to housewarming.
- Confirmed tours
- Get matched & compare top deals
- Expert help, no pressure
- No added fees
Estimated value based on Jome data, T&C apply



























































- 4 bd
- 3 ba
- 2,970 sqft
2956 Blalock Mountain Rd, Talking Rock, GA 30175
Why tour with Jome?
- No pressure toursTour at your own pace with no sales pressure
- Expert guidanceGet insights from our home buying experts
- Exclusive accessSee homes and deals not available elsewhere
Jome is featured in
- Single-Family
- Quick move-in
- $265.32/sqft
- $950/annual HOA
Home description
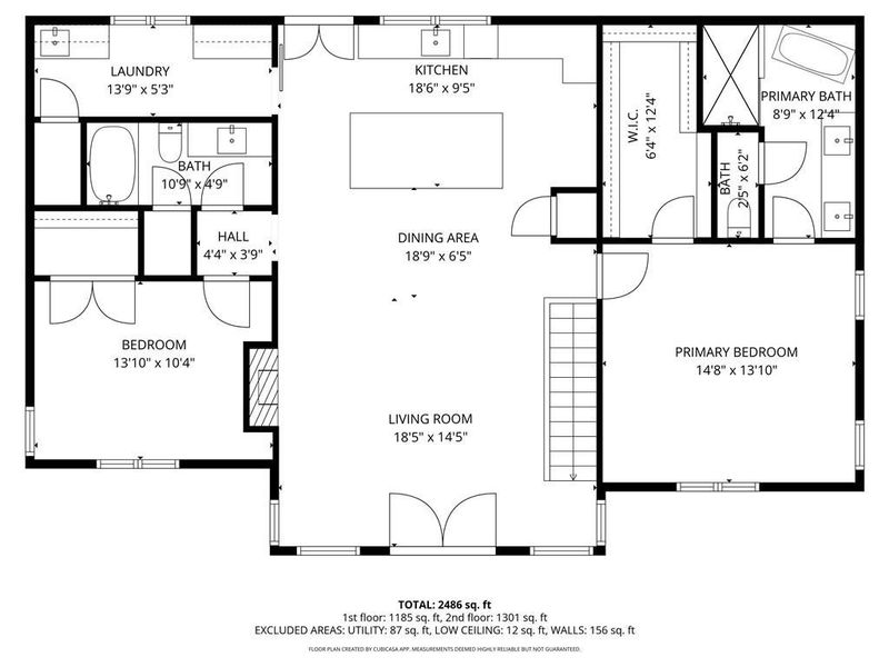
Welcome to this custom-designed unique mountain new construction in the gated community of Creekside Crossing in Talking Rock. This is more than just another Chalet - it's a thoughtfully crafted, versatile getaway where no detail has been overlooked and every design choice reflects quality, intention, and timeless mountain elegance. Set on 3.76 gently rolling acres, this 4-bedroom, 3-bath almost 3000 sqft home blends elevated craftsmanship with warm, inviting charm. The main level offers effortless living with a spacious primary suite and elegant primary bathroom, and two additional bedrooms with two full baths. The open-concept modern-style kitchen with oversized quartz covered island and matching backsplash flows seamlessly into the great room featuring a stone fireplace, creating the perfect setting for entertaining, relaxing by the fire, or simply enjoying peaceful mountain views. A well-positioned laundry room/mudroom on the main level adds everyday convenience. The fully finished terrace level nearly doubles your living space, featuring a stunning open living area with full wall wet bar, plus two additional bedrooms, a full bath, a generous recreation area - ideal for guests, extended family, or a secondary living space. Whether you envision game nights, movie evenings, or hosting long weekend visitors, this lower level offers both flexibility and comfort. Outdoor living truly shines here. Expansive covered stone veneer porches and gorgeous oversized wood decks invite you to unwind and take in the natural beauty surrounding you. From morning coffee to sunset gatherings, the setting feels private, serene, and intentionally designed to embrace the mountain lifestyle. Creekside Crossing offers a gated, amenity-rich mountain experience with access to Talking Rock Creek, UTV-friendly and hiking trails, and a brand-new clubhouse featuring a sundeck and infinity pool and more with breathtaking mountain views. Just minutes from Carter's Lake and conveniently located near Ellijay, Jasper, and Blue Ridge - with an easy drive to both Atlanta and Chattanooga - this home offers the rare combination of privacy, craftsmanship, recreation, and accessibility, making it ideal as a full-time residence, luxury getaway, or investment opportunity. The result is a truly breathtaking home where no detail has been overlooked.
Century 21 Connect Realty, MLS 7708467
Information last verified by Jome: Today at 2:28 AM (April 20, 2026)
Home highlights
Book your tour. Save an average of $18,473. We'll handle the rest.
We collect exclusive builder offers, book your tours, and support you from start to housewarming.
- Confirmed tours
- Get matched & compare top deals
- Expert help, no pressure
- No added fees
Estimated value based on Jome data, T&C apply
Home details
- Property status:
- Move-in ready
- Lot size (acres):
- 3.76
- Size:
- 2,970 sqft
- Stories:
- 1
- Beds:
- 4
- Baths:
- 3
- Fence:
- No Fence
Construction details
- Year Built:
- 2026
- Roof:
- Composition Roofing
Home features & finishes
- Construction Materials:
- Wood Siding
- Cooling:
- Ceiling Fan(s)Central Air
- Foundation Details:
- SlabConcrete Perimeter
- Home amenities:
- Green Construction
- Interior Features:
- Ceiling-HighCeiling-VaultedWalk-In ClosetPantryWet BarDouble Vanity
- Kitchen:
- DishwasherMicrowave OvenRefrigeratorGas CooktopKitchen IslandGas OvenKitchen Range
- Laundry facilities:
- Laundry Facilities In HallLaundry Facilities On Main LevelUtility/Laundry Room
- Lighting:
- Lighting
- Property amenities:
- BasementBalconyDeckGas Log FireplaceBackyardCabinetsPatioFireplaceYardPorch
- Rooms:
- Primary Bedroom On MainKitchenFamily RoomLiving RoomOpen Concept FloorplanPrimary Bedroom Downstairs
- Security system:
- Smoke DetectorCarbon Monoxide Detector

Get a consultation with our New Homes Expert
- See how your home builds wealth
- Plan your home-buying roadmap
- Discover hidden gems
Utility information
- Heating:
- Electric Heating, Zoned Heating, Water Heater, Central Heating
- Sewer:
- Septic Tank
- Utilities:
- Electricity Available, Other
- Water source:
- Well
Community amenities
- Woods View
- Club House
- Gated Community
- Community Pool
- BBQ Area
- Spa Zone
- Community Hot Tub
- Mountain(s) View
Neighborhood
Home address
- City:
- Talking Rock
- County:
- Gilmer
- Zip Code:
- 30175
Schools in Pickens County School District
- Grades PK-KGPrivatefirst baptist church of jasper pk and kindergarten7.8 mi198 e church stna
GreatSchools’ Summary Rating calculation is based on 4 of the school’s themed ratings, including test scores, student/academic progress, college readiness, and equity. This information should only be used as a reference. Jome is not affiliated with GreatSchools and does not endorse or guarantee this information. Please reach out to schools directly to verify all information and enrollment eligibility. Data provided by GreatSchools.org © 2025
Places of interest
Getting around
Air quality
Natural hazards risk
Provided by FEMA

Considering this home?
Our expert will guide your tour, in-person or virtual
Need more information?
Text or call (888) 545-5198
Financials
Estimated monthly payment
Let us help you find your dream home
How many bedrooms are you looking for?
Similar homes nearby
Recently added communities in this area
Nearby communities in Talking Rock
New homes in nearby cities
More New Homes in Talking Rock, GA
Century 21 Connect Realty, MLS 7708467
Some IDX listings have been excluded from this IDX display. Listings identified with the FMLS IDX logo come from FMLS and are held by brokerage firms other than the owner of this website. The listing brokerage is identified in any listing details. Information is deemed reliable but is not guaranteed. If you believe any FMLS listing contains material that infringes your copyrighted work please click here to review our DMCA policy and learn how to submit a takedown request. © 2025 First Multiple Listing Service, Inc.
Read moreLast checked Apr 20, 1:40 pm
- Jome
- New homes search
- Georgia
- Gilmer County
- Talking Rock
- 2956 Blalock Mountain Rd, Talking Rock, GA 30175

























