






























- 4 bd
- 3 ba
- 3,005 sqft
2123 April Dawn Trl, Thomson, GA 30824
- Single-Family
- $113.11/sqft
- 0.21-acre lot
- 148 days on Jome
New Homes for Sale Near 2123 April Dawn Trl, Thomson, GA 30824
About this Home
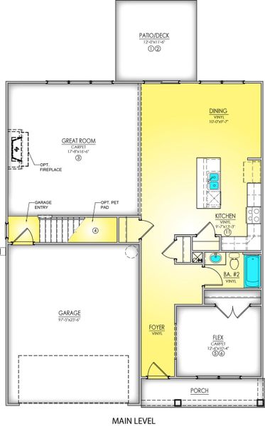
The Bradley II is our most requested floorplan -- and for good reason! Offering just over 3,000 square feet of beautifully designed living space, this home is the blueprint for large families or anyone looking for ALL the space to grow. The main level features an inviting open-concept layout. Immediately upon entry, a private home office with glass-paneled French doors and a full bathroom provides the perfect space for remote work or can easily double as a guest suite. The gourmet kitchen includes stainless steel appliances, an eat-in island, and a built-in Bluetooth sound system, opening seamlessly to a spacious dining area. The oversized living room complete with a cozy fireplace is ideal for entertaining.Upstairs, a huge central loft offers even more flexible living space. The private primary suite impresses with a box-tray ceiling, two walk-in closets, and a luxurious bath featuring dual vanities, a garden tub, a walk-in tile shower, and a linen closet for extra storage. Three additional bedrooms each include walk-in closets and share a full double-vanity bath.Currently under construction and available for showings NOW, this home combines smart design with exceptional comfort. Visit the Camellia Park site team--open daily--and ask about our current financing promotions! *finished photos are of previously completed builds of the same floorplan, photos will be updated as construction progresses*
May also be listed on the Great Southern Homes website
Information last verified by Jome: Friday at 6:08 AM (January 9, 2026)
Home details
- Property status:
- Sold
- Lot size (acres):
- 0.21
- Size:
- 3,005 sqft
- Beds:
- 4
- Baths:
- 3
- Garage spaces:
- 2
Construction details
- Builder Name:
- Great Southern Homes
Home features & finishes
- Garage/Parking:
- Garage

Community details
Camellia Park
by Great Southern Homes, Thomson, GA
- 4 homes
- 9 plans
- 1,661 - 3,005 sqft
View Camellia Park details
More homes in Camellia Park
- Home at address 2039 April Dawn Trl, Thomson, GA 30824

$299,900
Move-in ready- 4 bd
- 3 ba
- 2,225 sqft
2039 April Dawn Trl, Thomson, GA 30824
- Home at address 2045 April Dawn Trl, Thomson, GA 30824

$299,900
Move-in ready- 5 bd
- 3 ba
- 2,295 sqft
2045 April Dawn Trl, Thomson, GA 30824
Floor plans in Camellia Park
About the builder - Great Southern Homes
Neighborhood
Home address
Schools in McDuffie County School District
GreatSchools’ Summary Rating calculation is based on 4 of the school’s themed ratings, including test scores, student/academic progress, college readiness, and equity. This information should only be used as a reference. Jome is not affiliated with GreatSchools and does not endorse or guarantee this information. Please reach out to schools directly to verify all information and enrollment eligibility. Data provided by GreatSchools.org © 2025
Getting around
Air quality
Financials
Nearby communities in Thomson
Homes in Thomson by Great Southern Homes
Recently added communities in this area
Other Builders in Thomson, GA
Nearby sold homes
New homes in nearby cities
More New Homes in Thomson, GA
- Jome
- New homes search
- Georgia
- Mcduffie County
- Thomson
- Camellia Park
- 2123 April Dawn Trl, Thomson, GA 30824
































































