



Book your tour. Save an average of $18,473. We'll handle the rest.
- Confirmed tours
- Get matched & compare top deals
- Expert help, no pressure
- No added fees
Estimated value based on Jome data, T&C apply
Why tour with Jome?
- No pressure toursTour at your own pace with no sales pressure
- Expert guidanceGet insights from our home buying experts
- Exclusive accessSee homes and deals not available elsewhere
Jome is featured in
- Single-Family
- Quick move-in
- $155.53/sqft
- No HOA fee
Home description
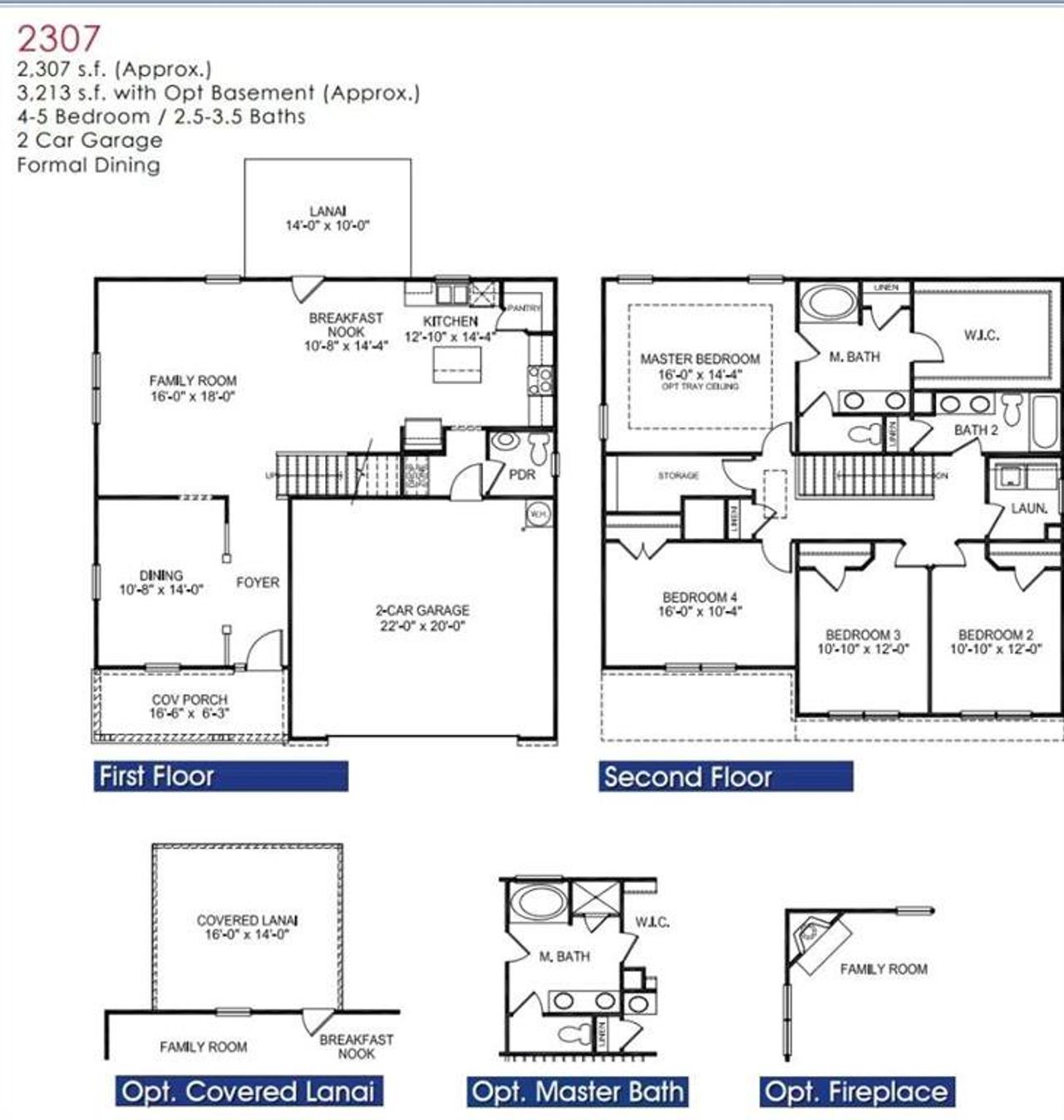
Welcome to "The Oakridge Haven" - A Spacious 4BD/2.5BA 2307 sq ft Retreat in Scarlett Place! cul-de-sac retreat! This two-story home features an open-concept living area, granite countertops with tile backsplash, main-level master suite with separate tub & shower, and a versatile upstairs rec room. Standard features include full sod front & back, 30-year shingles, brick-front exterior, 51/4 baseboards (even in the garage), tray ceiling in master, garbage disposal, and more. Covered patio perfect for relaxing outdoors. No HOA, USDA eligible, only $1,000 earnest money! Price Reflects Builder Incentive
Adams Homes Realty Inc., MLS 7688407
May also be listed on the Adams Homes website
Information last verified by Jome: Today at 2:31 AM (December 19, 2025)
Home highlights
Book your tour. Save an average of $18,473. We'll handle the rest.
We collect exclusive builder offers, book your tours, and support you from start to housewarming.
- Confirmed tours
- Get matched & compare top deals
- Expert help, no pressure
- No added fees
Estimated value based on Jome data, T&C apply
Home details
- Property status:
- Move-in ready
- Lot size (acres):
- 0.41
- Size:
- 2,307 sqft
- Stories:
- 2
- Beds:
- 4
- Baths:
- 2
- Half baths:
- 1
- Garage spaces:
- 2
- Fence:
- No Fence
Construction details
- Builder Name:
- Adams Homes
- Year Built:
- 2025
- Roof:
- Composition Roofing
Home features & finishes
- Construction Materials:
- Vinyl SidingBrick
- Cooling:
- Ceiling Fan(s)Central Air
- Flooring:
- Laminate FlooringCarpet Flooring
- Foundation Details:
- Slab
- Garage/Parking:
- GarageAttached Garage
- Home amenities:
- Green Construction
- Interior Features:
- Ceiling-HighCeiling-VaultedWalk-In ClosetTray CeilingWalk-In PantrySeparate ShowerDouble Vanity
- Kitchen:
- DishwasherMicrowave OvenDisposal
- Laundry facilities:
- Laundry Facilities On Upper LevelCommon Laundry FacilitiesUtility/Laundry Room
- Property amenities:
- Cul-de-sacDeckBackyardSoaking TubFireplacePorch
- Rooms:
- KitchenDining RoomFamily RoomSeparate Living and Dining
- Security system:
- Fire Alarm SystemSmoke DetectorCarbon Monoxide Detector

Get a consultation with our New Homes Expert
- See how your home builds wealth
- Plan your home-buying roadmap
- Discover hidden gems
Utility information
- Heating:
- Electric Heating, Heat Pump, Water Heater, Central Heating, Forced Air Heating
- Utilities:
- Electricity Available, Phone Available, Cable Available, Water Available

Community details
Scarlett Place
by Adams Homes, Bowdon, GA
- 14 homes
- 8 plans
- 1,643 - 2,709 sqft
View Scarlett Place details
Community amenities
- City View
More homes in Scarlett Place
Floor plans in Scarlett Place
About the builder - Adams Homes
Neighborhood
Home address
Schools in Carroll County School District
GreatSchools’ Summary Rating calculation is based on 4 of the school’s themed ratings, including test scores, student/academic progress, college readiness, and equity. This information should only be used as a reference. Jome is not affiliated with GreatSchools and does not endorse or guarantee this information. Please reach out to schools directly to verify all information and enrollment eligibility. Data provided by GreatSchools.org © 2025
Getting around
Air quality
Natural hazards risk
Climate hazards can impact homes and communities, with risks varying by location. These scores reflect the potential impact of natural disasters and climate-related risks on Carroll County
Provided by FEMA

Considering this home?
Our expert will guide your tour, in-person or virtual
Need more information?
Text or call (888) 486-2818
Financials
Estimated monthly payment
Let us help you find your dream home
How many bedrooms are you looking for?
Similar homes nearby
Recently added communities in this area
Nearby communities in Bowdon
New homes in nearby cities
More New Homes in Bowdon, GA
Adams Homes Realty Inc., MLS 7688407
Some IDX listings have been excluded from this IDX display. Listings identified with the FMLS IDX logo come from FMLS and are held by brokerage firms other than the owner of this website. The listing brokerage is identified in any listing details. Information is deemed reliable but is not guaranteed. If you believe any FMLS listing contains material that infringes your copyrighted work please click here to review our DMCA policy and learn how to submit a takedown request. © 2025 First Multiple Listing Service, Inc.
Read moreLast checked Dec 19, 7:40 am
- Jome
- New homes search
- Georgia
- Carroll County
- Bowdon
- Scarlett Place
- 153 Scarlett Place Dr, Bowdon, GA 30108




































