














Book your tour. Save an average of $18,473. We'll handle the rest.
- Confirmed tours
- Get matched & compare top deals
- Expert help, no pressure
- No added fees
Estimated value based on Jome data, T&C apply





























- 4 bd
- 2.5 ba
- 2,903 sqft
6412 River Plantation Dr, Lula, GA 30554
Why tour with Jome?
- No pressure toursTour at your own pace with no sales pressure
- Expert guidanceGet insights from our home buying experts
- Exclusive accessSee homes and deals not available elsewhere
Jome is featured in
- Single-Family
- Under construction
- $141.2/sqft
- $600/annual HOA
Home description
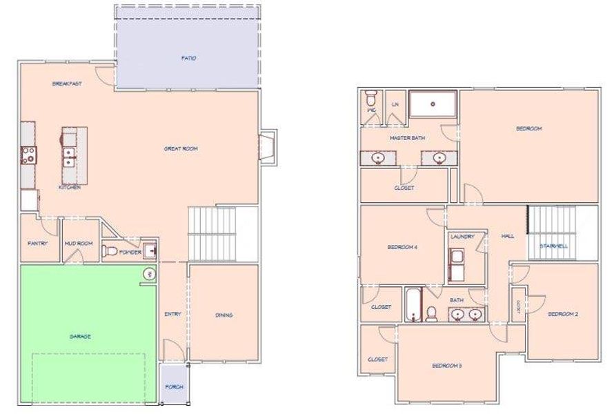
NEW CONSTRUCTION LOT 20 - The Conner Floor Plan Estimated Completion: January 2026 - Now pre-selling in the sought-after A&R Communities Magnolia Station, the Highland floor plan offers a thoughtfully designed layout with modern finishes and lasting value. This two-story home features 2,903 square feet with four bedrooms and two and a half bathrooms, creating a functional flow that fits today's lifestyle. The spacious open-concept main level includes a large family room and dining area, ideal for everyday living and entertaining. The well-appointed kitchen offers custom cabinetry, granite countertops, and stainless steel appliances. The private owner's suite features a walk-in closet and an en-suite bathroom with dual vanities and a separate shower. The Conner offers three other additional bedrooms and another full bath for convenience on the upper level. A two-car garage and energy-efficient construction add to the long-term appeal of this home. Residents of this community enjoy sidewalks, streetlights, and amenities designed for comfort and connection. Conveniently located near Gainesville, Cornelia, Cleveland, GA 365, NEGMC, shopping, dining, and schools, this home provides easy access to both work and recreation. Now under construction, buyers have the opportunity to secure this home today and plan for a January 2026 move-in. Builder incentives and preferred lender programs are available - Please contact Casey Simmons (NMLS# 2303959) with Homeowners Financial Group, or Mindy McLean (NMLS# 2023114) or Kim Caudell (NMLS# 1887966) with Cross Country Mortgage for more information. Contact Collective & Co. Realty for current availability, upgrade options, and full details on the Conner floor plan!
Real Broker, LLC., MLS 7666894
Information last verified by Jome: Yesterday at 2:29 AM (December 19, 2025)
Home highlights
Popular North Georgia lake offering boating, fishing, and lakeside living near metro Atlanta and mountain getaways.
Book your tour. Save an average of $18,473. We'll handle the rest.
We collect exclusive builder offers, book your tours, and support you from start to housewarming.
- Confirmed tours
- Get matched & compare top deals
- Expert help, no pressure
- No added fees
Estimated value based on Jome data, T&C apply
Home details
- Property status:
- Under construction
- Lot size (acres):
- 0.28
- Size:
- 2,903 sqft
- Stories:
- 2
- Beds:
- 4
- Baths:
- 2
- Half baths:
- 1
- Garage spaces:
- 2
- Fence:
- No Fence
Construction details
- Year Built:
- 2025
- Roof:
- Composition Roofing
Home features & finishes
- Construction Materials:
- Wood Siding
- Cooling:
- Ceiling Fan(s)Central Air
- Flooring:
- Vinyl FlooringCarpet Flooring
- Foundation Details:
- Slab
- Garage/Parking:
- Door OpenerGarageAttached Garage
- Home amenities:
- Green Construction
- Interior Features:
- Walk-In ClosetFoyerPantryDouble Vanity
- Kitchen:
- DishwasherMicrowave OvenKitchen IslandElectric Oven
- Laundry facilities:
- Laundry Facilities In HallLaundry Facilities On Upper Level
- Lighting:
- Exterior Lighting
- Property amenities:
- Outdoor FireplacePatioFireplacePorch
- Rooms:
- AtticKitchenDining RoomFamily RoomSeparate Living and Dining
- Security system:
- Smoke Detector
Utility information
- Heating:
- Electric Heating, Water Heater, Central Heating
- Utilities:
- Electricity Available, Sewer Available, Water Available
Community amenities
- Woods View
- Community Pool
- Sidewalks Available
Neighborhood
Home address
Schools in Hall County School District
GreatSchools’ Summary Rating calculation is based on 4 of the school’s themed ratings, including test scores, student/academic progress, college readiness, and equity. This information should only be used as a reference. Jome is not affiliated with GreatSchools and does not endorse or guarantee this information. Please reach out to schools directly to verify all information and enrollment eligibility. Data provided by GreatSchools.org © 2025
Places of interest
Getting around
Natural hazards risk
Climate hazards can impact homes and communities, with risks varying by location. These scores reflect the potential impact of natural disasters and climate-related risks on Hall County
Provided by FEMA

Considering this home?
Our expert will guide your tour, in-person or virtual
Need more information?
Text or call (888) 486-2818
Financials
Similar homes nearby
Recently added communities in this area
Nearby communities in Lula
New homes in nearby cities
More New Homes in Lula, GA
Real Broker, LLC., MLS 7666894
Some IDX listings have been excluded from this IDX display. Listings identified with the FMLS IDX logo come from FMLS and are held by brokerage firms other than the owner of this website. The listing brokerage is identified in any listing details. Information is deemed reliable but is not guaranteed. If you believe any FMLS listing contains material that infringes your copyrighted work please click here to review our DMCA policy and learn how to submit a takedown request. © 2025 First Multiple Listing Service, Inc.
Read moreLast checked Dec 20, 1:40 am
- Jome
- New homes search
- Georgia
- Hall County
- Lula
- 6412 River Plantation Dr, Lula, GA 30554




























