














Book your tour. Save an average of $18,473. We'll handle the rest.
We collect exclusive builder offers, book your tours, and support you from start to housewarming.
- Confirmed tours
- Get matched & compare top deals
- Expert help, no pressure
- No added fees
Estimated value based on Jome data, T&C apply

- 3 bd
- 3 ba
- 2,460 sqft
0 Old Alabama Rd, Cartersville, GA 30120
Why tour with Jome?
- No pressure toursTour at your own pace with no sales pressure
- Expert guidanceGet insights from our home buying experts
- Exclusive accessSee homes and deals not available elsewhere
Jome is featured in
- Single-Family
- Under construction
- $197.15/sqft
- $500/annual HOA
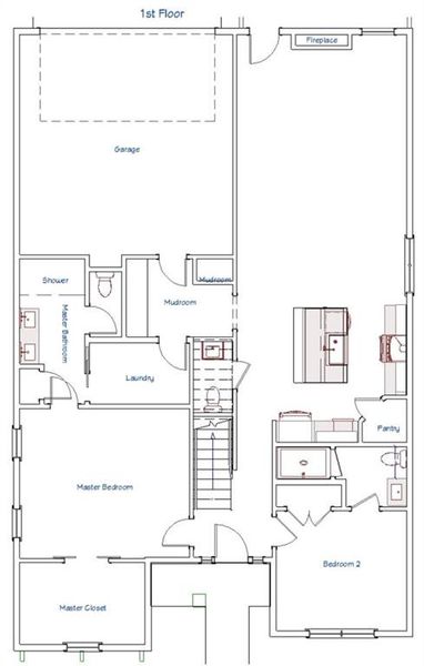
Home description
The Lolita (Ranch Plan) at Ferguson Corners – Discover luxury and craftsmanship in this boutique community by MarDon Construction. This thoughtfully designed home features a gourmet kitchen with stainless steel appliances, quartz countertops, a large center island, and open views to the family room — perfect for entertaining.
The main level includes a mudroom, a spacious primary suite with a large walk-in closet, a spa-like bath, and direct access to the laundry room, plus one additional bedroom on the main floor.
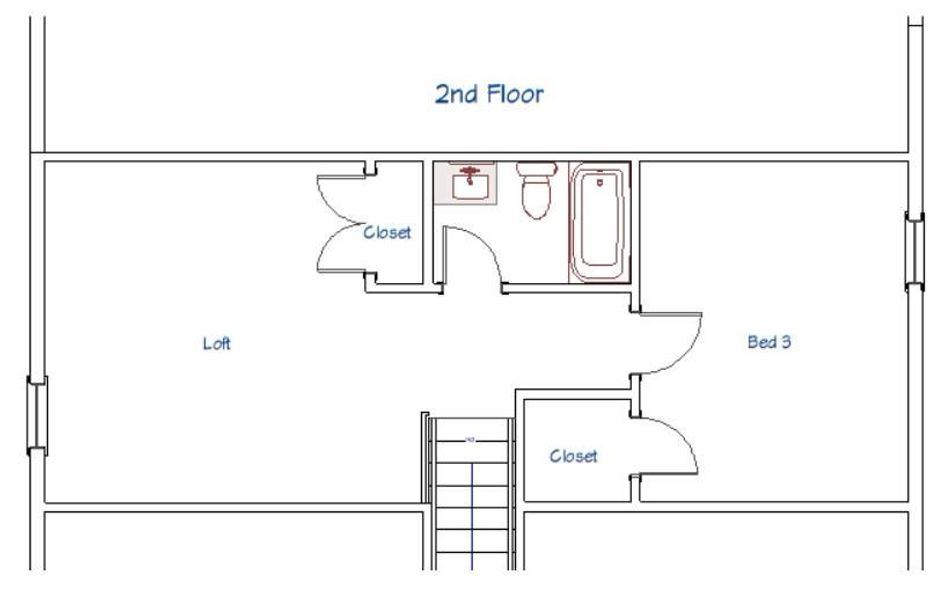
Upstairs offers one bedroom, one full bath, and a versatile loft space that may serve as an optional second upstairs bedroom.
Current move-in ready inventory includes $20,000 in builder incentives. Now is the perfect time to secure a semi-custom home before spring price increases.
Conveniently located just minutes from Downtown Emerson, Downtown Cartersville, Red Top Mountain, and Lake Allatoona.
Builder incentive is subject to lender and government restrictions. Offer subject to change or discontinuation without notice. Actual mortgage interest rate, APR, and closing costs will vary based on loan product, buyer qualifications, and applicable fees. The listed Lolita plan price reflects the base price only and pre-sale only. Lot selection, upgrades, and finishes will determine the final sales price.
Watkins Real Estate Associates, MLS 7652936
Information last verified by Jome: Today at 2:21 AM (February 27, 2026)
Home highlights
Home of the Atlanta Braves with modern ballpark vibes, dining, and housing in the vibrant Battery Atlanta district.
Book your tour. Save an average of $18,473. We'll handle the rest.
We collect exclusive builder offers, book your tours, and support you from start to housewarming.
- Confirmed tours
- Get matched & compare top deals
- Expert help, no pressure
- No added fees
Estimated value based on Jome data, T&C apply
Home details
- Property status:
- Under construction
- Lot size (acres):
- 0.18
- Size:
- 2,460 sqft
- Stories:
- 2
- Beds:
- 3
- Baths:
- 3
- Half baths:
- 1
- Garage spaces:
- 2
- Fence:
- Fenced Yard
Construction details
- Year Built:
- 2025
- Roof:
- Composition Roofing, Shingle Roofing
Home features & finishes
- Cooling:
- Ceiling Fan(s)Central Air
- Flooring:
- Laminate FlooringTile Flooring
- Foundation Details:
- Slab
- Garage/Parking:
- Door OpenerGarageRear Entry Garage/Parking
- Interior Features:
- Ceiling-HighBreakfast BarDouble Vanity
- Kitchen:
- DishwasherMicrowave OvenDisposalKitchen Island
- Laundry facilities:
- Laundry Facilities On Main LevelCommon Laundry FacilitiesUtility/Laundry Room
- Property amenities:
- BarLandscapingPatioFireplaceYard
- Rooms:
- Bonus RoomPrimary Bedroom On MainKitchenFamily RoomPrimary Bedroom Downstairs
- Security system:
- Smoke DetectorCarbon Monoxide Detector

Get a consultation with our New Homes Expert
- See how your home builds wealth
- Plan your home-buying roadmap
- Discover hidden gems
Utility information
- Heating:
- Water Heater, Central Heating, Gas Heating, Tankless water heater
- Utilities:
- Electricity Available, Natural Gas Available, Underground Utilities, Cable Available, Sewer Available, Water Available
Community amenities
- Walking, Jogging, Hike Or Bike Trails
- Shopping Nearby
Neighborhood
Home address
- City:
- Cartersville
- County:
- Bartow
- Zip Code:
- 30120
Schools in Cartersville City School District
GreatSchools’ Summary Rating calculation is based on 4 of the school’s themed ratings, including test scores, student/academic progress, college readiness, and equity. This information should only be used as a reference. Jome is not affiliated with GreatSchools and does not endorse or guarantee this information. Please reach out to schools directly to verify all information and enrollment eligibility. Data provided by GreatSchools.org © 2025
Places of interest
Getting around
Air quality
Natural hazards risk
Provided by FEMA

Considering this home?
Our expert will guide your tour, in-person or virtual
Need more information?
Text or call (888) 488-9243
Financials
Estimated monthly payment
Let us help you find your dream home
How many bedrooms are you looking for?
Similar homes nearby
Recently added communities in this area
Nearby communities in Cartersville
New homes in nearby cities
More New Homes in Cartersville, GA
Watkins Real Estate Associates, MLS 7652936
Some IDX listings have been excluded from this IDX display. Listings identified with the FMLS IDX logo come from FMLS and are held by brokerage firms other than the owner of this website. The listing brokerage is identified in any listing details. Information is deemed reliable but is not guaranteed. If you believe any FMLS listing contains material that infringes your copyrighted work please click here to review our DMCA policy and learn how to submit a takedown request. © 2025 First Multiple Listing Service, Inc.
Read moreLast checked Feb 27, 1:40 pm
- Jome
- New homes search
- Georgia
- Atlanta Metropolitan Area
- Bartow County
- Cartersville
- 0 Old Alabama Rd, Cartersville, GA 30120



























