














Book your tour. Save an average of $18,473. We'll handle the rest.
- Confirmed tours
- Get matched & compare top deals
- Expert help, no pressure
- No added fees
Estimated value based on Jome data, T&C apply
















- 3 bd
- 2.5 ba
- 1,717 sqft
112 Waterview Ct, Waleska, GA 30183
Why tour with Jome?
- No pressure toursTour at your own pace with no sales pressure
- Expert guidanceGet insights from our home buying experts
- Exclusive accessSee homes and deals not available elsewhere
Jome is featured in
- Townhouse
- Quick move-in
- $310.37/sqft
- $4,800/annual HOA
Home description
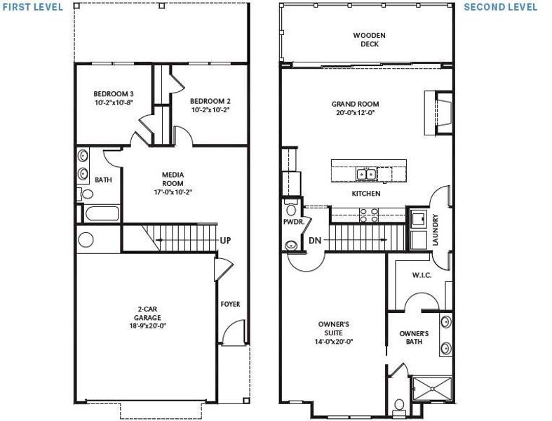
3 Bedroom 2.5 Bath with media room designed to seamlessly integrate into the pristine and natural fabric of the picturesque setting of Lake Arrowhead. Trend setting design and high-end appointments complement the extraordinary views from these handsome homes near the Marina . Quick access to the South Gate & Red Cloud Park Sports Complex. Ready April 2026.
Atlanta Communities, MLS 7650654
Information last verified by Jome: Today at 2:32 AM (December 5, 2025)
Home highlights
Home of the Atlanta Braves with modern ballpark vibes, dining, and housing in the vibrant Battery Atlanta district.
Book your tour. Save an average of $18,473. We'll handle the rest.
We collect exclusive builder offers, book your tours, and support you from start to housewarming.
- Confirmed tours
- Get matched & compare top deals
- Expert help, no pressure
- No added fees
Estimated value based on Jome data, T&C apply
Home details
- Property status:
- Move-in ready
- Lot size (acres):
- 0.03
- Size:
- 1,717 sqft
- Stories:
- 2
- Beds:
- 3
- Baths:
- 2
- Half baths:
- 1
- Garage spaces:
- 2
- Fence:
- No Fence
Construction details
- Year Built:
- 2025
- Roof:
- Composition Roofing, Shingle Roofing
Home features & finishes
- Construction Materials:
- Cement
- Cooling:
- Central Air
- Flooring:
- Vinyl Flooring
- Foundation Details:
- Slab
- Garage/Parking:
- GarageFront Entry Garage/Parking
- Home amenities:
- Internet
- Interior Features:
- Ceiling-HighWalk-In ClosetDouble Vanity
- Kitchen:
- DishwasherMicrowave OvenDisposalKitchen IslandKitchen Range
- Laundry facilities:
- Laundry Facilities In HallLaundry Facilities On Upper LevelDryer
- Property amenities:
- DeckLandscapingCabinetsFireplacePorch
- Rooms:
- KitchenMedia RoomFamily RoomOpen Concept Floorplan
- Security system:
- Smoke DetectorCarbon Monoxide Detector
Utility information
- Heating:
- Electric Heating, Heat Pump, Zoned Heating, Water Heater, Central Heating
- Utilities:
- Electricity Available, Phone Available, Cable Available, Sewer Available, Water Available, High Speed Internet Access
Community amenities
- Marina
- Dog Park
- Club House
- Golf Course
- Tennis Courts
- Gated Community
- Community Pool
- Waterfront View
- Mountain(s) View
Neighborhood
Home address
Schools in Cherokee County School District
GreatSchools’ Summary Rating calculation is based on 4 of the school’s themed ratings, including test scores, student/academic progress, college readiness, and equity. This information should only be used as a reference. Jome is not affiliated with GreatSchools and does not endorse or guarantee this information. Please reach out to schools directly to verify all information and enrollment eligibility. Data provided by GreatSchools.org © 2025
Places of interest
Getting around
Air quality
Natural hazards risk
Climate hazards can impact homes and communities, with risks varying by location. These scores reflect the potential impact of natural disasters and climate-related risks on Cherokee County
Provided by FEMA

Considering this home?
Our expert will guide your tour, in-person or virtual
Need more information?
Text or call (888) 486-2818
Financials
Similar homes nearby
Recently added communities in this area
Nearby communities in Waleska
New homes in nearby cities
More New Homes in Waleska, GA
Atlanta Communities, MLS 7650654
Some IDX listings have been excluded from this IDX display. Listings identified with the FMLS IDX logo come from FMLS and are held by brokerage firms other than the owner of this website. The listing brokerage is identified in any listing details. Information is deemed reliable but is not guaranteed. If you believe any FMLS listing contains material that infringes your copyrighted work please click here to review our DMCA policy and learn how to submit a takedown request. © 2025 First Multiple Listing Service, Inc.
Read moreLast checked Dec 5, 7:40 am
- Home
- New homes
- Georgia
- Cherokee County
- Waleska
- 112 Waterview Ct, Waleska, GA 30183
























