














Book your tour. Save an average of $18,473. We'll handle the rest.
- Confirmed tours
- Get matched & compare top deals
- Expert help, no pressure
- No added fees
Estimated value based on Jome data, T&C apply






































- 5 bd
- 5 ba
- 4,250 sqft
631 St Ives Walk, Monroe, GA 30655
Why tour with Jome?
- No pressure toursTour at your own pace with no sales pressure
- Expert guidanceGet insights from our home buying experts
- Exclusive accessSee homes and deals not available elsewhere
Jome is featured in
- Single-Family
- Quick move-in
- $206.71/sqft
- $600/annual HOA
Home description
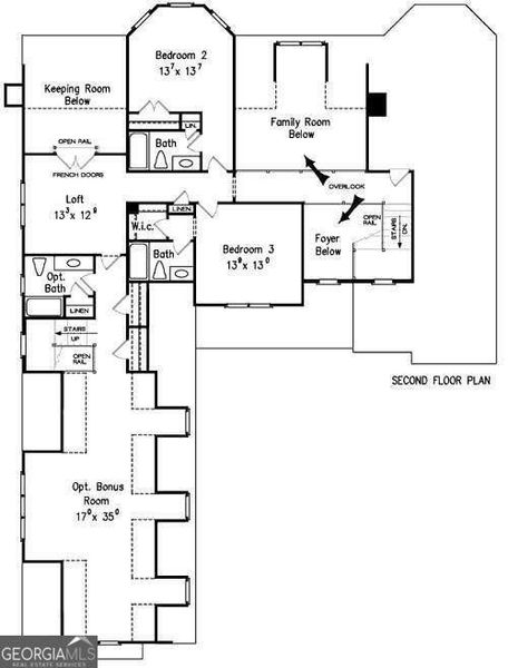
Located in the prestigious gated St. Ives community, this stunning 5 bedroom, 5 bath home is perfectly situated within walking or golf cart distance to George Walton Academy and in the desirable Walnut Grove School District. Every detail has been thoughtfully designed to create a one-of-a-kind living experience. Step inside to an expansive open floor plan showcasing exquisite craftsmanship, custom built-ins, and stunning trim throughout. The gourmet kitchen is a showstopper, featuring quartz countertops, custom cabinetry, farmhouse sink, Cafe Series stainless appliances, built-in refrigerator, tile backsplash, and under-cabinet lighting. Gather in the vaulted family room with fireplace or unwind in the keeping room with soaring ceilings and a second fireplace. The main-level owner's suite offers natural light, tray ceilings, private deck access, a spa-like bath with tile shower and standalone tub, plus a spacious walk-in closet. A secondary bedroom with private bath is also on the main level. Upstairs, you'll find three additional bedrooms, each with private baths, a loft/study, and a private suite perfect for a teen or in-law complete with its own bath and back stairs to the mudroom and garage. A large unfinished basement, already stubbed for a bath, offers endless possibilities for additional living space, entertainment, or fitness. Outdoors, enjoy a covered patio, spacious deck, and expansive yard ideal for creating your dream backyard oasis. With 4-sided brick construction, luxury finishes throughout, and just minutes from charming downtown Monroe, this home truly has it all!
RE/MAX Center, MLS 7637099
Information last verified by Jome: Today at 2:21 AM (December 6, 2025)
Home highlights
Georgia’s iconic park featuring scenic trails, a historic granite dome, and year-round family attractions near Atlanta.
Book your tour. Save an average of $18,473. We'll handle the rest.
We collect exclusive builder offers, book your tours, and support you from start to housewarming.
- Confirmed tours
- Get matched & compare top deals
- Expert help, no pressure
- No added fees
Estimated value based on Jome data, T&C apply
Home details
- Property status:
- Move-in ready
- Lot size (acres):
- 0.90
- Size:
- 4,250 sqft
- Stories:
- 1.5
- Beds:
- 5
- Baths:
- 5
- Garage spaces:
- 3
- Fence:
- No Fence
Construction details
- Year Built:
- 2025
- Roof:
- Composition Roofing
Home features & finishes
- Construction Materials:
- ConcreteBrick
- Cooling:
- Ceiling Fan(s)Central Air
- Flooring:
- Ceramic FlooringCarpet FlooringTile FlooringHardwood Flooring
- Foundation Details:
- Concrete Perimeter
- Garage/Parking:
- Garage
- Home amenities:
- Internet
- Interior Features:
- Ceiling-HighCeiling-VaultedWalk-In ClosetFoyerCoffered CeilingTray CeilingWalk-In PantryLoftSeparate ShowerDouble Vanity
- Kitchen:
- DishwasherMicrowave OvenOvenRefrigeratorDisposalGas CooktopDouble Oven
- Laundry facilities:
- Utility/Laundry Room
- Lighting:
- Security Lights
- Property amenities:
- BasementDeckSoaking TubLandscapingCabinetsFireplaceYardPorch
- Rooms:
- Bonus RoomPrimary Bedroom On MainOffice/StudyMudroomDining RoomFamily RoomBreakfast AreaSeparate Living and DiningPrimary Bedroom Downstairs
- Security system:
- Smoke Detector
Utility information
- Heating:
- Electric Heating, Gas Heating
- Utilities:
- Electricity Available, Natural Gas Available, Underground Utilities, Phone Available, Cable Available, Sewer Available, Water Available, High Speed Internet Access
Community amenities
- Gated Community
- Sidewalks Available
Neighborhood
Home address
Schools in Walton County School District
- Grades 05-12Privatewalton county christian learning centers2.1 mi475 double springs church rdna
GreatSchools’ Summary Rating calculation is based on 4 of the school’s themed ratings, including test scores, student/academic progress, college readiness, and equity. This information should only be used as a reference. Jome is not affiliated with GreatSchools and does not endorse or guarantee this information. Please reach out to schools directly to verify all information and enrollment eligibility. Data provided by GreatSchools.org © 2025
Places of interest
Getting around
Air quality
Noise level
A Soundscore™ rating is a number between 50 (very loud) and 100 (very quiet) that tells you how loud a location is due to environmental noise.
Natural hazards risk
Climate hazards can impact homes and communities, with risks varying by location. These scores reflect the potential impact of natural disasters and climate-related risks on Walton County
Provided by FEMA

Considering this home?
Our expert will guide your tour, in-person or virtual
Need more information?
Text or call (888) 486-2818
Financials
Similar homes nearby
Recently added communities in this area
Nearby communities in Monroe
New homes in nearby cities
More New Homes in Monroe, GA
RE/MAX Center, MLS 7637099
Some IDX listings have been excluded from this IDX display. Listings identified with the FMLS IDX logo come from FMLS and are held by brokerage firms other than the owner of this website. The listing brokerage is identified in any listing details. Information is deemed reliable but is not guaranteed. If you believe any FMLS listing contains material that infringes your copyrighted work please click here to review our DMCA policy and learn how to submit a takedown request. © 2025 First Multiple Listing Service, Inc.
Read moreLast checked Dec 6, 7:40 am
- Home
- New homes
- Georgia
- Atlanta Metropolitan Area
- Walton County
- Monroe
- 631 St Ives Walk, Monroe, GA 30655


























