









Book your tour. Save an average of $18,473. We'll handle the rest.
We collect exclusive builder offers, book your tours, and support you from start to housewarming.
- Confirmed tours
- Get matched & compare top deals
- Expert help, no pressure
- No added fees
Estimated value based on Jome data, T&C apply
- 3 bd
- 2.5 ba
- 1,647 sqft
8373 Columbia Ct, Unit LOT 11, Palmetto, GA 30268
Why tour with Jome?
- No pressure toursTour at your own pace with no sales pressure
- Expert guidanceGet insights from our home buying experts
- Exclusive accessSee homes and deals not available elsewhere
Jome is featured in
- Townhouse
- Quick move-in
- $173.04/sqft
- $1,800/annual HOA
Home description
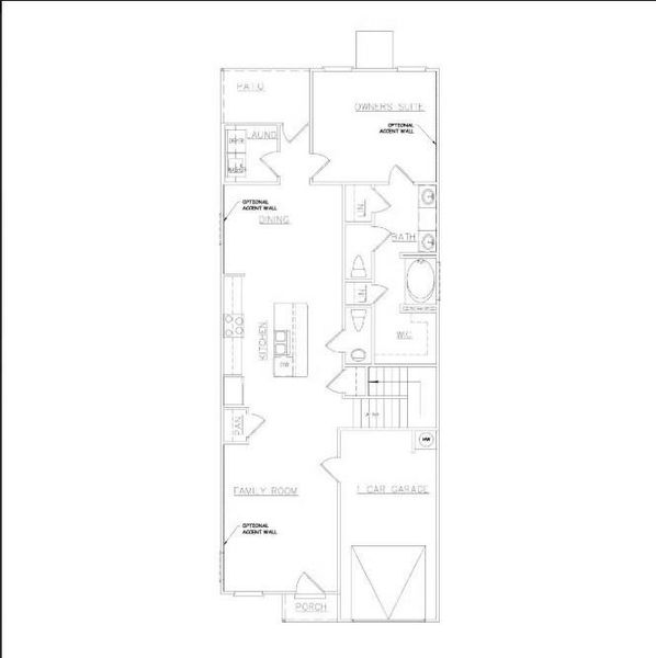
The Bristol Plan at Carolina by Dream Finders Homes - This beautiful townhome offers 3 Bedrooms, 2.5 Baths, and a 1-car garage. With the spacious Primary Suite on the main offers a private retreat with a walk-in closet and a luxurious bathroom featuring a stand-alone soaking tub, rain shower, LED mirrors, and elegant finishes throughout. Upstairs, you'll find two additional bedrooms and a full bath perfect for family or guests. The open-concept design creates a seamless flow from the Family Room to the Kitchen, perfect for entertaining. The kitchen boasts stainless steel appliances including a range, microwave, dishwasher and cup wash. Granite countertops, single basin sink with pull out faucet, and vinyl and carpet flooring throughout complete the contemporary look. Blinds and window screens are included for added convenience. The main floor features a bright, open kitchen, family room, and dining area, all flooded with natural light. Located just minutes away from I-85 and less than 30 minutes from Downtown Atlanta and Hartsfield-Jackson Atlanta Airport, and wide array of shopping, dinning and entertainment. Enjoy weekends exploring Cochran Mill Park, strolling the historic streets of Downtown Palmetto, or spending time with family at nearby Serenbe - a nationally recognized wellness community full of events, restaurants, and outdoor activities. The community amenities include a community Pool, Cabana, Dog Parks, Playground, and Walking Trails, adding to its charm. Don't miss the opportunity to elevate your lifestyle in these exquisite townhomes at Carolina. Experience the epitome of luxury living in Palmetto, GA, where every detail is crafted with your utmost satisfaction in mind. Note: Pictures are not of the actual home.
DFH Realty Ga, LLC, MLS 7632151
May also be listed on the Dream Finders Homes website
Information last verified by Jome: Today at 2:30 AM (February 12, 2026)
Home highlights
Thrill-packed theme park near Atlanta with coasters, water rides, and family fun in a wooded, suburban setting.
Book your tour. Save an average of $18,473. We'll handle the rest.
We collect exclusive builder offers, book your tours, and support you from start to housewarming.
- Confirmed tours
- Get matched & compare top deals
- Expert help, no pressure
- No added fees
Estimated value based on Jome data, T&C apply
Home details
- Property status:
- Move-in ready
- Lot size (acres):
- 0.10
- Size:
- 1,647 sqft
- Stories:
- 2
- Beds:
- 3
- Baths:
- 2
- Half baths:
- 1
- Garage spaces:
- 1
- Fence:
- No Fence
Construction details
- Builder Name:
- Dream Finders Homes
- Year Built:
- 2025
- Roof:
- Composition Roofing
Home features & finishes
- Appliances:
- Sprinkler System
- Construction Materials:
- CementConcrete
- Cooling:
- Ceiling Fan(s)Central Air
- Flooring:
- Vinyl FlooringCarpet Flooring
- Foundation Details:
- Slab
- Garage/Parking:
- Garage
- Home amenities:
- Internet
- Interior Features:
- Walk-In ClosetWalk-In PantrySeparate Shower
- Kitchen:
- DishwasherMicrowave OvenKitchen IslandKitchen Range
- Laundry facilities:
- Laundry Facilities On Main LevelUtility/Laundry Room
- Property amenities:
- Soaking TubBidetPatioFireplace
- Rooms:
- Primary Bedroom On MainKitchenFamily RoomPrimary Bedroom Downstairs
- Security system:
- Fire Sprinkler SystemSmoke DetectorCarbon Monoxide Detector

Get a consultation with our New Homes Expert
- See how your home builds wealth
- Plan your home-buying roadmap
- Discover hidden gems
Utility information
- Heating:
- Electric Heating, Zoned Heating, Water Heater, Central Heating
- Utilities:
- Electricity Available, Underground Utilities, Cable Available, Sewer Available, Water Available, High Speed Internet Access

Community details
Carolina
by Dream Finders Homes, Palmetto, GA
- 17 homes
- 5 plans
- 1,590 - 2,394 sqft
View Carolina details
Community amenities
- Playground
- Community Pool
- Sidewalks Available
More homes in Carolina
- Home at address 8361 Columbia Ct, Unit LOT 15, Palmetto, GA 30268

Home
$279,900
- 3 bd
- 2.5 ba
8361 Columbia Ct, Unit LOT 15, Palmetto, GA 30268
- Home at address 8381 Columbia Ct, Palmetto, GA 30268

Jasmine
$279,990
- 3 bd
- 2.5 ba
- 1,590 sqft
8381 Columbia Ct, Palmetto, GA 30268
- Home at address 8395 Columbia Ct, Palmetto, GA 30268

Jasmine
$279,990
- 3 bd
- 2.5 ba
- 1,598 sqft
8395 Columbia Ct, Palmetto, GA 30268
- Home at address 8365 Columbia Ct, Palmetto, GA 30268

Jasmine
$279,990
- 3 bd
- 2.5 ba
- 1,590 sqft
8365 Columbia Ct, Palmetto, GA 30268
- Home at address 8365 Columbia Ct, Unit LOT 13, Palmetto, GA 30268

Home
$279,990
- 3 bd
- 2.5 ba
8365 Columbia Ct, Unit LOT 13, Palmetto, GA 30268
- Home at address 8395 Columbia Ct, Unit LOT 3, Palmetto, GA 30268

Home
$279,990
- 3 bd
- 2.5 ba
8395 Columbia Ct, Unit LOT 3, Palmetto, GA 30268
Floor plans in Carolina
About the builder - Dream Finders Homes

- 280communities on Jome
- 1,570homes on Jome
Neighborhood
Home address
Schools in Fulton County School District
- Grades KG-12Publicgeorgia baptist children's home and family ministries1.0 mi9250 hutcheson ferry rd1/10
GreatSchools’ Summary Rating calculation is based on 4 of the school’s themed ratings, including test scores, student/academic progress, college readiness, and equity. This information should only be used as a reference. Jome is not affiliated with GreatSchools and does not endorse or guarantee this information. Please reach out to schools directly to verify all information and enrollment eligibility. Data provided by GreatSchools.org © 2025
Places of interest
Getting around
Air quality
Noise level
A Soundscore™ rating is a number between 50 (very loud) and 100 (very quiet) that tells you how loud a location is due to environmental noise.

Considering this home?
Our expert will guide your tour, in-person or virtual
Need more information?
Text or call (888) 486-2818
Financials
Estimated monthly payment
Let us help you find your dream home
How many bedrooms are you looking for?
Similar homes nearby
Recently added communities in this area
Nearby communities in Palmetto
New homes in nearby cities
More New Homes in Palmetto, GA
DFH Realty Ga, LLC, MLS 7632151
Some IDX listings have been excluded from this IDX display. Listings identified with the FMLS IDX logo come from FMLS and are held by brokerage firms other than the owner of this website. The listing brokerage is identified in any listing details. Information is deemed reliable but is not guaranteed. If you believe any FMLS listing contains material that infringes your copyrighted work please click here to review our DMCA policy and learn how to submit a takedown request. © 2025 First Multiple Listing Service, Inc.
Read moreLast checked Feb 12, 1:40 am
- Jome
- New homes search
- Georgia
- Atlanta Metropolitan Area
- Fulton County
- Palmetto
- Carolina
- 8373 Columbia Ct, Unit LOT 11, Palmetto, GA 30268

































