





Book your tour. Save an average of $18,473. We'll handle the rest.
- Confirmed tours
- Get matched & compare top deals
- Expert help, no pressure
- No added fees
Estimated value based on Jome data, T&C apply
- 4 bd
- 3.5 ba
- 2,517 sqft
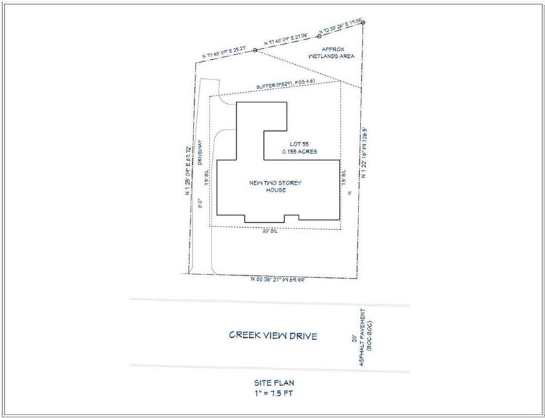
3515 Creekview Dr, Union City, GA 30291
Why tour with Jome?
- No pressure toursTour at your own pace with no sales pressure
- Expert guidanceGet insights from our home buying experts
- Exclusive accessSee homes and deals not available elsewhere
Jome is featured in
- Single-Family
- Quick move-in
- $168.85/sqft
- South facing
Home description
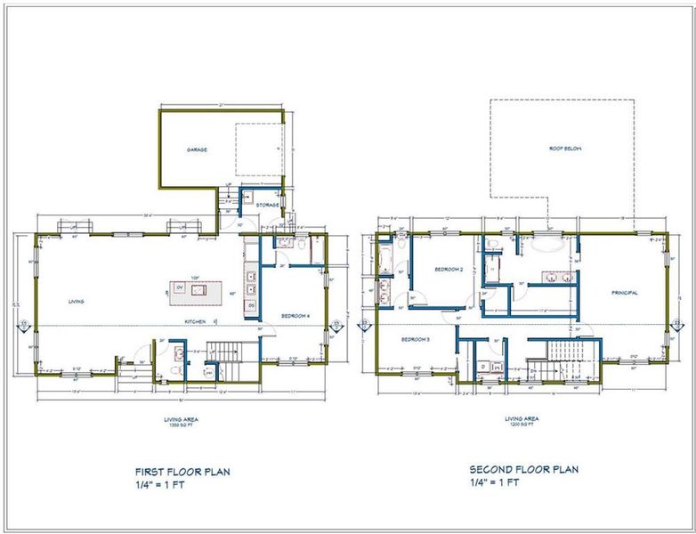
This beautiful, contemporary two-story new construction home is nestled in a quiet Union City neighborhood, awaits
you! Step inside and discover a spacious open-concept floor plan designed for modern living. The heart of the home is
a large eat-in kitchen, featuring elegant stone countertops and a generous island, seamlessly flowing into a large living
room—perfect for family gatherings and entertaining. For added convenience, the main floor also includes a
comfortable guest room with its own en-suite bathroom. Upstairs, you'll find a luxurious, oversized master suite
complete with a large walk-in closet and a spa-like master bath featuring a double vanity, a tiled shower, and a
relaxing garden tub. Additionally, there are two more guest bedrooms connected by a convenient Jack and Jill
bathroom, along with a spacious laundry room, all located on the second floor. This stunning residence effortlessly
combines modern sophistication with everyday comfort. Its prime location puts you just minutes from Mayor's Park,
Ronald Bridges Park, major interstates (I-85, I-75, I-285), and downtown Atlanta. Plus, Hartsfield-Jackson International
Airport is only a short drive away. As an added bonus, there are no association fees!! Estimated completion date
October 2025.
Century 21 Results, MLS 7613950
Information last verified by Jome: Today at 2:04 AM (January 13, 2026)
Book your tour. Save an average of $18,473. We'll handle the rest.
We collect exclusive builder offers, book your tours, and support you from start to housewarming.
- Confirmed tours
- Get matched & compare top deals
- Expert help, no pressure
- No added fees
Estimated value based on Jome data, T&C apply
Home details
- Property status:
- Move-in ready
- Lot size (acres):
- 0.15
- Size:
- 2,517 sqft
- Stories:
- 2
- Beds:
- 4
- Baths:
- 3
- Half baths:
- 1
- Garage spaces:
- 2
- Fence:
- No Fence
- Facing direction:
- South
Construction details
- Year Built:
- 2025
- Roof:
- Shingle Roofing
Home features & finishes
- Cooling:
- Central Air
- Flooring:
- Ceramic FlooringLaminate FlooringTile Flooring
- Foundation Details:
- SlabBlock
- Garage/Parking:
- GarageAttached Garage
- Interior Features:
- Walk-In ClosetGarden TubSeparate ShowerDouble Vanity
- Kitchen:
- DishwasherMicrowave OvenElectric CooktopKitchen CountertopKitchen IslandElectric Oven
- Laundry facilities:
- Laundry Facilities On Upper LevelUtility/Laundry Room
- Property amenities:
- BackyardSoaking Tub
- Rooms:
- KitchenOpen Concept Floorplan
- Security system:
- Smoke Detector
Utility information
- Heating:
- Central Heating
- Utilities:
- Electricity Available, Cable Available, Sewer Available, Water Available
Neighborhood
Home address
- City:
- Union City
- County:
- Fulton
- Zip Code:
- 30291
Schools in Fulton County School District
- Grades PK-12Privatelandmark christian school, inc.2.2 mi50 se broad stna
GreatSchools’ Summary Rating calculation is based on 4 of the school’s themed ratings, including test scores, student/academic progress, college readiness, and equity. This information should only be used as a reference. Jome is not affiliated with GreatSchools and does not endorse or guarantee this information. Please reach out to schools directly to verify all information and enrollment eligibility. Data provided by GreatSchools.org © 2025
Places of interest
Getting around
3 nearby routes: 3 bus, 0 rail, 0 otherAir quality
Natural hazards risk
Provided by FEMA

Considering this home?
Our expert will guide your tour, in-person or virtual
Need more information?
Text or call (888) 486-2818
Financials
Estimated monthly payment
Similar homes nearby
Recently added communities in this area
Nearby communities in Union City
New homes in nearby cities
More New Homes in Union City, GA
Century 21 Results, MLS 7613950
Some IDX listings have been excluded from this IDX display. Listings identified with the FMLS IDX logo come from FMLS and are held by brokerage firms other than the owner of this website. The listing brokerage is identified in any listing details. Information is deemed reliable but is not guaranteed. If you believe any FMLS listing contains material that infringes your copyrighted work please click here to review our DMCA policy and learn how to submit a takedown request. © 2025 First Multiple Listing Service, Inc.
Read moreLast checked Jan 13, 1:40 am
- Jome
- New homes search
- Georgia
- Atlanta Metropolitan Area
- Fulton County
- Union City
- 3515 Creekview Dr, Union City, GA 30291


























