














Book your tour. Save an average of $18,473. We'll handle the rest.
We collect exclusive builder offers, book your tours, and support you from start to housewarming.
- Confirmed tours
- Get matched & compare top deals
- Expert help, no pressure
- No added fees
Estimated value based on Jome data, T&C apply





- 3 bd
- 2 ba
- 1,512 sqft
727 Lower Scott Mill Rd, Canton, GA 30115
Why tour with Jome?
- No pressure toursTour at your own pace with no sales pressure
- Expert guidanceGet insights from our home buying experts
- Exclusive accessSee homes and deals not available elsewhere
Jome is featured in
- Single-Family
- Under construction
- $393.52/sqft
- 1.76-acre lot
Home description
Presale Opportunity!
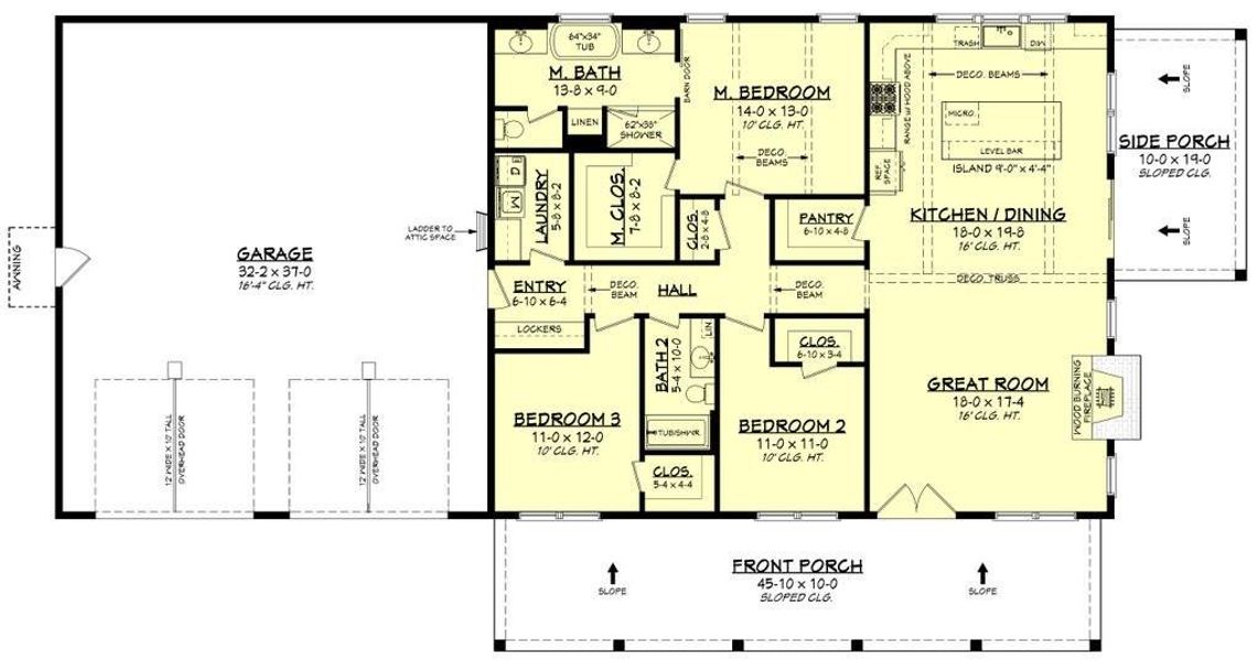
Stunning 1,830 Sq Ft 3-Bedroom, 2-Bath Home with Master on Main on 1.6 Acres – $595,000
Enjoy the perfect blend of modern comfort and country charm in this beautifully designed 1,830 sq ft home, now available for presale on a pristine 1.6-acre lot. The home offers a sought-after master suite on the main floor for privacy and convenience, while the spacious living room and kitchen impress with soaring 16-foot ceilings and elegant exposed beams.
Entertain or gather with family around the large kitchen island in a space filled with natural light, or relax by the inviting wood-burning stove on cool evenings. Ample storage and parking are provided by the two-car garage with 10-foot-tall doors, ideal for most trucks, and the generous front and side covered porches invite you to enjoy peaceful outdoor living year-round.
This property also features an impressive 2,000-square-foot, three-bay shop—perfect for hobbies, storage, or small business use.
Available for presale with expected completion approximately 8 months from closing, this custom-built home presents a rare opportunity to secure a thoughtfully crafted residence on a spacious lot.
Offered at $595,000, this property combines refined finishes, flexible outbuildings, and plenty of room to grow. Contact us today to reserve your new home and discover all the possibilities this exceptional property has to offer.
ERA Sunrise Realty, MLS 7618556
Information last verified by Jome: Today at 2:15 AM (March 5, 2026)
Book your tour. Save an average of $18,473. We'll handle the rest.
We collect exclusive builder offers, book your tours, and support you from start to housewarming.
- Confirmed tours
- Get matched & compare top deals
- Expert help, no pressure
- No added fees
Estimated value based on Jome data, T&C apply
Home details
- Property status:
- Under construction
- Lot size (acres):
- 1.76
- Size:
- 1,512 sqft
- Stories:
- 1
- Beds:
- 3
- Baths:
- 2
- Garage spaces:
- 2
- Fence:
- No Fence
Construction details
- Year Built:
- 2025
- Roof:
- Metal Roofing
Home features & finishes
- Cooling:
- Central Air
- Flooring:
- Vinyl Flooring
- Foundation Details:
- Slab
- Garage/Parking:
- GarageAttached Garage
- Interior Features:
- Walk-In ClosetPlentiful Natural LightDouble Vanity
- Kitchen:
- Kitchen IslandKitchen Range
- Laundry facilities:
- Laundry Facilities On Main LevelUtility/Laundry Room
- Property amenities:
- Soaking TubPorch
- Rooms:
- AtticPrimary Bedroom On MainKitchenLiving RoomOpen Concept FloorplanPrimary Bedroom Downstairs
- Security system:
- Smoke Detector

Get a consultation with our New Homes Expert
- See how your home builds wealth
- Plan your home-buying roadmap
- Discover hidden gems
Utility information
- Heating:
- Central Heating, Wood Stove Heating
- Utilities:
- Electricity Available, Cable Available, Water Available
Community amenities
- Waterfront View
Neighborhood
Home address
Schools in Cherokee County School District
GreatSchools’ Summary Rating calculation is based on 4 of the school’s themed ratings, including test scores, student/academic progress, college readiness, and equity. This information should only be used as a reference. Jome is not affiliated with GreatSchools and does not endorse or guarantee this information. Please reach out to schools directly to verify all information and enrollment eligibility. Data provided by GreatSchools.org © 2025
Places of interest
Getting around
Air quality
Noise level
A Soundscore™ rating is a number between 50 (very loud) and 100 (very quiet) that tells you how loud a location is due to environmental noise.
Natural hazards risk
Provided by FEMA

Considering this home?
Our expert will guide your tour, in-person or virtual
Need more information?
Text or call (888) 488-9243
Financials
Estimated monthly payment
Let us help you find your dream home
How many bedrooms are you looking for?
Similar homes nearby
Recently added communities in this area
Nearby communities in Canton
New homes in nearby cities
More New Homes in Canton, GA
ERA Sunrise Realty, MLS 7618556
Some IDX listings have been excluded from this IDX display. Listings identified with the FMLS IDX logo come from FMLS and are held by brokerage firms other than the owner of this website. The listing brokerage is identified in any listing details. Information is deemed reliable but is not guaranteed. If you believe any FMLS listing contains material that infringes your copyrighted work please click here to review our DMCA policy and learn how to submit a takedown request. © 2025 First Multiple Listing Service, Inc.
Read moreLast checked Mar 5, 7:40 pm
- Jome
- New homes search
- Georgia
- Atlanta Metropolitan Area
- Cherokee County
- Canton
- 727 Lower Scott Mill Rd, Canton, GA 30115


























