




- 4 bd
- 3.5 ba
- 2,880 sqft
5570 Spring St, Flowery Branch, GA 30542
- Single-Family
- $195.46/sqft
- $780/annual HOA
- 0.22-acre lot
New Homes for Sale Near 5570 Spring St, Flowery Branch, GA 30542
About this Home
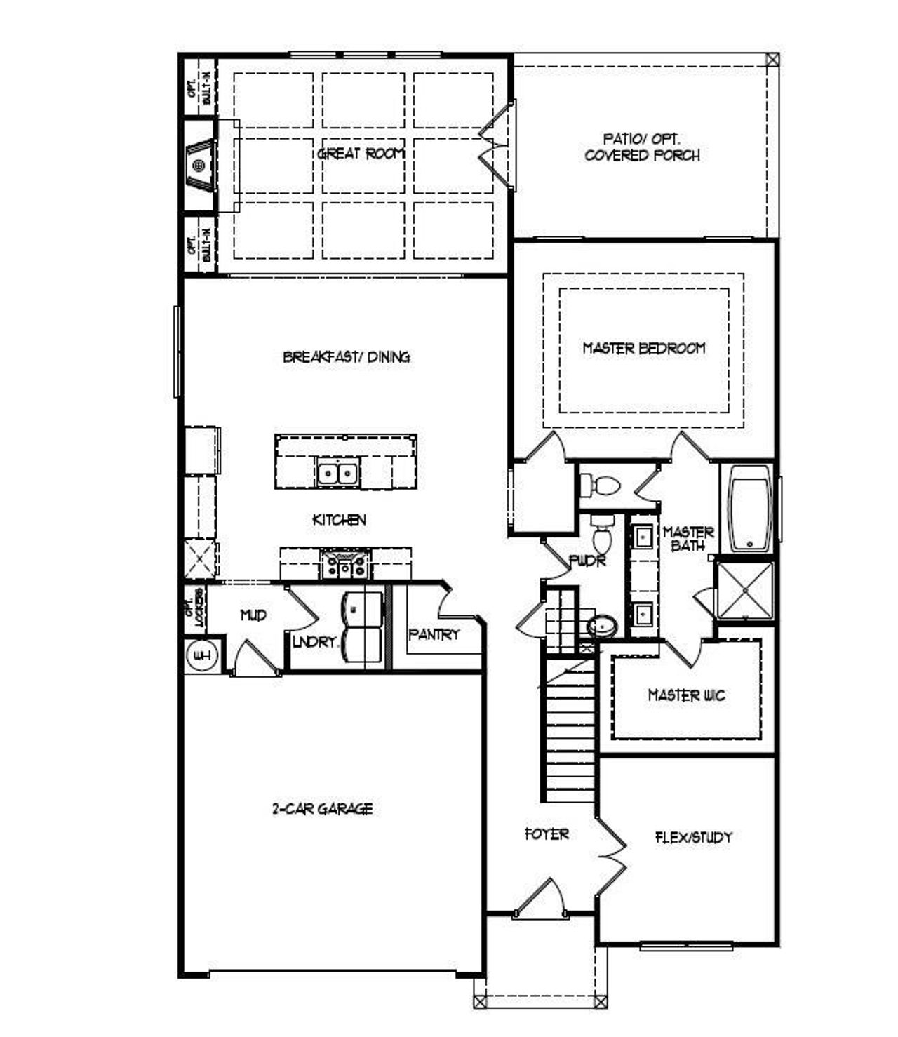
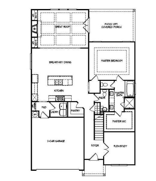
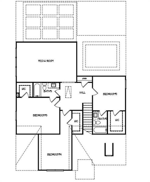
The Madison Plan built by Walker Anderson Homes is a Beautiful Home with Primary Bedroom on the Main Level in the Charming Hemingway Community in Downtown Flowery Branch and within walking distance to Lake Lanier's Marinas, Restaurants, and Recreational Offerings. The Home features Expansive 9-Foot Ceilings on both the Main and Upper Levels, and Covered Front & Rear Porches. The Kitchen is open to the Family Room & Breakfast Room, has Painted Cabinets with Soft-Close Cabinet Doors & Drawers and includes a 36" Gas Cooktop with Cabinet Vent Hood, Wall Oven, Wall Microwave, all complimented by a Large Island with Farm Sink. The Primary Bedroom Suite on main level is Spacious and complete with a Tray Ceiling, Large Walk-In Closet, Double Vanity, Soaking Tub, and Separate Shower with Frameless Glass Enclosure. You will also find a Large Loft/Media Room Upstairs along with Three Additional Bedrooms each with a Walk-In Closet, and Two Additional Full Bathrooms. Home is under construction with a projected completion in Early Fall of 2025. Ask about our UP TO $30K Incentive (dependent per homesite) with use of preferred lender.
RE/MAX Tru, MLS 7600802
May also be listed on the Walker Anderson Homes website
Information last verified by Jome: Today at 2:08 AM (December 23, 2025)
Home details
- Property status:
- Sold
- Lot size (acres):
- 0.22
- Size:
- 2,880 sqft
- Stories:
- 2
- Beds:
- 4
- Baths:
- 3
- Half baths:
- 1
- Garage spaces:
- 2
- Fence:
- No Fence
Construction details
- Builder Name:
- Walker Anderson Homes
- Year Built:
- 2025
- Roof:
- Composition Roofing, Shingle Roofing
Home features & finishes
- Construction Materials:
- CementBrickFrame
- Cooling:
- Ceiling Fan(s)Central Air
- Flooring:
- Laminate FlooringCarpet FlooringTile Flooring
- Foundation Details:
- Slab
- Garage/Parking:
- Door OpenerGarageFront Entry Garage/ParkingAttached Garage
- Home amenities:
- Internet
- Interior Features:
- Ceiling-HighWalk-In ClosetFoyerTray CeilingBreakfast BarWalk-In PantryLoftDouble Vanity
- Kitchen:
- DishwasherMicrowave OvenDisposalGas CooktopKitchen IslandElectric Oven
- Laundry facilities:
- Laundry Facilities On Main LevelUtility/Laundry Room
- Property amenities:
- BarStorage BuildingGas Log FireplaceBackyardLandscapingCabinetsFireplaceYardPorch
- Rooms:
- Primary Bedroom On MainKitchenMedia RoomOffice/StudyDining RoomFamily RoomBreakfast AreaOpen Concept FloorplanSeparate Living and DiningPrimary Bedroom Downstairs
- Security system:
- Smoke DetectorCarbon Monoxide Detector
Utility information
- Heating:
- Water Heater, Gas Heating
- Utilities:
- Electricity Available, Natural Gas Available, Underground Utilities, Phone Available, Cable Available, Water Available, High Speed Internet Access

Community details
Hemingway
by Walker Anderson Homes, Flowery Branch, GA
- 9 homes
- 2,633 - 3,017 sqft
View Hemingway details
Community amenities
- Woods View
- Sidewalks Available
More homes in Hemingway
About the builder - Walker Anderson Homes
Neighborhood
Home address
- City:
- Flowery Branch
- County:
- Hall
- Zip Code:
- 30542
Schools in Hall County School District
- Grades PK-KGPrivatethe goddard school1.4 mi5989 spout springs rdna
GreatSchools’ Summary Rating calculation is based on 4 of the school’s themed ratings, including test scores, student/academic progress, college readiness, and equity. This information should only be used as a reference. Jome is not affiliated with GreatSchools and does not endorse or guarantee this information. Please reach out to schools directly to verify all information and enrollment eligibility. Data provided by GreatSchools.org © 2025
Places of interest
Getting around
Noise level
A Soundscore™ rating is a number between 50 (very loud) and 100 (very quiet) that tells you how loud a location is due to environmental noise.
Natural hazards risk
Climate hazards can impact homes and communities, with risks varying by location. These scores reflect the potential impact of natural disasters and climate-related risks on Hall County
Provided by FEMA
Financials
Nearby communities in Flowery Branch
Homes in Flowery Branch by Walker Anderson Homes
Recently added communities in this area
Other Builders in Flowery Branch, GA
Nearby sold homes
New homes in nearby cities
More New Homes in Flowery Branch, GA
RE/MAX Tru, MLS 7600802
Some IDX listings have been excluded from this IDX display. Listings identified with the FMLS IDX logo come from FMLS and are held by brokerage firms other than the owner of this website. The listing brokerage is identified in any listing details. Information is deemed reliable but is not guaranteed. If you believe any FMLS listing contains material that infringes your copyrighted work please click here to review our DMCA policy and learn how to submit a takedown request. © 2025 First Multiple Listing Service, Inc.
Read moreLast checked Dec 23, 1:40 am
- Jome
- New homes search
- Georgia
- Atlanta Metropolitan Area
- Hall County
- Flowery Branch
- Hemingway
- 5570 Spring St, Flowery Branch, GA 30542































































