














Book your tour. Save an average of $18,473. We'll handle the rest.
We collect exclusive builder offers, book your tours, and support you from start to housewarming.
- Confirmed tours
- Get matched & compare top deals
- Expert help, no pressure
- No added fees
Estimated value based on Jome data, T&C apply












































- 4 bd
- 4 ba
- 3,100 sqft
2918 Level Ridge Rd, Atlanta, GA 30354
Why tour with Jome?
- No pressure toursTour at your own pace with no sales pressure
- Expert guidanceGet insights from our home buying experts
- Exclusive accessSee homes and deals not available elsewhere
Jome is featured in
- Single-Family
- Under construction
- $175.81/sqft
- 0.29-acre lot
Home description
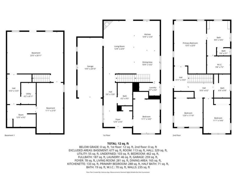
NEW CONSTRUCTIONWelcome to your DREAM home! This stunning contemporary 4 bed, 3 bath on a full BASEMENT in Atlanta is sure to WOW! This home provides the convenience of city living with the charm of a peaceful suburban neighborhood. Located just minutes away from downtown, is the perfect balance of modern and serene living. With it's welcoming front porch, stepping inside you'll be greeted by a spacious and thoughtfully designed interior layout. The open floor plan seamlessly connects the living, dining, and kitchen areas, making it ideal for both entertaining and everyday living. High ceilings and large windows flood the space with natural light, creating an inviting ambiance that is both comfortable and stylish. Located on the main level is a chef's dream kitchen, featuring stainless steel appliances, ample counter space, and an island for meal preparation or entertaining. Just off the kitchen is the expansive deck overlooking your gorgeous backyard. Also located on the main level is an assessable bedroom/study and a full bathroom, perfect for your guests. As you make your way upstairs, you'll immediately notice the door leading to the rooftop's luxurious sitting area. The owner's suite ensues the back part of the home and has a large walk-in closet, sitting area, huge tiled walk-in shower and a double sink vanity. There is also 2 secondary bedrooms with a shared bath. Descend the staircase from the main floor, and you'll discover a massive basement w/ stubbed bath adding an extra layer of functionality and entertainment to this exceptional home. The basement's layout and design possibilities are unlimited. The convenience of a one-car garage with the greenspace on top is another amazing feature of this charming home. With this location, you are sure to find great shopping and entertainment just minutes away. Welcome to your own personal paradise! IF YOU PURCHASE NOW YOU CAN SELECT SOME OF THE FINISHES!
Vibe Realty, LLC, MLS 7685301
Information last verified by Jome: Today at 2:19 AM (February 27, 2026)
Book your tour. Save an average of $18,473. We'll handle the rest.
We collect exclusive builder offers, book your tours, and support you from start to housewarming.
- Confirmed tours
- Get matched & compare top deals
- Expert help, no pressure
- No added fees
Estimated value based on Jome data, T&C apply
Home details
- Property status:
- Under construction
- Neighborhood:
- Orchard Knob
- Lot size (acres):
- 0.29
- Size:
- 3,100 sqft
- Stories:
- 2
- Beds:
- 4
- Baths:
- 4
- Garage spaces:
- 1
- Fence:
- No Fence
Construction details
- Year Built:
- 2024
- Roof:
- Composition Roofing
Home features & finishes
- Construction Materials:
- CementConcreteBrick
- Cooling:
- Central Air
- Flooring:
- Ceramic FlooringCarpet FlooringTile FlooringHardwood Flooring
- Foundation Details:
- Concrete PerimeterPillar/Post/PierBlock
- Garage/Parking:
- ParkingGarage
- Home amenities:
- Home Accessibility FeaturesGreen Construction
- Interior Features:
- Ceiling-HighWalk-In ClosetFoyerPantryTray CeilingSeparate ShowerDouble Vanity
- Kitchen:
- DishwasherMicrowave OvenDisposalGas CooktopKitchen IslandGas OvenKitchen RangeElectric Oven
- Laundry facilities:
- Laundry Facilities On Main LevelLaundry Facilities In ClosetUtility/Laundry Room
- Property amenities:
- Private RooftopBasementBalconyDeckBackyardLandscapingCabinetsPatioFireplaceYardPorch
- Rooms:
- KitchenOffice/StudyFamily RoomLiving RoomOpen Concept Floorplan
- Security system:
- Fire Alarm SystemSmoke Detector

Get a consultation with our New Homes Expert
- See how your home builds wealth
- Plan your home-buying roadmap
- Discover hidden gems
Utility information
- Heating:
- Water Heater, Central Heating
- Utilities:
- Electricity Available, Natural Gas Available, Phone Available, Cable Available, Sewer Available, Water Available
Community amenities
- City View
- Woods View
Neighborhood
Home address
- Neighborhood:
- Orchard Knob
- City:
- Atlanta
Schools in Atlanta City School District
GreatSchools’ Summary Rating calculation is based on 4 of the school’s themed ratings, including test scores, student/academic progress, college readiness, and equity. This information should only be used as a reference. Jome is not affiliated with GreatSchools and does not endorse or guarantee this information. Please reach out to schools directly to verify all information and enrollment eligibility. Data provided by GreatSchools.org © 2025
Places of interest
Getting around
3 nearby routes: 3 bus, 0 rail, 0 otherAir quality
Natural hazards risk
Provided by FEMA

Considering this home?
Our expert will guide your tour, in-person or virtual
Need more information?
Text or call (888) 488-9243
Financials
Estimated monthly payment
Let us help you find your dream home
How many bedrooms are you looking for?
Similar homes nearby
Recently added communities in this area
Nearby communities in Atlanta
New homes in nearby cities
More New Homes in Atlanta, GA
Vibe Realty, LLC, MLS 7685301
Some IDX listings have been excluded from this IDX display. Listings identified with the FMLS IDX logo come from FMLS and are held by brokerage firms other than the owner of this website. The listing brokerage is identified in any listing details. Information is deemed reliable but is not guaranteed. If you believe any FMLS listing contains material that infringes your copyrighted work please click here to review our DMCA policy and learn how to submit a takedown request. © 2025 First Multiple Listing Service, Inc.
Read moreLast checked Feb 27, 1:40 pm
- Jome
- New homes search
- Georgia
- Atlanta Metropolitan Area
- Fulton County
- Atlanta
- 2918 Level Ridge Rd, Atlanta, GA 30354

























