














Book your tour. Save an average of $18,473. We'll handle the rest.
- Confirmed tours
- Get matched & compare top deals
- Expert help, no pressure
- No added fees
Estimated value based on Jome data, T&C apply










Why tour with Jome?
- No pressure toursTour at your own pace with no sales pressure
- Expert guidanceGet insights from our home buying experts
- Exclusive accessSee homes and deals not available elsewhere
Jome is featured in
- Single-Family
- Quick move-in
- $193.51/sqft
- $790/annual HOA
Home description
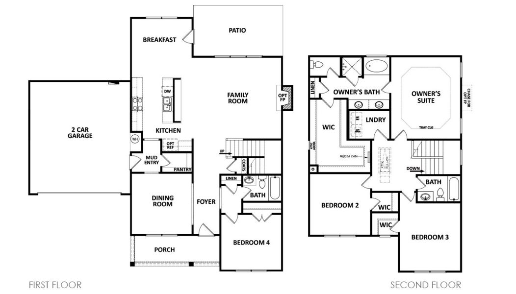
The Jefferson - Versatile 4 bedroom / 3 bath home features a formal dining room, and private guest room on the main level. Large living room with triple window is open to the oversized kitchen with gas cooktop, double wall oven, no divided sink, pantry and breakfast area. Upstairs, the Owner's suite includes a tray ceiling, double vanity, separate tub and shower, linen and oversized closet. The additional 2 bedrooms upstairs both have huge closets. Beautiful covered screened patio. ** Up to 30k towards closing cost with preferred lender **
Reliant Realty, Inc., MLS 7640265
May also be listed on the Reliant Homes website
Information last verified by Jome: Today at 2:19 AM (December 29, 2025)
Home highlights
Popular North Georgia lake offering boating, fishing, and lakeside living near metro Atlanta and mountain getaways.
Book your tour. Save an average of $18,473. We'll handle the rest.
We collect exclusive builder offers, book your tours, and support you from start to housewarming.
- Confirmed tours
- Get matched & compare top deals
- Expert help, no pressure
- No added fees
Estimated value based on Jome data, T&C apply
Home details
- Property status:
- Move-in ready
- Lot size (acres):
- 0.25
- Size:
- 2,325 sqft
- Stories:
- 2
- Beds:
- 4
- Baths:
- 3
- Garage spaces:
- 2
- Fence:
- No Fence
- Facing direction:
- East
Construction details
- Builder Name:
- Reliant Homes
- Completion Date:
- August, 2025
- Year Built:
- 2025
- Roof:
- Shingle Roofing
Home features & finishes
- Appliances:
- Sprinkler System
- Construction Materials:
- Cement
- Cooling:
- Ceiling Fan(s)Central Air
- Flooring:
- Ceramic FlooringCarpet FlooringTile Flooring
- Foundation Details:
- Slab
- Garage/Parking:
- Door OpenerGarageFront Entry Garage/ParkingAttached Garage
- Interior Features:
- Ceiling-HighWalk-In ClosetFull Bath on MainCrown MoldingFoyerCoffered CeilingPantryTray CeilingSeparate ShowerDouble Vanity
- Kitchen:
- DishwasherMicrowave OvenOvenDisposalGas CooktopDouble OvenElectric Oven
- Laundry facilities:
- Laundry Facilities On Upper LevelDryerUtility/Laundry Room
- Lighting:
- Lighting
- Property amenities:
- Gas Log FireplaceSoaking TubLandscapingCabinetsPatioFireplaceYardPorch
- Rooms:
- AtticKitchenMudroomDining RoomFamily RoomOpen Concept FloorplanSeparate Living and DiningPrimary Bedroom Upstairs
- Security system:
- Smoke DetectorCarbon Monoxide Detector

Get a consultation with our New Homes Expert
- See how your home builds wealth
- Plan your home-buying roadmap
- Discover hidden gems
Utility information
- Heating:
- Water Heater, Central Heating, Gas Heating
- Utilities:
- Electricity Available, Natural Gas Available, Underground Utilities, Phone Available, Cable Available, Sewer Available, Water Available

Community details
Calgary Downs
by Reliant Homes, Winder, GA
- 10 homes
- 9 plans
- 2,059 - 2,940 sqft
View Calgary Downs details
Community amenities
- Playground
- Club House
- Tennis Courts
- Gated Community
- Community Pool
- Sidewalks Available
More homes in Calgary Downs
Floor plans in Calgary Downs
About the builder - Reliant Homes
Neighborhood
Home address
Schools in Barrow County School District
GreatSchools’ Summary Rating calculation is based on 4 of the school’s themed ratings, including test scores, student/academic progress, college readiness, and equity. This information should only be used as a reference. Jome is not affiliated with GreatSchools and does not endorse or guarantee this information. Please reach out to schools directly to verify all information and enrollment eligibility. Data provided by GreatSchools.org © 2025
Places of interest
Getting around
Air quality
Noise level
A Soundscore™ rating is a number between 50 (very loud) and 100 (very quiet) that tells you how loud a location is due to environmental noise.
Natural hazards risk
Climate hazards can impact homes and communities, with risks varying by location. These scores reflect the potential impact of natural disasters and climate-related risks on Barrow County
Provided by FEMA

Considering this home?
Our expert will guide your tour, in-person or virtual
Need more information?
Text or call (888) 486-2818
Financials
Estimated monthly payment
Let us help you find your dream home
How many bedrooms are you looking for?
Similar homes nearby
Recently added communities in this area
Nearby communities in Winder
New homes in nearby cities
More New Homes in Winder, GA
Reliant Realty, Inc., MLS 7640265
Some IDX listings have been excluded from this IDX display. Listings identified with the FMLS IDX logo come from FMLS and are held by brokerage firms other than the owner of this website. The listing brokerage is identified in any listing details. Information is deemed reliable but is not guaranteed. If you believe any FMLS listing contains material that infringes your copyrighted work please click here to review our DMCA policy and learn how to submit a takedown request. © 2025 First Multiple Listing Service, Inc.
Read moreLast checked Dec 29, 7:40 am
- Jome
- New homes search
- Georgia
- Atlanta Metropolitan Area
- Barrow County
- Winder
- Calgary Downs
- 448 Banff Dr, Winder, GA 30680











































