














Book your tour. Save an average of $18,473. We'll handle the rest.
- Confirmed tours
- Get matched & compare top deals
- Expert help, no pressure
- No added fees
Estimated value based on Jome data, T&C apply



































- 4 bd
- 3.5 ba
- 3,322 sqft
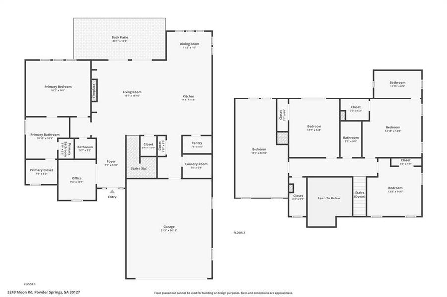
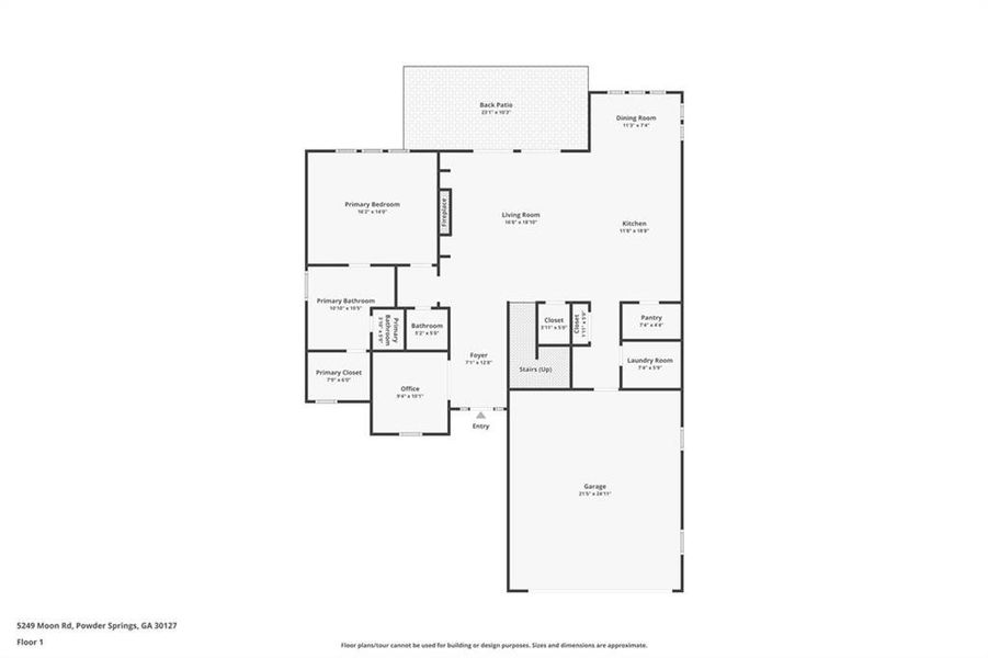
5249 Moon Rd, Powder Springs, GA 30127
Why tour with Jome?
- No pressure toursTour at your own pace with no sales pressure
- Expert guidanceGet insights from our home buying experts
- Exclusive accessSee homes and deals not available elsewhere
Jome is featured in
- Single-Family
- Quick move-in
- $295/sqft
- 0.69-acre lot
Home description
Come See This Luxurious High-End BRAND-NEW CONSTRUCTION with its Sleek European Modern Contemporary Design. It features the highly sought after primary bedroom en-suite on the main with soaring ceilings and that all important free-flowing open concept living. Step Into this dream home with ease with its towering 2-story but single-step entry way. It also offers hard to find DUAL PRIMARY EN-SUITES, making it a great choice for a roommate plan or multi-generational living. The gourmet kitchen boasts stylish two-toned cabinets, elegant custom quartz countertops, large island breakfast bar with views into the family room perfect for busy mornings, gorgeous glass backsplash, and high-end stainless-steel appliances & the custom walk-in pantry completes the package! The spacious family room offers gorgeous floor-to-ceiling granite fireplace surrounded by custom, built-in cabinets & decorative shelving. Plus, it opens up to the covered back patio which will make a great outdoor entertainment space. Also, on the main you have an office, laundry, and mud rooms right off the garage to help keep everyone organized coming & going – So helpful in modern living. Upstairs you will find a SECOND MASTER EN-SUITE as well as 2 more spacious bedrooms with ample closets. There is also a large bonus room or second office space. You will also have plenty of parking spaces, in the 2-car garage with its custom-painted floors, EV Hookup in the garage, and large parking pad. There is also ample storage in the form of the well insulated attic with disappearing drop down stairs as well as a storage room upstairs. Its lovely exterior is the board and batten HardiPlank type which is stylish but durable & built-to-last. The lot features fire-pit and is situated on a partially fenced level corner lot in a quiet but convenient area close to shopping, restaurants & Cobb County Schools. Builder offering buyer a 2/1 buy down incentive which shaves 2% on the interest rate the first year and 1% off the second year when using builders lender Michael Anthony with Mutual Mortgage. DO NOT MISS THIS OPPORTUNITY FOR NEW CONSTRUCTION WITH NO HOA LIMITATIONS - TOUR TODAY BEFORE IT GETS AWAY!
Atlanta Communities, MLS 7690295
Information last verified by Jome: Today at 2:19 AM (February 3, 2026)
Home highlights
Thrill-packed theme park near Atlanta with coasters, water rides, and family fun in a wooded, suburban setting.
Book your tour. Save an average of $18,473. We'll handle the rest.
We collect exclusive builder offers, book your tours, and support you from start to housewarming.
- Confirmed tours
- Get matched & compare top deals
- Expert help, no pressure
- No added fees
Estimated value based on Jome data, T&C apply
Home details
- Property status:
- Move-in ready
- Lot size (acres):
- 0.69
- Size:
- 3,322 sqft
- Stories:
- 2
- Beds:
- 4
- Baths:
- 3.5
- Garage spaces:
- 2
- Fence:
- Wood Fence, Fenced Yard, No Fence
Construction details
- Year Built:
- 2025
Home features & finishes
- Cooling:
- Ceiling Fan(s)Central Air
- Flooring:
- Ceramic FlooringVinyl FlooringTile Flooring
- Garage/Parking:
- GarageFront Entry Garage/Parking
- Home amenities:
- Home Accessibility FeaturesGreen Construction
- Interior Features:
- Ceiling-HighWalk-In ClosetFoyerBreakfast BarWalk-In PantrySeparate ShowerDouble Vanity
- Kitchen:
- DishwasherRefrigeratorDisposalKitchen IslandKitchen RangeElectric Oven
- Laundry facilities:
- Laundry Facilities On Main Level
- Property amenities:
- BarBackyardCabinetsElectric FireplacePatioFireplaceYardPorch
- Rooms:
- AtticBonus RoomPrimary Bedroom On MainKitchenOffice/StudyFamily RoomOpen Concept FloorplanPrimary Bedroom Downstairs
- Security system:
- Smoke DetectorCarbon Monoxide Detector

Get a consultation with our New Homes Expert
- See how your home builds wealth
- Plan your home-buying roadmap
- Discover hidden gems
Utility information
- Heating:
- Central Heating
- Utilities:
- Electricity Available, Natural Gas Available, Underground Utilities, Other, Phone Available, HVAC, Cable Available, Sewer Available, Water Available
Community amenities
- Shopping Nearby
Neighborhood
Home address
- City:
- Powder Springs
- County:
- Cobb
- Zip Code:
- 30127
Schools in Cobb County School District
GreatSchools’ Summary Rating calculation is based on 4 of the school’s themed ratings, including test scores, student/academic progress, college readiness, and equity. This information should only be used as a reference. Jome is not affiliated with GreatSchools and does not endorse or guarantee this information. Please reach out to schools directly to verify all information and enrollment eligibility. Data provided by GreatSchools.org © 2025
Places of interest
Getting around
Air quality
Natural hazards risk
Provided by FEMA

Considering this home?
Our expert will guide your tour, in-person or virtual
Need more information?
Text or call (888) 486-2818
Financials
Estimated monthly payment
Let us help you find your dream home
How many bedrooms are you looking for?
Similar homes nearby
Recently added communities in this area
Nearby communities in Powder Springs
New homes in nearby cities
More New Homes in Powder Springs, GA
Atlanta Communities, MLS 7690295
Some IDX listings have been excluded from this IDX display. Listings identified with the FMLS IDX logo come from FMLS and are held by brokerage firms other than the owner of this website. The listing brokerage is identified in any listing details. Information is deemed reliable but is not guaranteed. If you believe any FMLS listing contains material that infringes your copyrighted work please click here to review our DMCA policy and learn how to submit a takedown request. © 2025 First Multiple Listing Service, Inc.
Read moreLast checked Feb 3, 7:40 pm
- Jome
- New homes search
- Georgia
- Atlanta Metropolitan Area
- Cobb County
- Powder Springs
- 5249 Moon Rd, Powder Springs, GA 30127




























