




Book your tour. Save an average of $18,473. We'll handle the rest.
- Confirmed tours
- Get matched & compare top deals
- Expert help, no pressure
- No added fees
Estimated value based on Jome data, T&C apply
- 4 bd
- 3 ba
- 2,700 sqft
392 Overlook Rd, Walnut Grove, GA 30052
Why tour with Jome?
- No pressure toursTour at your own pace with no sales pressure
- Expert guidanceGet insights from our home buying experts
- Exclusive accessSee homes and deals not available elsewhere
Jome is featured in
- Single-Family
- $147.96/sqft
- $500/annual HOA
- 569 days on Jome
Home description
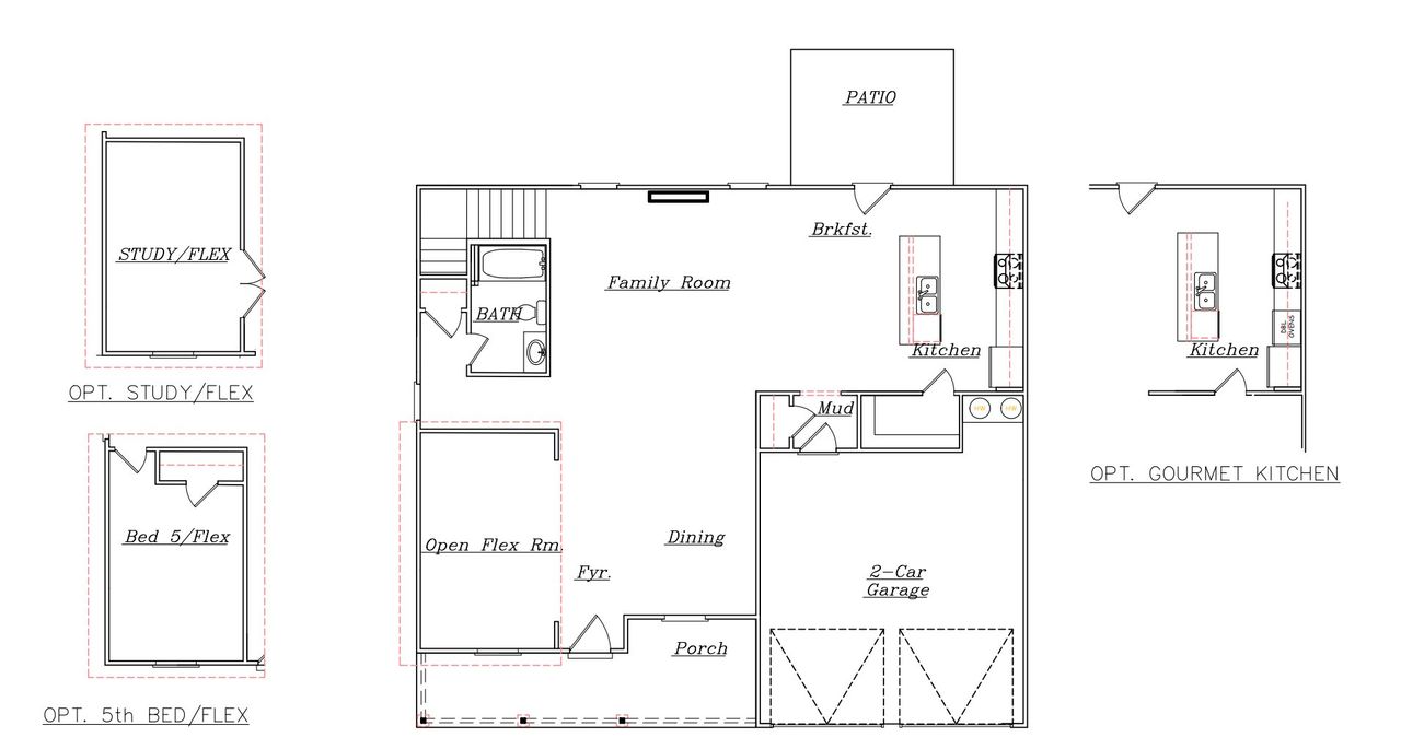
The Harding Plan boasts a contemporary and spacious layout, fostering family togetherness while allowing for individual space. The upper level hosts four bedrooms, including a generously sized primary suite with sitting area and fireplace. On the first floor, a versatile flex room awaits, serving as a bedroom, office, dining area, or any other desired purpose. The kitchen is meticulously designed, providing a delightful vista of the dining and living area. Prepare to be captivated by this thoughtfully arranged abode!
May also be listed on the Liberty Communities website
Information last verified by Jome: Friday at 9:43 AM (November 8, 2024)
Book your tour. Save an average of $18,473. We'll handle the rest.
We collect exclusive builder offers, book your tours, and support you from start to housewarming.
- Confirmed tours
- Get matched & compare top deals
- Expert help, no pressure
- No added fees
Estimated value based on Jome data, T&C apply
Home details
- Property status:
- Not available
- Size:
- 2,700 sqft
- Stories:
- 2
- Beds:
- 4
- Baths:
- 3
- Garage spaces:
- 2
Construction details
- Builder Name:
- Dream Finders Homes
Home features & finishes
- Garage/Parking:
- GarageAttached Garage
- Interior Features:
- Walk-In ClosetFoyerPantry
- Laundry facilities:
- Utility/Laundry Room
- Property amenities:
- PatioPorch
- Rooms:
- Flex RoomSitting AreaKitchenMudroomDining RoomFamily RoomBreakfast AreaOpen Concept FloorplanPrimary Bedroom Upstairs

Get a consultation with our New Homes Expert
- See how your home builds wealth
- Plan your home-buying roadmap
- Discover hidden gems

Community details
The Enclave at Dial Farm Phase III
by Dream Finders Homes, Covington, GA
- 1 home
- 2,754 - 2,754 sqft
View The Enclave at Dial Farm Phase III details
More homes in The Enclave at Dial Farm Phase III
- Home at address 583 Overlook Rd, Walnut Grove, GA 30052

Mira II
$425,000
- 4 bd
- 3.5 ba
- 2,754 sqft
583 Overlook Rd, Walnut Grove, GA 30052
About the builder - Liberty Communities
Neighborhood
Home address
- City:
- Walnut Grove
- County:
- Walton
- Zip Code:
- 30052
Schools in Walton County School District
- Grades PK-12Privatejersey christian school3.2 mi3429 monroe jersey rdna
GreatSchools’ Summary Rating calculation is based on 4 of the school’s themed ratings, including test scores, student/academic progress, college readiness, and equity. This information should only be used as a reference. Jome is not affiliated with GreatSchools and does not endorse or guarantee this information. Please reach out to schools directly to verify all information and enrollment eligibility. Data provided by GreatSchools.org © 2025
Places of interest
Getting around
Air quality
Noise level
A Soundscore™ rating is a number between 50 (very loud) and 100 (very quiet) that tells you how loud a location is due to environmental noise.

Considering this home?
Our expert will guide your tour, in-person or virtual
Need more information?
Text or call (888) 486-2818
Financials
Let us help you find your dream home
How many bedrooms are you looking for?
Similar homes nearby
Recently added communities in this area
Nearby communities in Walnut Grove
New homes in nearby cities
More New Homes in Walnut Grove, GA
- Jome
- New homes search
- Georgia
- Atlanta Metropolitan Area
- Walton County
- Walnut Grove
- The Enclave at Dial Farm Phase III
- 392 Overlook Rd, Walnut Grove, GA 30052
























