














Book your tour. Save an average of $18,473. We'll handle the rest.
- Confirmed tours
- Get matched & compare top deals
- Expert help, no pressure
- No added fees
Estimated value based on Jome data, T&C apply



























































- 3 bd
- 3 ba
- 2,744 sqft
1275 Pj East Rd, Covington, GA 30014
Why tour with Jome?
- No pressure toursTour at your own pace with no sales pressure
- Expert guidanceGet insights from our home buying experts
- Exclusive accessSee homes and deals not available elsewhere
Jome is featured in
- Single-Family
- Quick move-in
- $221.76/sqft
- 4.87-acre lot
Home description
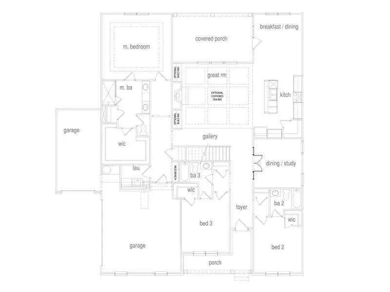
The Preserve plan built by My Home Communities. Quick Move-In! Discover Pinegate, a boutique community featuring only 7 exclusive home sites thoughtfully designed for spacious single-family living. Nestled on nearly 5 pristine acres, this community offers the perfect balance of tranquil privacy and everyday convenience - just minutes from shopping, dining, schools, and major highways in the Covington and Monroe area. This stunning home showcases The Preserve plan, complete with a 3-car side entry garage and premium inclusive upgrades throughout. Step inside to find quartz countertops throughout, a shiplap fireplace creating a cozy centerpiece in the family room, and a mud bench off the garage for everyday convenience. The primary suite is a true retreat, featuring a super shower with beautiful tile detail, built-in bench, and niche, along with a huge walk-in closet. Enjoy outdoor living on the covered back porch with cedar columns, overlooking the expansive backyard - perfect for a pool, garden, or additional entertainment space. Every detail has been carefully crafted, from designer finishes to modern selections that elevate comfort and style. Don't miss your opportunity to own a new construction home that truly has it all - space, location, and luxury. RED TAG EVENT IS HERE! For a limited time, take advantage of **special below-market interest rate opportunities rates as low as 1.99% with preferred lender participation (qualifications apply). Incredible savings! Contact us today for full details. These incentives won't last. Agents and buyers welcome - schedule your private tour and discover the exceptional features, upgrades, and craftsmanship that set this home apart.
RE/MAX Tru, MLS 7657876
May also be listed on the My Home Communities website
Information last verified by Jome: Today at 2:33 AM (December 19, 2025)
Home highlights
Georgia’s iconic park featuring scenic trails, a historic granite dome, and year-round family attractions near Atlanta.
Book your tour. Save an average of $18,473. We'll handle the rest.
We collect exclusive builder offers, book your tours, and support you from start to housewarming.
- Confirmed tours
- Get matched & compare top deals
- Expert help, no pressure
- No added fees
Estimated value based on Jome data, T&C apply
Home details
- Property status:
- Move-in ready
- Lot size (acres):
- 4.87
- Size:
- 2,744 sqft
- Stories:
- 1.5
- Beds:
- 3
- Baths:
- 3
- Garage spaces:
- 3
- Fence:
- No Fence
Construction details
- Builder Name:
- My Home Communities
- Completion Date:
- March, 2025
- Year Built:
- 2025
- Roof:
- Composition Roofing, Shingle Roofing
Home features & finishes
- Construction Materials:
- CementConcrete
- Cooling:
- Ceiling Fan(s)Central Air
- Flooring:
- Laminate FlooringVinyl FlooringCarpet Flooring
- Foundation Details:
- Slab
- Garage/Parking:
- Door OpenerGarageSide Entry Garage/ParkingAttached Garage
- Home amenities:
- Internet
- Interior Features:
- Ceiling-HighWalk-In ClosetFoyerCoffered CeilingTray CeilingWalk-In PantryDouble Vanity
- Kitchen:
- DishwasherMicrowave OvenElectric CooktopKitchen IslandKitchen RangeElectric Oven
- Laundry facilities:
- Laundry Facilities On Main LevelUtility/Laundry Room
- Property amenities:
- BackyardLandscapingCabinetsElectric FireplacePatioFireplaceYardSmart Home SystemPorch
- Rooms:
- AtticPrimary Bedroom On MainKitchenOffice/StudyDining RoomFamily RoomLiving RoomBreakfast AreaSeparate Living and DiningPrimary Bedroom Downstairs
- Security system:
- Smoke Detector

Get a consultation with our New Homes Expert
- See how your home builds wealth
- Plan your home-buying roadmap
- Discover hidden gems
Utility information
- Heating:
- Electric Heating, Heat Pump, Water Heater, Central Heating, Forced Air Heating
- Utilities:
- Electricity Available, Phone Available, Cable Available, Water Available, Air Filter, High Speed Internet Access

Community details
Pinegate
by My Home Communities, Covington, GA
- 2 homes
- 4 plans
- 2,549 - 2,744 sqft
View Pinegate details
Community amenities
- Woods View
- Greenbelt View
More homes in Pinegate
Floor plans in Pinegate
About the builder - My Home Communities
Neighborhood
Home address
Schools in Walton County School District
- Grades PK-12Privatejersey christian school0.9 mi3429 monroe jersey rdna
GreatSchools’ Summary Rating calculation is based on 4 of the school’s themed ratings, including test scores, student/academic progress, college readiness, and equity. This information should only be used as a reference. Jome is not affiliated with GreatSchools and does not endorse or guarantee this information. Please reach out to schools directly to verify all information and enrollment eligibility. Data provided by GreatSchools.org © 2025
Places of interest
Getting around
Air quality
Natural hazards risk
Climate hazards can impact homes and communities, with risks varying by location. These scores reflect the potential impact of natural disasters and climate-related risks on Walton County
Provided by FEMA

Considering this home?
Our expert will guide your tour, in-person or virtual
Need more information?
Text or call (888) 486-2818
Financials
Estimated monthly payment
Let us help you find your dream home
How many bedrooms are you looking for?
Similar homes nearby
Recently added communities in this area
Nearby communities in Covington
New homes in nearby cities
More New Homes in Covington, GA
RE/MAX Tru, MLS 7657876
Some IDX listings have been excluded from this IDX display. Listings identified with the FMLS IDX logo come from FMLS and are held by brokerage firms other than the owner of this website. The listing brokerage is identified in any listing details. Information is deemed reliable but is not guaranteed. If you believe any FMLS listing contains material that infringes your copyrighted work please click here to review our DMCA policy and learn how to submit a takedown request. © 2025 First Multiple Listing Service, Inc.
Read moreLast checked Dec 19, 7:40 am
- Jome
- New homes search
- Georgia
- Atlanta Metropolitan Area
- Walton County
- Covington
- Pinegate
- 1275 Pj East Rd, Covington, GA 30014































