














Book your tour. Save an average of $18,473. We'll handle the rest.
- Confirmed tours
- Get matched & compare top deals
- Expert help, no pressure
- No added fees
Estimated value based on Jome data, T&C apply




































































- 5 bd
- 4 ba
- 3,340 sqft
132 Seaside Vista Ct, Saint Augustine, FL 32084
Why tour with Jome?
- No pressure toursTour at your own pace with no sales pressure
- Expert guidanceGet insights from our home buying experts
- Exclusive accessSee homes and deals not available elsewhere
Jome is featured in
- Single-Family
- Quick move-in
- $388.92/sqft
- $2,000/annual HOA
Home description
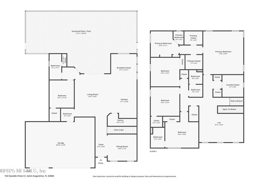
Live the coastal lifestyle in this beautifully FULLY FURNISHED Seaside Vista BEACH POOL HOME where luxury, comfort, and convenience meet. Steps from the ocean with PRIVATE COMMUNITY BEACH ACCESS, this 5 BED & 4 BATH coastal retreat sits in the heart of the highly sought-after Vilano Beach area known for its relaxed coastal charm. No detail has been overlooked! The gourmet chef's kitchen features high-end appliances, a massive walk-in pantry, and a bright breakfast nook overlooking the pool, perfect for morning coffee. A spacious great room flows seamlessly to the screened, heated saltwater pool and patio, creating ideal indoor-outdoor living. A flexible formal dining room offers the perfect space for hosting or converting into a home office or lounge. A private main-level guest suite ensures comfort for visitors or multigenerational living. Upstairs, the expansive primary suite provides a peaceful retreat, complemented by dual walk-in closets and a luxurious spa-inspired bathroom. Three additional good-size bedrooms and two full bathrooms upstairs offer plenty of space and comfort for family and guests. A large LOFT offers the perfect setup for game nights, movies, or a secondary living area. The oversized 3 CAR GARAGE features epoxy flooring, making it a superb extension of your recreation and entertainment space if desired. Step outside to your heated, screened-in saltwater pool oasis or take a short walk to the shoreline at Vilano Beach for sunrises, beach walks, and ocean breezes. The iconic Vilano Pier is also just moments away, offering fishing, sunset views, and waterfront recreation. The surrounding area is truly special; quaint and walkable with beloved local restaurants, coastal cafés, and charming boutique stops nearby. Enjoy the relaxed beach-town vibe of Vilano with the convenience of being minutes from historic downtown St. Augustine. Seaside Vista is a small enclave community of only 28 homes with low HOA fees. There's no wait, move right into your beach paradise because this is coastal living at its finest!
RE/MAX SPECIALISTS, MLS 2117061
May also be listed on the Dream Finders Homes website
Information last verified by Jome: Today at 1:27 AM (December 6, 2025)
Home highlights
Iconic golf course in Ponte Vedra Beach, home to The Players Championship and renowned island green on hole 17.
Book your tour. Save an average of $18,473. We'll handle the rest.
We collect exclusive builder offers, book your tours, and support you from start to housewarming.
- Confirmed tours
- Get matched & compare top deals
- Expert help, no pressure
- No added fees
Estimated value based on Jome data, T&C apply
Home details
- Property status:
- Move-in ready
- Lot size (acres):
- 0.19
- Size:
- 3,340 sqft
- Stories:
- 2
- Beds:
- 5
- Baths:
- 4
- Garage spaces:
- 3
- Fence:
- Privacy Fence, Vinyl Fence
Construction details
- Builder Name:
- Dream Finders Homes
- Year Built:
- 2023
- Roof:
- Wood Shingle Roofing, Composition Roofing, Shingle Roofing
Home features & finishes
- Appliances:
- Sprinkler System
- Construction Materials:
- CementFrame
- Cooling:
- Ceiling Fan(s)Central Air
- Flooring:
- Wood FlooringConcrete FlooringCarpet FlooringTile Flooring
- Garage/Parking:
- GarageAttached Garage
- Home amenities:
- Green Construction
- Interior Features:
- Walk-In ClosetShower and Tub in Primary BathFoyerPantryBreakfast Bar
- Kitchen:
- DishwasherMicrowave OvenRefrigeratorDisposalElectric CooktopSelf Cleaning OvenKitchen IslandKitchen RangeElectric Oven
- Laundry facilities:
- DryerWasher
- Lighting:
- Lighting
- Property amenities:
- Cul-de-sacBackyardPatioPorch
- Rooms:
- KitchenNookGuest RoomBreakfast AreaOpen Concept Floorplan
- Security system:
- Security SystemSmoke Detector
Utility information
- Heating:
- Heat Pump, Zoned Heating, Water Heater, Central Heating
- Utilities:
- Electricity Available, HVAC, Cable Available, Sewer Available, Water Available

Community details
Seaside Vista
by Dream Finders Homes, St. Augustine, FL
- 2 homes
- 1 plan
- 3,338 - 3,340 sqft
View Seaside Vista details
Community amenities
- Green Program
- Beach Access
More homes in Seaside Vista
Floor plans in Seaside Vista
About the builder - Dream Finders Homes
Neighborhood
Home address
- City:
- St. Augustine
- County:
- St. Johns
- Zip Code:
- 32084
Schools in St. Johns County School District
- Grades 06-12Publicst johns county juvenile residential2.3 mi4500 avenue dna
GreatSchools’ Summary Rating calculation is based on 4 of the school’s themed ratings, including test scores, student/academic progress, college readiness, and equity. This information should only be used as a reference. Jome is not affiliated with GreatSchools and does not endorse or guarantee this information. Please reach out to schools directly to verify all information and enrollment eligibility. Data provided by GreatSchools.org © 2025
Places of interest
Getting around
Noise level
A Soundscore™ rating is a number between 50 (very loud) and 100 (very quiet) that tells you how loud a location is due to environmental noise.
Natural hazards risk
Climate hazards can impact homes and communities, with risks varying by location. These scores reflect the potential impact of natural disasters and climate-related risks on St. Johns County
Provided by FEMA

Considering this home?
Our expert will guide your tour, in-person or virtual
Need more information?
Text or call (888) 486-2818
Financials
Estimated monthly payment
Similar homes nearby
Recently added communities in this area
Nearby communities in St. Augustine
New homes in nearby cities
More New Homes in St. Augustine, FL
RE/MAX SPECIALISTS, MLS 2117061
IDX information is provided exclusively for personal, non-commercial use, and may not be used for any purpose other than to identify prospective properties consumers may be interested in purchasing. Data is deemed reliable but is not guaranteed accurate by NEFMLS. © 2025 Northeast Florida Multiple Listing Service, Inc. All rights reserved.
Read moreLast checked Dec 6, 11:00 am
- Home
- New homes
- Florida
- Jacksonville Metropolitan Area
- St. Johns County
- St. Augustine
- Seaside Vista
- 132 Seaside Vista Ct, Saint Augustine, FL 32084


























