








Book your tour. Save an average of $18,473. We'll handle the rest.
We collect exclusive builder offers, book your tours, and support you from start to housewarming.
- Confirmed tours
- Get matched & compare top deals
- Expert help, no pressure
- No added fees
Estimated value based on Jome data, T&C apply











- 3 bd
- 3 ba
711 Ne 23 Ter, Unit 2206, Miami, FL 33137
Why tour with Jome?
- No pressure toursTour at your own pace with no sales pressure
- Expert guidanceGet insights from our home buying experts
- Exclusive accessSee homes and deals not available elsewhere
Jome is featured in
- Condo
- Quick move-in
- $1,500/monthly HOA
- 1 days on Jome
Home description
Luxury Oceanfront Apartment
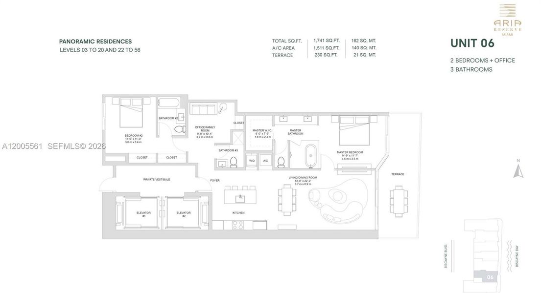
Experience elevated coastal living in this stunning luxury apartment featuring direct ocean views and premium finishes throughout. This spacious residence offers 3 bedrooms, 3 bathrooms, and 1,570 sq ft of beautifully designed living space. The high-end gourmet kitchen is equipped with top-of-the-line German appliances, perfect for both everyday living and entertaining.
Enjoy the exclusivity of a private elevator with direct access to the apartment, located in a prestigious, upscale building that ensures privacy and comfort.
The property boasts exceptional amenities, including:
State-of-the-art fitness center
Tennis court
Basketball court
Full-service spa
Spectacular oceanfront swimming pool
All of this offered at an excellent price, making it a rare opportunity to own or rent a true luxury oceanfront residence.
Emerald Ocean Real Estate, MLS A12005561
Information last verified by Jome: Today at 12:20 PM (April 22, 2026)
Book your tour. Save an average of $18,473. We'll handle the rest.
We collect exclusive builder offers, book your tours, and support you from start to housewarming.
- Confirmed tours
- Get matched & compare top deals
- Expert help, no pressure
- No added fees
Estimated value based on Jome data, T&C apply
Home details
- Property status:
- Move-in ready
- Neighborhood:
- Wynwood - Edgewater
- Beds:
- 3
- Baths:
- 3
- Garage spaces:
- 2
Construction details
- Year Built:
- 2025
Home features & finishes
- Appliances:
- Trash Compactor
- Construction Materials:
- Concrete
- Garage/Parking:
- Garage
- Interior Features:
- Walk-In Closet
- Kitchen:
- DishwasherMicrowave Oven
- Pets:
- Pets Allowed
- Property amenities:
- DeckBBQ AreaCourtyard

Get a consultation with our New Homes Expert
- See how your home builds wealth
- Plan your home-buying roadmap
- Discover hidden gems
Utility information
- Heating:
- Central Heating
Community amenities
- Waterfront View
Neighborhood
Home address
- Neighborhood:
- Wynwood - Edgewater
- City:
- Miami
- County:
- Miami-Dade
- Zip Code:
- 33137
Schools in Dade County School District
- Grades PK-KGPrivatemia piccolo montessori school0.3 mi2302 ne 2nd avena
- Grades M-MPublicaspira arts deco charter0.6 mi1911 ne miami ctna
- Grades KG-12Publicmiami-dade online academy- virtual instruction program0.8 mi1501 northeast 2nd avenue8/10
GreatSchools’ Summary Rating calculation is based on 4 of the school’s themed ratings, including test scores, student/academic progress, college readiness, and equity. This information should only be used as a reference. Jome is not affiliated with GreatSchools and does not endorse or guarantee this information. Please reach out to schools directly to verify all information and enrollment eligibility. Data provided by GreatSchools.org © 2025
Places of interest
Getting around
12 nearby routes: 11 bus, 1 rail, 0 otherAir quality
Noise level
A Soundscore™ rating is a number between 50 (very loud) and 100 (very quiet) that tells you how loud a location is due to environmental noise.
Natural hazards risk
Provided by FEMA

Considering this home?
Our expert will guide your tour, in-person or virtual
Need more information?
Text or call (888) 545-5198
Financials
Estimated monthly payment
Let us help you find your dream home
How many bedrooms are you looking for?
Similar homes nearby
Recently added communities in this area
Nearby communities in Miami
New homes in nearby cities
More New Homes in Miami, FL
Emerald Ocean Real Estate, MLS A12005561
IDX information is provided exclusively for personal, non-commercial use, and may not be used for any purpose other than to identify prospective properties consumers may be interested in purchasing. Information is deemed reliable but not guaranteed.
Read moreLast checked Apr 22, 12:20 pm
- Jome
- New homes search
- Florida
- Miami Metropolitan Area
- Miami-Dade County
- Miami
- 711 Ne 23 Ter, Unit 2206, Miami, FL 33137


























