








Book your tour. Save an average of $18,473. We'll handle the rest.
We collect exclusive builder offers, book your tours, and support you from start to housewarming.
- Confirmed tours
- Get matched & compare top deals
- Expert help, no pressure
- No added fees
Estimated value based on Jome data, T&C apply



























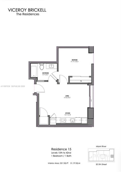
- 1 bd
- 1 ba
- 551 sqft
77 Se 5, Unit 1915, Miami, FL 33131
Why tour with Jome?
- No pressure toursTour at your own pace with no sales pressure
- Expert guidanceGet insights from our home buying experts
- Exclusive accessSee homes and deals not available elsewhere
Jome is featured in
- Condo
- Quick move-in
- $1361.16/sqft
- $660/monthly HOA
Home description
Flooded with natural light from the moment you walk in, this brand-new 1BR at Viceroy Brickell stands out instantly. Never lived in, featuring stunning bay-to-city and serene river views, bright, modern, and move-in ready. Private balcony, in-unit W/D, and full luxury amenities in the heart of Brickell, steps from top dining, shopping, and entertainment. Seller motivated.
Easy to show, call René at 304-970-7486. Unit NOT furnished; photos are for reference.
Miami Style Realty LLC, MLS A11997636
Information last verified by Jome: Today at 12:04 AM (April 17, 2026)
Book your tour. Save an average of $18,473. We'll handle the rest.
We collect exclusive builder offers, book your tours, and support you from start to housewarming.
- Confirmed tours
- Get matched & compare top deals
- Expert help, no pressure
- No added fees
Estimated value based on Jome data, T&C apply
Home details
- Property status:
- Move-in ready
- Neighborhood:
- Brickell
- Size:
- 551 sqft
- Stories:
- 45
- Beds:
- 1
- Baths:
- 1
- Garage spaces:
- 1
- Facing direction:
- South
Construction details
- Year Built:
- 2026
Home features & finishes
- Appliances:
- Trash Compactor
- Flooring:
- Ceramic Flooring
- Garage/Parking:
- GarageAttached GarageValet Parking
- Kitchen:
- DishwasherDisposal
- Laundry facilities:
- Dryer
- Pets:
- Pets Allowed with Weight Restrictions
- Security system:
- Fire Alarm System

Get a consultation with our New Homes Expert
- See how your home builds wealth
- Plan your home-buying roadmap
- Discover hidden gems
Utility information
- Heating:
- Central Heating
Community amenities
- City View
- Waterfront View
- Ocean View
Neighborhood
Home address
- County:
- Miami-Dade
- Zip Code:
- 33131
Places of interest
Getting around
31 nearby routes: 26 bus, 5 rail, 0 otherAir quality
Noise level
A Soundscore™ rating is a number between 50 (very loud) and 100 (very quiet) that tells you how loud a location is due to environmental noise.
Natural hazards risk
Provided by FEMA

Considering this home?
Our expert will guide your tour, in-person or virtual
Need more information?
Text or call (888) 545-5198
Financials
Estimated monthly payment
Let us help you find your dream home
How many bedrooms are you looking for?
Similar homes nearby
Recently added communities in this area
Nearby communities in Miami
New homes in nearby cities
More New Homes in Miami, FL
Miami Style Realty LLC, MLS A11997636
IDX information is provided exclusively for personal, non-commercial use, and may not be used for any purpose other than to identify prospective properties consumers may be interested in purchasing. Information is deemed reliable but not guaranteed.
Read moreLast checked Apr 17, 12:20 am
- Jome
- New homes search
- Florida
- Miami Metropolitan Area
- Miami-Dade County
- Miami
- 77 Se 5, Unit 1915, Miami, FL 33131

























