








Book your tour. Save an average of $18,473. We'll handle the rest.
We collect exclusive builder offers, book your tours, and support you from start to housewarming.
- Confirmed tours
- Get matched & compare top deals
- Expert help, no pressure
- No added fees
Estimated value based on Jome data, T&C apply






- 4 bd
- 2 ba
- 1,665 sqft
16812 Elkhorn Coral Dr, North Fort Myers, FL 33903
Why tour with Jome?
- No pressure toursTour at your own pace with no sales pressure
- Expert guidanceGet insights from our home buying experts
- Exclusive accessSee homes and deals not available elsewhere
Jome is featured in
- Single-Family
- Quick move-in
- $209.18/sqft
- 47 days on Jome
Home description
About this home
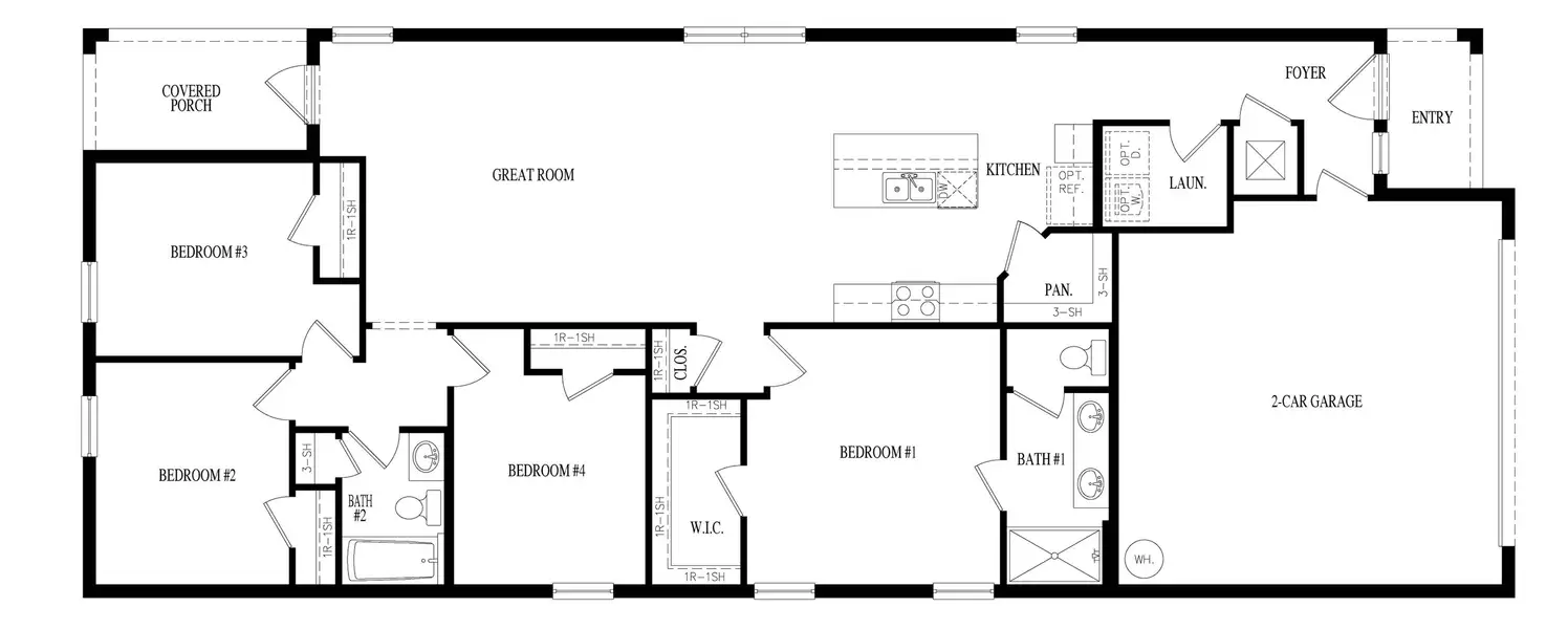
Coral Bay - North Fort Myers, Florida. This Harper Plan offers 1,675 square feet of living space with four bedrooms, two bathrooms, and a two car garage, delivering modern design and everyday comfort.
The open concept kitchen is ideal for entertaining and features IMPACT GLASS windows and doors, quartz countertops, a large center island, stainless steel appliances, and light shaker style cabinetry. The spacious primary suite includes dual quartz vanities, a walk in shower, and a private water closet.
Additional highlights include a dedicated laundry room, RevWood luxury vinyl plank flooring throughout the main living areas, and the latest Smart Home technology.
Enjoy life in this gated community, conveniently located near I 75, the Fort Myers River District, charming downtown Punta Gorda, shopping, boating, medical facilities, and more. The amenities center features a clubhouse with fitness center, resort style pool, bocce, pickleball and tennis courts, splash pad, and tot lot.
Finishings may vary - images are representational only of the model home based in that community.
May also be listed on the D.R. Horton website
Information last verified by Jome: Thursday at 3:00 AM (May 14, 2026)
Book your tour. Save an average of $18,473. We'll handle the rest.
We collect exclusive builder offers, book your tours, and support you from start to housewarming.
- Confirmed tours
- Get matched & compare top deals
- Expert help, no pressure
- No added fees
Estimated value based on Jome data, T&C apply
Home details
- Property status:
- Move-in ready
- Size:
- 1,665 sqft
- Stories:
- 1
- Beds:
- 4
- Baths:
- 2
- Garage spaces:
- 2
Construction details
- Builder Name:
- D.R. Horton
Home features & finishes
- Garage/Parking:
- GarageAttached Garage
- Interior Features:
- Walk-In ClosetFoyer
- Laundry facilities:
- Utility/Laundry Room
- Property amenities:
- Porch
- Rooms:
- Primary Bedroom On MainKitchenDining RoomFamily RoomPrimary Bedroom Downstairs

Get a consultation with our New Homes Expert
- See how your home builds wealth
- Plan your home-buying roadmap
- Discover hidden gems

Community details
Coral Bay - Express & Tradition
by D.R. Horton, North Fort Myers, FL
- 24 homes
- 12 plans
- 1,302 - 2,605 sqft
View Coral Bay - Express & Tradition details
More homes in Coral Bay - Express & Tradition
- Home at address 2690 Soft Coral Way, N, Fort Myers, FL 33903

Harper
$330,999
- 4 bd
- 2 ba
- 1,665 sqft
2690 Soft Coral Way, N, Fort Myers, FL 33903
- Home at address 2654 Soft Coral Way, N, Fort Myers, FL 33903

Harper
$345,380
- 4 bd
- 2 ba
- 1,665 sqft
2654 Soft Coral Way, N, Fort Myers, FL 33903
- Home at address 2601 Star Coral Dr, North Fort Myers, FL 33903

Cali
$387,285
- 4 bd
- 2 ba
- 1,828 sqft
2601 Star Coral Dr, North Fort Myers, FL 33903
Floor plans in Coral Bay - Express & Tradition
About the builder - D.R. Horton

- 1,147communities on Jome
- 10,817homes on Jome
Neighborhood
Home address
- City:
- North Fort Myers
- County:
- Lee
- Zip Code:
- 33903
Schools in Lee County School District
GreatSchools’ Summary Rating calculation is based on 4 of the school’s themed ratings, including test scores, student/academic progress, college readiness, and equity. This information should only be used as a reference. Jome is not affiliated with GreatSchools and does not endorse or guarantee this information. Please reach out to schools directly to verify all information and enrollment eligibility. Data provided by GreatSchools.org © 2025
Places of interest
Getting around
Air quality
Noise level
A Soundscore™ rating is a number between 50 (very loud) and 100 (very quiet) that tells you how loud a location is due to environmental noise.

Considering this home?
Our expert will guide your tour, in-person or virtual
Need more information?
Text or call (888) 545-5198
Financials
Estimated monthly payment
Let us help you find your dream home
How many bedrooms are you looking for?
Similar homes nearby
Recently added communities in this area
Nearby communities in North Fort Myers
New homes in nearby cities
More New Homes in North Fort Myers, FL
- Jome
- New homes search
- Florida
- Lee County
- North Fort Myers
- Coral Bay - Express & Tradition
- 16812 Elkhorn Coral Dr, North Fort Myers, FL 33903































