









Book your tour. Save an average of $18,473. We'll handle the rest.
We collect exclusive builder offers, book your tours, and support you from start to housewarming.
- Confirmed tours
- Get matched & compare top deals
- Expert help, no pressure
- No added fees
Estimated value based on Jome data, T&C apply









- 4 bd
- 4.5 ba
- 2,875 sqft
671 Avenida Del Norte, Sarasota, FL 34242
Why tour with Jome?
- No pressure toursTour at your own pace with no sales pressure
- Expert guidanceGet insights from our home buying experts
- Exclusive accessSee homes and deals not available elsewhere
Jome is featured in
- Single-Family
- Ready by December 2026
- $1113.04/sqft
- South facing
Home description
Custom Canal-front home underway by Salt Wave Construction, ideally located just a stroll from Siesta Key Beach and Village.
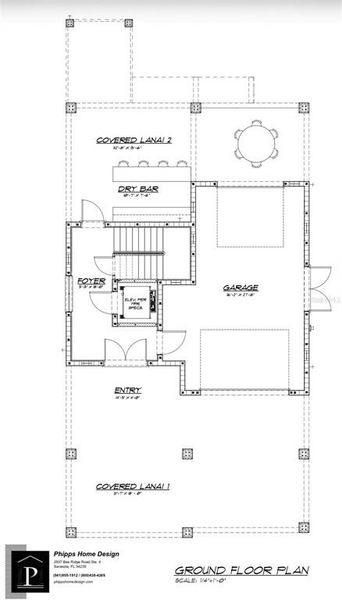
Built entirely with solid block construction, this home showcases high-quality materials throughout, including hurricane-impact windows. Designed with durability in mind, its island-style construction ensures lasting strength and resilience.Thoughtfully designed to maximize its waterfront setting, the home showcases expansive porches and a spectacular rooftop deck spanning the entire roofline, offering panoramic views of the wide canal and surrounding Siesta Key landscape.
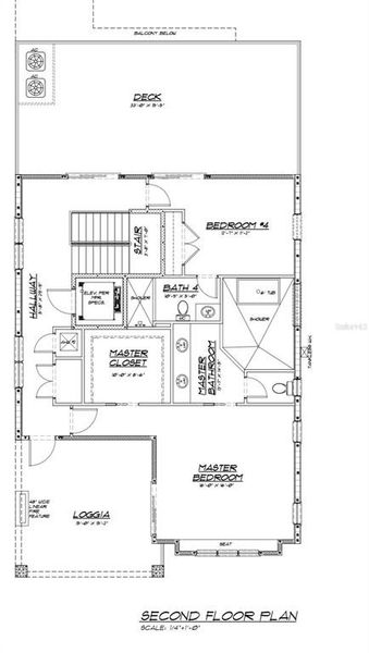
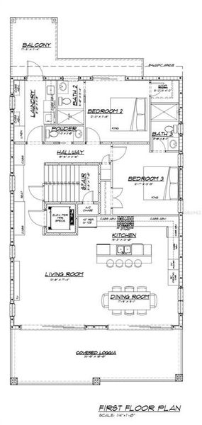
This approximately 3,000-square-foot home features 4 spacious bedrooms, each with its own en-suite bath, delivering both comfort and privacy. The primary suite is a true retreat, boasting a luxurious oversized bathroom, an expansive walk-in closet, and a private canal view loggia with a fireplace—perfect for relaxing evenings.
Crafted with a seamless blend of sophisticated design and high-quality finishes, this residence provides an unparalleled sanctuary. The outdoor living space includes an open pool area, ideal for entertaining, unwinding, or enjoying direct access to Sarasota’s scenic waterways.
Located just minutes from world-renowned white sand beaches, vibrant dining, shopping, and entertainment, this home perfectly balances tranquility and convenience in one of Sarasota’s most desirable neighborhoods.
Estimated completion: approximately 10-12 months.
COLDWELL BANKER REALTY, MLS A4687911
Information last verified by Jome: Today at 3:11 PM (April 1, 2026)
Book your tour. Save an average of $18,473. We'll handle the rest.
We collect exclusive builder offers, book your tours, and support you from start to housewarming.
- Confirmed tours
- Get matched & compare top deals
- Expert help, no pressure
- No added fees
Estimated value based on Jome data, T&C apply
Home details
- Property status:
- Under construction
- Lot size (acres):
- 0.14
- Size:
- 2,875 sqft
- Stories:
- 2
- Beds:
- 4
- Baths:
- 4
- Half baths:
- 1
- Garage spaces:
- 2
- Facing direction:
- South
Construction details
- Completion Date:
- December, 2026
- Year Built:
- 2026
- Roof:
- Roof Gutter, Tile Roofing
Home features & finishes
- Appliances:
- Exhaust FanIce Maker
- Construction Materials:
- StuccoConcrete
- Cooling:
- Ceiling Fan(s)Central Air
- Flooring:
- Ceramic FlooringTile FlooringHardwood Flooring
- Foundation Details:
- SlabPillar/Post/PierBlock
- Garage/Parking:
- GarageAttached Garage
- Home amenities:
- Internet
- Interior Features:
- Ceiling-HighWalk-In Closet
- Kitchen:
- DishwasherMicrowave OvenOvenRefrigeratorDisposalBuilt-In OvenConvection OvenCooktopKitchen Range
- Laundry facilities:
- DryerWasherUtility/Laundry Room
- Lighting:
- Exterior LightingLighting
- Property amenities:
- SidewalkPoolDeckOutdoor FireplaceCabinetsElevatorIrrigationFireplacePorch
- Rooms:
- Open Concept FloorplanPrimary Bedroom Upstairs

Get a consultation with our New Homes Expert
- See how your home builds wealth
- Plan your home-buying roadmap
- Discover hidden gems
Utility information
- Heating:
- Water Heater, Central Heating
- Utilities:
- Electricity Available, Phone Available, Propane, Cable Available, Water Available
Community amenities
- Waterfront View
Neighborhood
Home address
Schools in Sarasota County School District
- Grades PK-12Privatethe out-of-door academy0.8 mi444 reid stna
GreatSchools’ Summary Rating calculation is based on 4 of the school’s themed ratings, including test scores, student/academic progress, college readiness, and equity. This information should only be used as a reference. Jome is not affiliated with GreatSchools and does not endorse or guarantee this information. Please reach out to schools directly to verify all information and enrollment eligibility. Data provided by GreatSchools.org © 2025
Places of interest
Getting around
Air quality
Noise level
A Soundscore™ rating is a number between 50 (very loud) and 100 (very quiet) that tells you how loud a location is due to environmental noise.
Natural hazards risk
Provided by FEMA

Considering this home?
Our expert will guide your tour, in-person or virtual
Need more information?
Text or call (888) 545-5198
Financials
Estimated monthly payment
Let us help you find your dream home
How many bedrooms are you looking for?
Similar homes nearby
Recently added communities in this area
Nearby communities in Sarasota
New homes in nearby cities
More New Homes in Sarasota, FL
COLDWELL BANKER REALTY, MLS A4687911
Based on information submitted to the MLS GRID as of 10/21/2024 2:31 PM CDT. All data is obtained from various sources and may not have been verified by broker or MLS GRID. Supplied Open House Information is subject to change without notice. All information should be independently reviewed and verified for accuracy. Properties may or may not be listed by the office/agent presenting the information. Some IDX listings have been excluded from this website. Properties displayed may be listed or sold by various participants in the MLS. IDX information is provided exclusively for personal, non-commercial use, and may not be used for any purpose other than to identify prospective properties consumers may be interested in purchasing. Information is deemed reliable but not guaranteed. Use of the MLS GRID Data may be subject to an end user license agreement prescribed by the Member Participant’s applicable MLS if any and as amended from time to time. The Digital Millennium Copyright Act of 1998, 17 U.S.C. § 512 (the “DMCA”) provides recourse for copyright owners who believe that material appearing on the Internet infringes their rights under U.S. copyright law. If you believe in good faith that any content or material made available in connection with our website or services infringes your copyright, you (or your agent) may send us a notice requesting that the content or material be removed, or access to it blocked. Notices must be sent in writing by email to DMCAnotice@MLSGrid.com. The DMCA requires that your notice of alleged copyright infringement include the following information: (1) description of the copyrighted work that is the subject of claimed infringement; (2) description of the alleged infringing content and information sufficient to permit us to locate the content; (3) contact information for you, including your address, telephone number and email address; (4) a statement by you that you have a good faith belief that the content in the manner complained of is not authorized by the copyright owner, or its agent, or by the operation of any law; (5) a statement by you, signed under penalty of perjury, that the information in the notification is accurate and that you have the authority to enforce the copyrights that are claimed to be infringed; and (6) a physical or electronic signature of the copyright owner or a person authorized to act on the copyright owner’s behalf. Failure to include all of the above information may result in the delay of the processing of your complaint. Listing Information presented by local MLS brokerage: NewHomesMate LLC, DBA Jome (888) 545-5198
Read moreLast checked Apr 1, 3:10 pm
- Jome
- New homes search
- Florida
- Sarasota County
- Sarasota
- 671 Avenida Del Norte, Sarasota, FL 34242



























