









Book your tour. Save an average of $18,473. We'll handle the rest.
We collect exclusive builder offers, book your tours, and support you from start to housewarming.
- Confirmed tours
- Get matched & compare top deals
- Expert help, no pressure
- No added fees
Estimated value based on Jome data, T&C apply


















- 5 bd
- 5 ba
- 3,996 sqft
148 Blue River Dr, St. Augustine, FL 32092
Why tour with Jome?
- No pressure toursTour at your own pace with no sales pressure
- Expert guidanceGet insights from our home buying experts
- Exclusive accessSee homes and deals not available elsewhere
Jome is featured in
- Single-Family
- Under construction
- $346.82/sqft
- $1,700/annual HOA
Home description
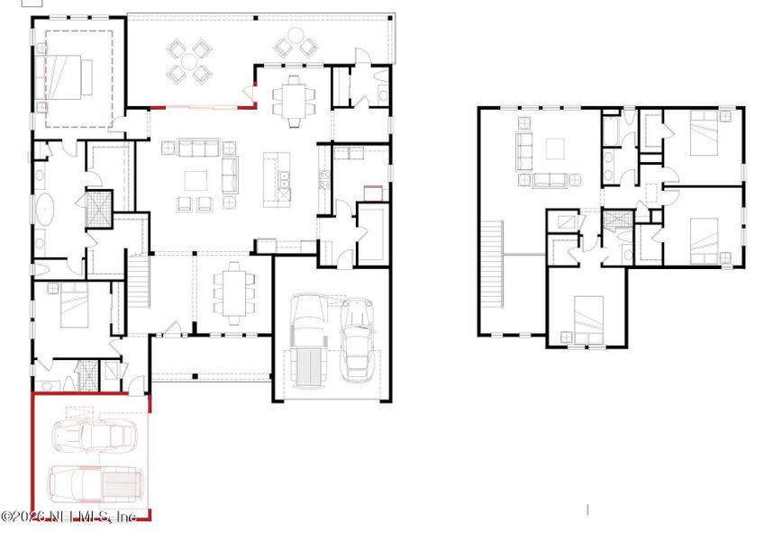
Discover this ''Kasie'' new construction POOL HOME by MasterCraft Builder Group, nestled in the gated Hidden Creek neighborhood at John's Island within the no-CDD Silverleaf community. This 2-story home offers a sought-after 4-car garage, spacious owner's suite with large shower and freestanding tub, secondary bedroom with a full bath on the main floor, pool bath, and pocket office. Upstairs features 3 additional bedrooms, 2 full baths, and a large bonus room. The gourmet kitchen shines with Electrolux appliances, Cambria quartz countertops, soft-close dovetail drawers, double-stacked upper cabinets, and an oversized pantry. Revwood floors grace the main floor, providing a clean and modern look with outstanding durability. Relax in your private pool fenced within your backyard. This home's prime location offers an easy walk or golf cart ride to the community amenity center.
PERRY HOMES, MLS 2137623
May also be listed on the MasterCraft Builder Group website
Information last verified by Jome: Today at 1:23 AM (May 17, 2026)
Book your tour. Save an average of $18,473. We'll handle the rest.
We collect exclusive builder offers, book your tours, and support you from start to housewarming.
- Confirmed tours
- Get matched & compare top deals
- Expert help, no pressure
- No added fees
Estimated value based on Jome data, T&C apply
Home details
- Property status:
- Under construction
- Lot size (acres):
- 0.23
- Size:
- 3,996 sqft
- Stories:
- 2
- Beds:
- 5
- Baths:
- 5
- Half baths:
- 1
- Garage spaces:
- 3
- Facing direction:
- North
Construction details
- Builder Name:
- MasterCraft Builder Group
- Year Built:
- 2026
Home features & finishes
- Cooling:
- Central Air
- Garage/Parking:
- GarageAttached Garage
- Home amenities:
- ENERGY STAR Certified
- Interior Features:
- Walk-In ClosetShower and Tub in Primary BathPantry
- Kitchen:
- DishwasherMicrowave OvenRefrigeratorFreezerKitchen IslandElectric Oven
- Laundry facilities:
- DryerWasher
- Property amenities:
- Porch
- Rooms:
- Open Concept Floorplan

Get a consultation with our New Homes Expert
- See how your home builds wealth
- Plan your home-buying roadmap
- Discover hidden gems
Utility information
- Heating:
- Thermostat, Water Heater, Central Heating, Tankless water heater
- Sewer:
- Public Sewer
- Utilities:
- Electricity Available, Natural Gas Available, Sewer Available, Water Available
- Water source:
- Public

Community details
SilverLeaf at SilverLeaf
by MasterCraft Builder Group, St. Augustine, FL
- 11 homes
- 2,496 - 4,757 sqft
View SilverLeaf details
More homes in SilverLeaf
- Home at address 14 River Branch Ct, St. Augustine, FL 32092

Harper - Courtney Oaks
Savings$1,149,900
- 5 bd
- 5 ba
- 4,055 sqft
14 River Branch Ct, St. Augustine, FL 32092
- Home at address 233 Arbor Creek Dr, St. Augustine, FL 32092

Harper
Savings$1,314,900
- 5 bd
- 5 ba
- 4,055 sqft
233 Arbor Creek Dr, St. Augustine, FL 32092
- Home at address 108 Blue River Dr, St. Augustine, FL 32092

Home
Savings$1,472,900
- 5 bd
- 6 ba
- 4,757 sqft
108 Blue River Dr, St. Augustine, FL 32092
Floor plans in SilverLeaf
- View details for Nicholas - Hidden Creek 80’

Images coming soon
Nicholas - Hidden Creek 80’
$900,000+- 4 bd
- 3 ba
- 2,987 sqft
About the builder - MasterCraft Builder Group
Neighborhood
Home address
- City:
- St. Augustine
- County:
- St. Johns
- Zip Code:
- 32092
Schools in St. Johns County School District
GreatSchools’ Summary Rating calculation is based on 4 of the school’s themed ratings, including test scores, student/academic progress, college readiness, and equity. This information should only be used as a reference. Jome is not affiliated with GreatSchools and does not endorse or guarantee this information. Please reach out to schools directly to verify all information and enrollment eligibility. Data provided by GreatSchools.org © 2025
Places of interest
Getting around

Considering this home?
Our expert will guide your tour, in-person or virtual
Need more information?
Text or call (888) 545-5198
Financials
Estimated monthly payment
Let us help you find your dream home
How many bedrooms are you looking for?
Similar homes nearby
Recently added communities in this area
Nearby communities in St. Augustine
New homes in nearby cities
More New Homes in St. Augustine, FL
PERRY HOMES, MLS 2137623
IDX information is provided exclusively for personal, non-commercial use, and may not be used for any purpose other than to identify prospective properties consumers may be interested in purchasing. Data is deemed reliable but is not guaranteed accurate by NEFMLS. © 2025 Northeast Florida Multiple Listing Service, Inc. All rights reserved.
Read moreLast checked May 17, 5:00 am
- Jome
- New homes search
- Florida
- Jacksonville Metropolitan Area
- St. Johns County
- St. Augustine
- SilverLeaf
- 148 Blue River Dr, St. Augustine, FL 32092



























