








Book your tour. Save an average of $18,473. We'll handle the rest.
We collect exclusive builder offers, book your tours, and support you from start to housewarming.
- Confirmed tours
- Get matched & compare top deals
- Expert help, no pressure
- No added fees
Estimated value based on Jome data, T&C apply




































































- 5 bd
- 5 ba
- 4,434 sqft
7176 S Shore Dr S, St. Petersburg, FL 33707
Why tour with Jome?
- No pressure toursTour at your own pace with no sales pressure
- Expert guidanceGet insights from our home buying experts
- Exclusive accessSee homes and deals not available elsewhere
Jome is featured in
- Single-Family
- Quick move-in
- $800.63/sqft
- Southeast facing
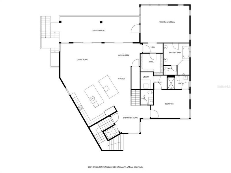
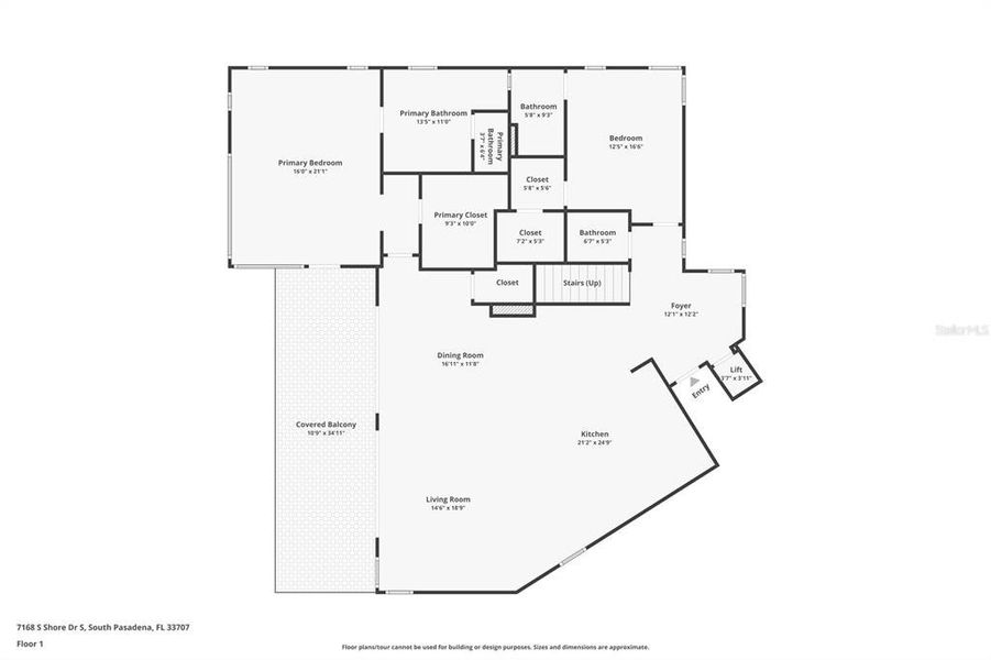
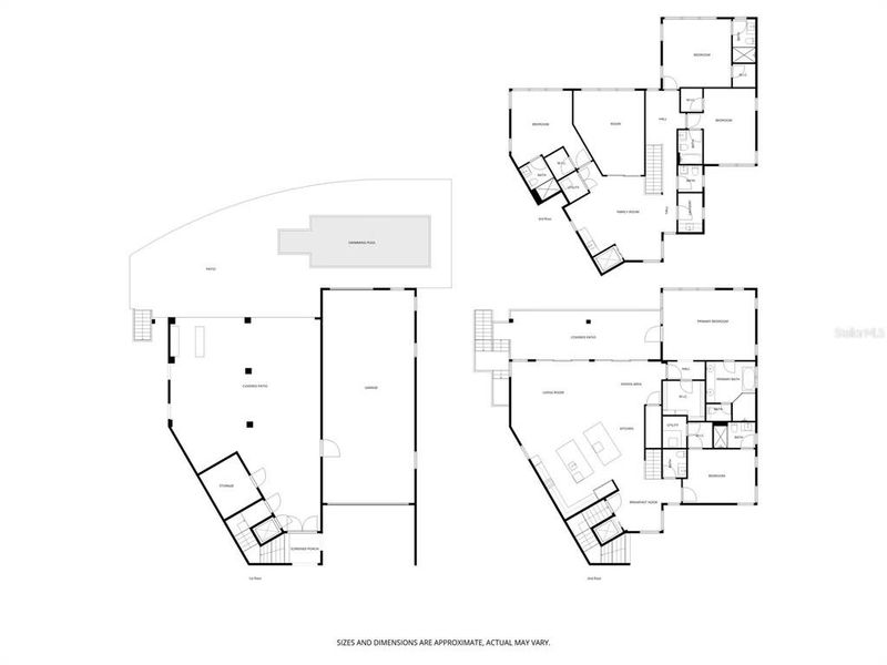
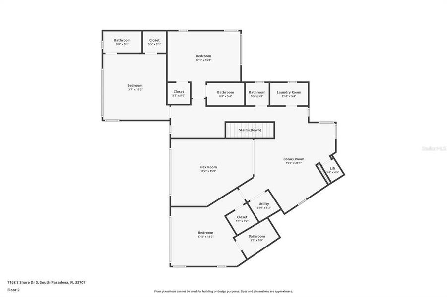
Home description
Newly Completed. Modern Waterfront Luxury Estate in Pasadena Isles. Discover this extraordinary modern European-style masterpiece by Everstone Development. This stunning elevated two-story waterfront estate features 5 bedrooms, 4 full bathrooms + 2 half bathrooms, and over 4,000 sf of living space. Boasting direct frontage on the Intracoastal Waterway (Boca Ciega Bay), the home offers breathtaking water views and effortless coastal living, just a 5-minute drive from the beach. Wake to the gentle sounds of the water, enjoy effortless days of boating and water sports, and end each evening with spectacular golden sunsets from your own backyard oasis. The expansive open-concept design seamlessly blends indoor and outdoor living with 80 feet of dramatic floor-to-ceiling glass that frames sweeping views of the sparkling pool and serene waterway beyond. Step outside to the expansive 40-foot covered lanai, perfect for year-round alfresco dining and entertaining while soaking in the sunset views. The property includes a large private dock, ready for your boat lift to be installed, ideal for a quick access to some of the area’s best fishing spots. Additional highlights include: A state-of-the-art elevator for effortless access to all levels, a 4-tandem car garage with ample room for vehicles, water toys, beach gear, or a hobby workshop and a private media room. The expansive outdoor living area is a true showstopper, featuring an oversized patio with abundant open space perfect for launching kayaks or paddleboards, hosting lively gatherings, or simply unwinding in style. At the heart of the space sits an outdoor kitchen complete with a built-in grill, offering the ultimate convenience for a dining and entertaining. Whether you're hosting sunset cocktail parties, family barbecues, or relaxed waterfront dinners, this generous area seamlessly blends luxury and functionality. Every vantage point delivers stunning waterfront views across the sparkling pool to the serene Intracoastal Waterway beyond, creating an inviting backdrop that makes every moment feel like a private resort escape.
Thoughtful design that prioritizes both luxury and functionality for today’s modern lifestyle.
Located just 20 minutes from vibrant downtown St. Petersburg, you’ll enjoy easy access to world-class dining, shopping, cultural attractions, and the iconic St. Pete Pier. This is more than a home — it’s a private waterfront sanctuary where every day feels like a vacation.
PREFERRED SHORE LLC, MLS TB8492040
Information last verified by Jome: Today at 3:12 PM (May 30, 2026)
Book your tour. Save an average of $18,473. We'll handle the rest.
We collect exclusive builder offers, book your tours, and support you from start to housewarming.
- Confirmed tours
- Get matched & compare top deals
- Expert help, no pressure
- No added fees
Estimated value based on Jome data, T&C apply
Home details
- Property status:
- Move-in ready
- Lot size (acres):
- 0.33
- Size:
- 4,434 sqft
- Stories:
- 2
- Beds:
- 5
- Baths:
- 5
- Half baths:
- 2
- Garage spaces:
- 4
- Facing direction:
- Southeast
Construction details
- Year Built:
- 2026
- Roof:
- Membrane Roofing
Home features & finishes
- Appliances:
- Exhaust FanSprinkler System
- Construction Materials:
- Block
- Cooling:
- Central Air
- Flooring:
- Ceramic FlooringTile FlooringHardwood Flooring
- Foundation Details:
- Slab
- Garage/Parking:
- GarageAttached Garage
- Interior Features:
- Ceiling-HighWalk-In ClosetSliding DoorsFrench Doors
- Kitchen:
- Wine RefrigeratorDishwasherMicrowave OvenOvenRefrigeratorDisposalBuilt-In OvenConvection OvenCooktop
- Laundry facilities:
- Utility/Laundry Room
- Lighting:
- Exterior Lighting
- Property amenities:
- BalconyPoolDeckStorage BuildingCabinetsElevatorIrrigationPatio
- Rooms:
- KitchenMedia RoomFamily RoomOpen Concept Floorplan

Get a consultation with our New Homes Expert
- See how your home builds wealth
- Plan your home-buying roadmap
- Discover hidden gems
Utility information
- Heating:
- Electric Heating, Thermostat, Water Heater, Central Heating, Tankless water heater
- Sewer:
- Public Sewer
- Utilities:
- Electricity Available, Cable Available, Water Available
- Water source:
- Public
Community amenities
- Waterfront View
Neighborhood
Home address
- City:
- St. Petersburg
- County:
- Pinellas
- Zip Code:
- 33707
Places of interest
Getting around
Air quality
Natural hazards risk
Provided by FEMA

Considering this home?
Our expert will guide your tour, in-person or virtual
Need more information?
Text or call (888) 545-5198
Financials
Estimated monthly payment
Let us help you find your dream home
How many bedrooms are you looking for?
Similar homes nearby
Recently added communities in this area
Nearby communities in St. Petersburg
New homes in nearby cities
More New Homes in St. Petersburg, FL
PREFERRED SHORE LLC, MLS TB8492040
Based on information submitted to the MLS GRID as of 10/21/2024 2:31 PM CDT. All data is obtained from various sources and may not have been verified by broker or MLS GRID. Supplied Open House Information is subject to change without notice. All information should be independently reviewed and verified for accuracy. Properties may or may not be listed by the office/agent presenting the information. Some IDX listings have been excluded from this website. Properties displayed may be listed or sold by various participants in the MLS. IDX information is provided exclusively for personal, non-commercial use, and may not be used for any purpose other than to identify prospective properties consumers may be interested in purchasing. Information is deemed reliable but not guaranteed. Use of the MLS GRID Data may be subject to an end user license agreement prescribed by the Member Participant’s applicable MLS if any and as amended from time to time. The Digital Millennium Copyright Act of 1998, 17 U.S.C. § 512 (the “DMCA”) provides recourse for copyright owners who believe that material appearing on the Internet infringes their rights under U.S. copyright law. If you believe in good faith that any content or material made available in connection with our website or services infringes your copyright, you (or your agent) may send us a notice requesting that the content or material be removed, or access to it blocked. Notices must be sent in writing by email to DMCAnotice@MLSGrid.com. The DMCA requires that your notice of alleged copyright infringement include the following information: (1) description of the copyrighted work that is the subject of claimed infringement; (2) description of the alleged infringing content and information sufficient to permit us to locate the content; (3) contact information for you, including your address, telephone number and email address; (4) a statement by you that you have a good faith belief that the content in the manner complained of is not authorized by the copyright owner, or its agent, or by the operation of any law; (5) a statement by you, signed under penalty of perjury, that the information in the notification is accurate and that you have the authority to enforce the copyrights that are claimed to be infringed; and (6) a physical or electronic signature of the copyright owner or a person authorized to act on the copyright owner’s behalf. Failure to include all of the above information may result in the delay of the processing of your complaint. Listing Information presented by local MLS brokerage: NewHomesMate LLC, DBA Jome (888) 545-5198
Read moreLast checked May 30, 3:12 pm
- Jome
- New homes search
- Florida
- Tampa Bay Area
- Pinellas County
- St. Petersburg
- 7176 S Shore Dr S, St. Petersburg, FL 33707


























