








Book your tour. Save an average of $18,473. We'll handle the rest.
We collect exclusive builder offers, book your tours, and support you from start to housewarming.
- Confirmed tours
- Get matched & compare top deals
- Expert help, no pressure
- No added fees
Estimated value based on Jome data, T&C apply















- 4 bd
- 4.5 ba
- 4,990 sqft
169 Tranquil Mirror Lake Ct, Unit Lot 7, Clermont, FL 34711
Why tour with Jome?
- No pressure toursTour at your own pace with no sales pressure
- Expert guidanceGet insights from our home buying experts
- Exclusive accessSee homes and deals not available elsewhere
Jome is featured in
- Single-Family
- Ready by March 2027
- $545.34/sqft
- $500/annual HOA
Home description
Introducing a premier LAKEFRONT elevated homesite within an exclusive gated luxury community. With expansive views across serene natural landscapes and tranquil water, this homesite truly stands out. Its higher position on the lake provides a rare vantage point, enhancing privacy while capturing sweeping panoramas and the charm of an active orange grove across the water. With approximately 90 feet of direct lake frontage and 90 feet of street frontage, the lot provides a generous and flexible building envelope suitable for a range of architectural expressions.
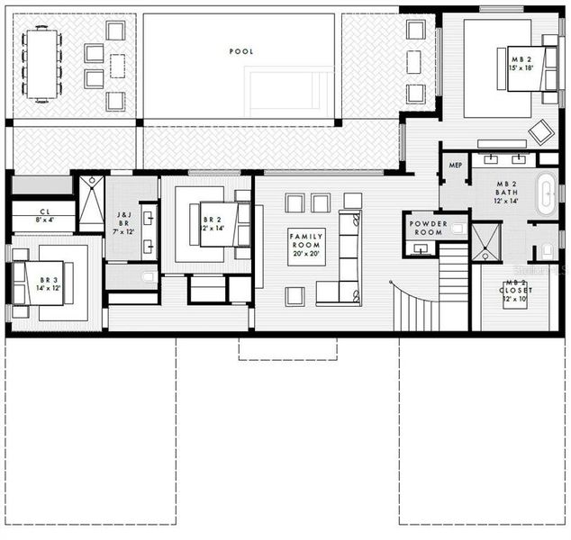
Designed as a refined retreat for elevated everyday living, the proposed 4,990 sq ft Nottingham residence blends architectural presence with warmth, comfort, and intentional design. Thoughtfully composed living spaces, curated materials, and layered natural light create a home that feels both elegant and effortless. The floor plan is intentionally adaptable, offering options for additional bedrooms, expanded garage capacity, and enhanced outdoor living environments while maintaining timeless craftsmanship.
The main floor includes the Primary suite, office/bonus room, 2 full baths, living room, kitchen and pantry, dining room, laundry, and a 2-car garage. The lower lakefront level includes 3 additional bedrooms and 2 additional baths, a powder room, and dedicated poolside living, ideal for entertaining or multi-generational living.
Situated within Mirror Lake, an intimate gated community of just 21 homesites, residents enjoy an uncommon pairing of lakefront serenity and wide-open golf course vistas from the adjacent Clermont National Golf Course. The setting offers privacy, exclusivity, and a lifestyle defined by natural beauty and architectural distinction.
This exceptional lot and custom designed home present a rare opportunity to build a luxury residence in one of Central Florida’s most captivating lakefront enclaves, offering privacy, exclusivity, and a thoughtful architectural vision. More than a place to live, Mirror Lake is a retreat for those who appreciate distinction, natural beauty, and a lifestyle designed with intention and differentiation. Close to all things but miles away in Lifestyle, this unique homesite is one of the most captivating sites in Mirror Lake —offering a timeless setting and an extraordinary canvas for your custom home. Call us to reserve this extraordinary Lot while you meet with MAREA Homes to explore this home design further and take next steps to making Mirror Lake your "Dream Home Come True!" There may be additional design fees from the Builder if the offered Home design is materially changed by Buyer.
RESOLUTE DEVELOPMENT GROUP, LLC, MLS O6391722
Information last verified by Jome: Today at 9:40 AM (May 16, 2026)
Home highlights
World-famous Orlando resort with four theme parks, immersive entertainment, and family living nearby.
Book your tour. Save an average of $18,473. We'll handle the rest.
We collect exclusive builder offers, book your tours, and support you from start to housewarming.
- Confirmed tours
- Get matched & compare top deals
- Expert help, no pressure
- No added fees
Estimated value based on Jome data, T&C apply
Home details
- Property status:
- Under construction
- Lot size (acres):
- 0.30
- Size:
- 4,990 sqft
- Stories:
- 2
- Beds:
- 4
- Baths:
- 4
- Half baths:
- 1
- Garage spaces:
- 2
- Facing direction:
- East
Construction details
- Completion Date:
- March, 2027
- Year Built:
- 2027
- Roof:
- Shingle Roofing
Home features & finishes
- Construction Materials:
- Block
- Cooling:
- Central Air
- Flooring:
- Tile Flooring
- Foundation Details:
- Slab
- Garage/Parking:
- GarageAttached Garage
- Interior Features:
- Walk-In Closet
- Kitchen:
- DishwasherMicrowave OvenRefrigeratorKitchen Range
- Pets:
- Pets Allowed
- Property amenities:
- PoolFireplace
- Rooms:
- KitchenDining RoomLiving RoomOpen Concept Floorplan

Get a consultation with our New Homes Expert
- See how your home builds wealth
- Plan your home-buying roadmap
- Discover hidden gems
Utility information
- Heating:
- Electric Heating
- Utilities:
- Electricity Available, Sewer Available, Water Available
- Water source:
- Public
Community amenities
- Gated Community
- Waterfront View
Neighborhood
Home address
Schools in Lake County School District
GreatSchools’ Summary Rating calculation is based on 4 of the school’s themed ratings, including test scores, student/academic progress, college readiness, and equity. This information should only be used as a reference. Jome is not affiliated with GreatSchools and does not endorse or guarantee this information. Please reach out to schools directly to verify all information and enrollment eligibility. Data provided by GreatSchools.org © 2025
Places of interest
Getting around
Noise level
A Soundscore™ rating is a number between 50 (very loud) and 100 (very quiet) that tells you how loud a location is due to environmental noise.
Natural hazards risk
Provided by FEMA

Considering this home?
Our expert will guide your tour, in-person or virtual
Need more information?
Text or call (888) 545-5198
Financials
Estimated monthly payment
Let us help you find your dream home
How many bedrooms are you looking for?
Similar homes nearby
Recently added communities in this area
Nearby communities in Clermont
New homes in nearby cities
More New Homes in Clermont, FL
RESOLUTE DEVELOPMENT GROUP, LLC, MLS O6391722
Based on information submitted to the MLS GRID as of 10/21/2024 2:31 PM CDT. All data is obtained from various sources and may not have been verified by broker or MLS GRID. Supplied Open House Information is subject to change without notice. All information should be independently reviewed and verified for accuracy. Properties may or may not be listed by the office/agent presenting the information. Some IDX listings have been excluded from this website. Properties displayed may be listed or sold by various participants in the MLS. IDX information is provided exclusively for personal, non-commercial use, and may not be used for any purpose other than to identify prospective properties consumers may be interested in purchasing. Information is deemed reliable but not guaranteed. Use of the MLS GRID Data may be subject to an end user license agreement prescribed by the Member Participant’s applicable MLS if any and as amended from time to time. The Digital Millennium Copyright Act of 1998, 17 U.S.C. § 512 (the “DMCA”) provides recourse for copyright owners who believe that material appearing on the Internet infringes their rights under U.S. copyright law. If you believe in good faith that any content or material made available in connection with our website or services infringes your copyright, you (or your agent) may send us a notice requesting that the content or material be removed, or access to it blocked. Notices must be sent in writing by email to DMCAnotice@MLSGrid.com. The DMCA requires that your notice of alleged copyright infringement include the following information: (1) description of the copyrighted work that is the subject of claimed infringement; (2) description of the alleged infringing content and information sufficient to permit us to locate the content; (3) contact information for you, including your address, telephone number and email address; (4) a statement by you that you have a good faith belief that the content in the manner complained of is not authorized by the copyright owner, or its agent, or by the operation of any law; (5) a statement by you, signed under penalty of perjury, that the information in the notification is accurate and that you have the authority to enforce the copyrights that are claimed to be infringed; and (6) a physical or electronic signature of the copyright owner or a person authorized to act on the copyright owner’s behalf. Failure to include all of the above information may result in the delay of the processing of your complaint. Listing Information presented by local MLS brokerage: NewHomesMate LLC, DBA Jome (888) 545-5198
Read moreLast checked May 16, 3:10 pm
- Jome
- New homes search
- Florida
- Greater Orlando Area
- Lake County
- Clermont
- 169 Tranquil Mirror Lake Ct, Unit Lot 7, Clermont, FL 34711



























