






Book your tour. Save an average of $18,473. We'll handle the rest.
We collect exclusive builder offers, book your tours, and support you from start to housewarming.
- Confirmed tours
- Get matched & compare top deals
- Expert help, no pressure
- No added fees
Estimated value based on Jome data, T&C apply



- 3 bd
- 4 ba
- 4,792 sqft
3925 Washington Ave, Miami, FL 33133
Why tour with Jome?
- No pressure toursTour at your own pace with no sales pressure
- Expert guidanceGet insights from our home buying experts
- Exclusive accessSee homes and deals not available elsewhere
Jome is featured in
- Single-Family
- Quick move-in
- $226.42/sqft
- North facing
Home description
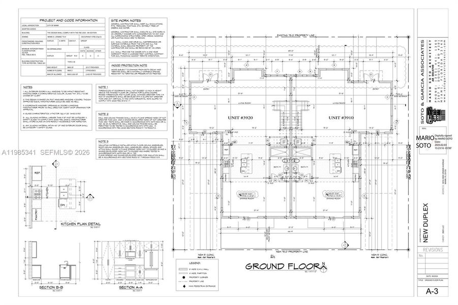
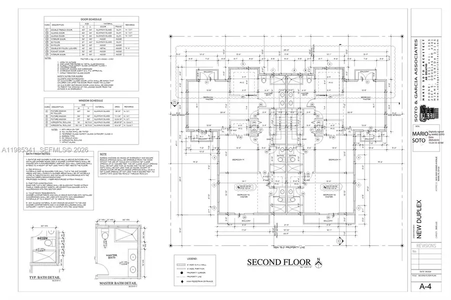
Prime development opportunity! This empty lot is perfectly situated in a highly desirable location with easy access to major arteries and just minutes from restaurants, pedestrian-friendly areas, supermarkets, shopping centers, marinas, and more. A full construction permit is already approved and on hand for a beautifully designed duplex, saving you approximately a year of processing time. Each unit offers 2,396 SF under A/C, thoughtfully laid out over two floors with 3 bedrooms and 4 full bathrooms. An outstanding opportunity for investors or developers looking to start building immediately in a rapidly growing area.
Florida Realty of Miami Corp, MLS A11985341
Information last verified by Jome: Today at 12:05 AM (April 1, 2026)
Book your tour. Save an average of $18,473. We'll handle the rest.
We collect exclusive builder offers, book your tours, and support you from start to housewarming.
- Confirmed tours
- Get matched & compare top deals
- Expert help, no pressure
- No added fees
Estimated value based on Jome data, T&C apply
Home details
- Property status:
- Move-in ready
- Neighborhood:
- South-West Coconut Grove
- Lot size (acres):
- 0.12
- Size:
- 4,792 sqft
- Stories:
- 2
- Beds:
- 3
- Baths:
- 4
- Garage spaces:
- 2
- Facing direction:
- North
Construction details
- Year Built:
- 2026
Home features & finishes
- Construction Materials:
- Concrete
- Cooling:
- Central Air
- Garage/Parking:
- Garage

Get a consultation with our New Homes Expert
- See how your home builds wealth
- Plan your home-buying roadmap
- Discover hidden gems
Utility information
- Heating:
- Electric Heating
Neighborhood
Home address
- Neighborhood:
- South-West Coconut Grove
- City:
- Miami
- County:
- Miami-Dade
- Zip Code:
- 33133
Schools in Dade County School District
GreatSchools’ Summary Rating calculation is based on 4 of the school’s themed ratings, including test scores, student/academic progress, college readiness, and equity. This information should only be used as a reference. Jome is not affiliated with GreatSchools and does not endorse or guarantee this information. Please reach out to schools directly to verify all information and enrollment eligibility. Data provided by GreatSchools.org © 2025
Places of interest
Getting around
10 nearby routes: 9 bus, 1 rail, 0 otherAir quality
Noise level
A Soundscore™ rating is a number between 50 (very loud) and 100 (very quiet) that tells you how loud a location is due to environmental noise.
Natural hazards risk
Provided by FEMA

Considering this home?
Our expert will guide your tour, in-person or virtual
Need more information?
Text or call (888) 545-5198
Financials
Estimated monthly payment
Let us help you find your dream home
How many bedrooms are you looking for?
Similar homes nearby
Recently added communities in this area
Nearby communities in Miami
New homes in nearby cities
More New Homes in Miami, FL
Florida Realty of Miami Corp, MLS A11985341
IDX information is provided exclusively for personal, non-commercial use, and may not be used for any purpose other than to identify prospective properties consumers may be interested in purchasing. Information is deemed reliable but not guaranteed.
Read moreLast checked Apr 1, 6:20 am
- Jome
- New homes search
- Florida
- Miami Metropolitan Area
- Miami-Dade County
- Miami
- 3925 Washington Ave, Miami, FL 33133


























