



Book your tour. Save an average of $18,473. We'll handle the rest.
We collect exclusive builder offers, book your tours, and support you from start to housewarming.
- Confirmed tours
- Get matched & compare top deals
- Expert help, no pressure
- No added fees
Estimated value based on Jome data, T&C apply
- 5 bd
- 3 ba
- 2,892 sqft
36741 Thornhedge Dr, Zephyrhills, FL 33541
Why tour with Jome?
- No pressure toursTour at your own pace with no sales pressure
- Expert guidanceGet insights from our home buying experts
- Exclusive accessSee homes and deals not available elsewhere
Jome is featured in
- Single-Family
- Quick move-in
- $169.43/sqft
- $221.12/quarterly HOA
Home description
Discover the Catalina in Two Rivers, an outstanding community designed by Casa Fresca Homes in the city of Zephyrhills. This newly constructed home uses high-quality materials and finishes to create a luxurious ambiance you'll love coming home to for years.
Located at 36741 Thornhedge Dr, Zephyrhills, FL 33541 in the prestigious Two Rivers, you'll find a collection of other new construction homes created with various layouts, along with a welcoming community of neighbors and a variety of amenities to enrich your lifestyle.
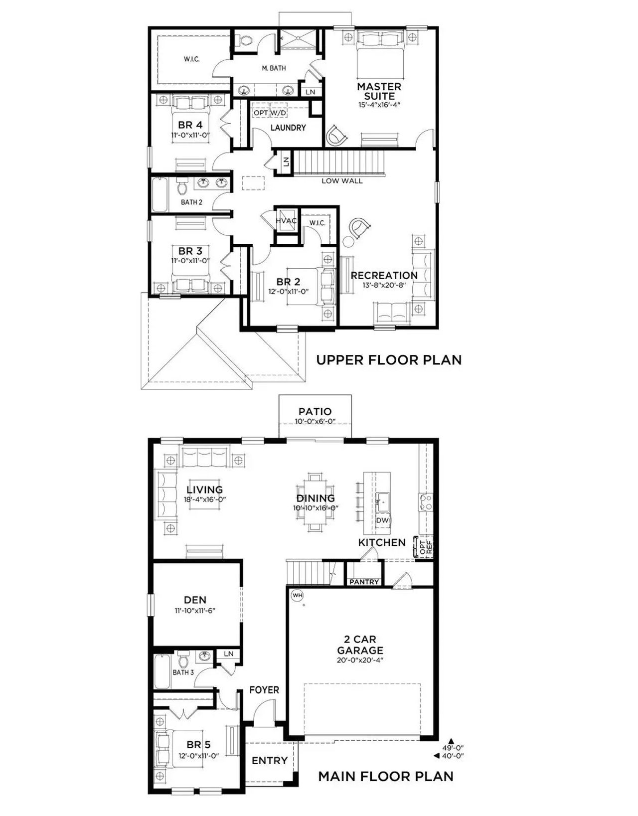
The Catalina is a beautiful 2-story home with 5 spacious bedrooms, and 3 modern bathrooms spread over 2,892 square feet. This home also includes a garage with 2 spaces for parking vehicles, extra storage, or hobby essentials.
You'll love the convenience of being close to fantastic shopping, top-notch dining options, entertainment, and opportunities for outdoor adventures. Plus, Two Rivers is zoned to the reputable Pasco County School District, providing easy access to the best schools in the area.
Does Catalina sound like your dream home? Work with Jome to make it a reality. Contact a New Construction Specialist to take the first step towards a lifestyle of convenience and luxury in this wonderfully located crafted home.
May also be listed on the Casa Fresca Homes website
Information last verified by Jome: Yesterday at 7:53 AM (March 19, 2026)
Book your tour. Save an average of $18,473. We'll handle the rest.
We collect exclusive builder offers, book your tours, and support you from start to housewarming.
- Confirmed tours
- Get matched & compare top deals
- Expert help, no pressure
- No added fees
Estimated value based on Jome data, T&C apply
Home details
- Property status:
- Move-in ready
- Size:
- 2,892 sqft
- Stories:
- 2
- Beds:
- 5
- Baths:
- 3
- Garage spaces:
- 2
Construction details
- Builder Name:
- Casa Fresca Homes
Home features & finishes
- Garage/Parking:
- GarageAttached Garage
- Interior Features:
- Walk-In ClosetFoyerPantry
- Kitchen:
- Kitchen Island
- Laundry facilities:
- Utility/Laundry Room
- Property amenities:
- PatioPorch
- Rooms:
- KitchenDen RoomRecreational RoomDining RoomFamily RoomOpen Concept FloorplanPrimary Bedroom Upstairs

Get a consultation with our New Homes Expert
- See how your home builds wealth
- Plan your home-buying roadmap
- Discover hidden gems

Community details
Two Rivers at Two Rivers
by Casa Fresca Homes, Zephyrhills, FL
- 22 homes
- 9 plans
- 1,615 - 3,184 sqft
View Two Rivers details
More homes in Two Rivers
- Home at address 36704 Sagemoor Dr, Zephyrhills, FL 33541

Indigo
Savings$429,990
- 5 bd
- 3 ba
- 2,470 sqft
36704 Sagemoor Dr, Zephyrhills, FL 33541
- Home at address 36696 Sagemoor Dr, Zephyrhills, FL 33541

Indigo
Savings$434,990
- 5 bd
- 3 ba
- 2,470 sqft
36696 Sagemoor Dr, Zephyrhills, FL 33541
- Home at address 36671 Sagemoor Dr, Zephyrhills, FL 33541

Indigo
Savings$434,990
- 5 bd
- 3 ba
- 2,470 sqft
36671 Sagemoor Dr, Zephyrhills, FL 33541
- Home at address 36680 Sagemoor Dr, Zephyrhills, FL 33541

Indigo
Savings$444,990
- 5 bd
- 3 ba
- 2,470 sqft
36680 Sagemoor Dr, Zephyrhills, FL 33541
- Home at address 36659 Sagemoor Dr, Zephyrhills, FL 33541

Valencia
Savings$479,940
- 5 bd
- 3 ba
- 3,011 sqft
36659 Sagemoor Dr, Zephyrhills, FL 33541
- Home at address 36728 Sagemoor Dr, Zephyrhills, FL 33541

Catalina
Savings$479,990
- 5 bd
- 3 ba
- 2,888 sqft
36728 Sagemoor Dr, Zephyrhills, FL 33541
Floor plans in Two Rivers
About the builder - Casa Fresca Homes
Neighborhood
Home address
- City:
- Zephyrhills
- County:
- Pasco
- Zip Code:
- 33541
Schools in Pasco County School District
- Grades PK-PKPrivateeinstein learning school2.8 mi35203 state road 54na
- Grades PK-08Privateheritage academy2.8 mi35636 hwy 54 wna
- Grades KG-05Privatethe broach school3.3 mi38924 c avena
GreatSchools’ Summary Rating calculation is based on 4 of the school’s themed ratings, including test scores, student/academic progress, college readiness, and equity. This information should only be used as a reference. Jome is not affiliated with GreatSchools and does not endorse or guarantee this information. Please reach out to schools directly to verify all information and enrollment eligibility. Data provided by GreatSchools.org © 2025
Places of interest
Getting around
Air quality
Noise level
A Soundscore™ rating is a number between 50 (very loud) and 100 (very quiet) that tells you how loud a location is due to environmental noise.

Considering this home?
Our expert will guide your tour, in-person or virtual
Need more information?
Text or call (888) 545-5198
Financials
Estimated monthly payment
Let us help you find your dream home
How many bedrooms are you looking for?
Similar homes nearby
Recently added communities in this area
Nearby communities in Zephyrhills
New homes in nearby cities
More New Homes in Zephyrhills, FL
- Jome
- New homes search
- Florida
- Tampa Bay Area
- Pasco County
- Zephyrhills
- Two Rivers
- 36741 Thornhedge Dr, Zephyrhills, FL 33541





























