



Book your tour. Save an average of $18,473. We'll handle the rest.
We collect exclusive builder offers, book your tours, and support you from start to housewarming.
- Confirmed tours
- Get matched & compare top deals
- Expert help, no pressure
- No added fees
Estimated value based on Jome data, T&C apply
Why tour with Jome?
- No pressure toursTour at your own pace with no sales pressure
- Expert guidanceGet insights from our home buying experts
- Exclusive accessSee homes and deals not available elsewhere
Jome is featured in
- Single-Family
- $167.62/sqft
- Southeast facing
- 0.23-acre lot
Home description
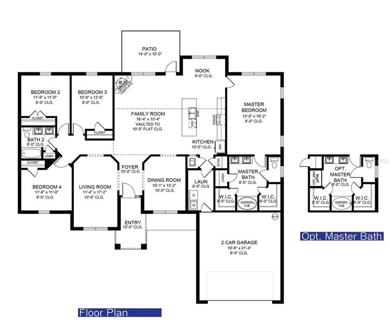
Welcome to this magnificent under construction home- 3 bedrooms and a den/study/4th bedroom, two baths, a formal living room and dining room and large, inside laundry. Nestled in a vibrant North Port area, this home provides ample room for you, your family, and your guests to enjoy. Vaulted ceilings give this house spaciousness and an airy feel, creating a sense of grandeur in the living area, and allowing the natural light to make the space feel even larger and more inviting. Ceramic plank tile flooring throughout except in the bedrooms, designer LED recessed lighting, 36' upper cabinets with crown molding, quartz countertops in the kitchen and baths, stainless steel appliances, double pane insulated tilt-in sash windows for energy efficiency. This property also comes with a 10-year structural warranty for peace of mind. Only $1000 down to secure this home today!
ADAMS HOME REALTY INC, MLS A4683638
May also be listed on the Adams Homes website
Information last verified by Jome: Yesterday at 9:38 AM (May 16, 2026)
Book your tour. Save an average of $18,473. We'll handle the rest.
We collect exclusive builder offers, book your tours, and support you from start to housewarming.
- Confirmed tours
- Get matched & compare top deals
- Expert help, no pressure
- No added fees
Estimated value based on Jome data, T&C apply
Home details
- Property status:
- Pending/Under contract
- Lot size (acres):
- 0.23
- Size:
- 2,240 sqft
- Stories:
- 1
- Beds:
- 4
- Baths:
- 2
- Garage spaces:
- 2
- Facing direction:
- Southeast
Construction details
- Builder Name:
- Adams Homes
- Completion Date:
- September, 2026
- Year Built:
- 2026
- Roof:
- Shingle Roofing
Home features & finishes
- Construction Materials:
- StuccoBlock
- Cooling:
- Central Air
- Flooring:
- Ceramic FlooringCarpet FlooringTile Flooring
- Foundation Details:
- Slab
- Garage/Parking:
- GarageAttached Garage
- Interior Features:
- Ceiling-HighCeiling-VaultedWalk-In ClosetShuttersFoyerPantrySliding Doors
- Kitchen:
- DishwasherMicrowave OvenWater FilterKitchen Range
- Laundry facilities:
- Utility/Laundry Room
- Pets:
- Pets AllowedCat(s) Only AllowedDog(s) Only Allowed
- Property amenities:
- Patio
- Rooms:
- Primary Bedroom On MainKitchenNookDining RoomFamily RoomLiving RoomOpen Concept FloorplanPrimary Bedroom Downstairs

Get a consultation with our New Homes Expert
- See how your home builds wealth
- Plan your home-buying roadmap
- Discover hidden gems
Utility information
- Heating:
- Electric Heating, Water Heater, Central Heating
- Utilities:
- Electricity Available, Cable Available, Water Available

Community details
North Port
by Adams Homes, North Port, FL
- 32 homes
- 10 plans
- 1,368 - 3,000 sqft
View North Port details
More homes in North Port
- Home at address 4157 N Chamberlain Blvd, North Port, FL 34286

2169
$366,300
- 4 bd
- 2 ba
- 2,169 sqft
4157 N Chamberlain Blvd, North Port, FL 34286
- Home at address 5082 Makena St, North Port, FL 34286

2240
$373,900
- 4 bd
- 2 ba
- 2,240 sqft
5082 Makena St, North Port, FL 34286
- Home at address 5365 Ponce De Leon Blvd, North Port, FL 34291

2169
$376,300
- 4 bd
- 2 ba
- 2,169 sqft
5365 Ponce De Leon Blvd, North Port, FL 34291
- Home at address 3263 Vickers Ln, North Port, FL 34286

2169
$378,100
- 4 bd
- 2 ba
- 2,169 sqft
3263 Vickers Ln, North Port, FL 34286
- Home at address 5178 Abdella Ln, North Port, FL 34291

2169
$378,900
- 4 bd
- 2 ba
- 2,169 sqft
5178 Abdella Ln, North Port, FL 34291
- Home at address 2823 Humbert Ave, North Port, FL 34288

2169
$379,300
- 4 bd
- 2 ba
- 2,169 sqft
2823 Humbert Ave, North Port, FL 34288
Floor plans in North Port
About the builder - Adams Homes

- 159communities on Jome
- 1,168homes on Jome
Neighborhood
Home address
- City:
- North Port
- County:
- Sarasota
- Zip Code:
- 34286
Schools in Sarasota County School District
GreatSchools’ Summary Rating calculation is based on 4 of the school’s themed ratings, including test scores, student/academic progress, college readiness, and equity. This information should only be used as a reference. Jome is not affiliated with GreatSchools and does not endorse or guarantee this information. Please reach out to schools directly to verify all information and enrollment eligibility. Data provided by GreatSchools.org © 2025
Places of interest
Getting around
Air quality
Noise level
A Soundscore™ rating is a number between 50 (very loud) and 100 (very quiet) that tells you how loud a location is due to environmental noise.

Considering this home?
Our expert will guide your tour, in-person or virtual
Need more information?
Text or call (888) 545-5198
Financials
Estimated monthly payment
Let us help you find your dream home
How many bedrooms are you looking for?
Similar homes nearby
Recently added communities in this area
Nearby communities in North Port
New homes in nearby cities
More New Homes in North Port, FL
ADAMS HOME REALTY INC, MLS A4683638
Based on information submitted to the MLS GRID as of 10/21/2024 2:31 PM CDT. All data is obtained from various sources and may not have been verified by broker or MLS GRID. Supplied Open House Information is subject to change without notice. All information should be independently reviewed and verified for accuracy. Properties may or may not be listed by the office/agent presenting the information. Some IDX listings have been excluded from this website. Properties displayed may be listed or sold by various participants in the MLS. IDX information is provided exclusively for personal, non-commercial use, and may not be used for any purpose other than to identify prospective properties consumers may be interested in purchasing. Information is deemed reliable but not guaranteed. Use of the MLS GRID Data may be subject to an end user license agreement prescribed by the Member Participant’s applicable MLS if any and as amended from time to time. The Digital Millennium Copyright Act of 1998, 17 U.S.C. § 512 (the “DMCA”) provides recourse for copyright owners who believe that material appearing on the Internet infringes their rights under U.S. copyright law. If you believe in good faith that any content or material made available in connection with our website or services infringes your copyright, you (or your agent) may send us a notice requesting that the content or material be removed, or access to it blocked. Notices must be sent in writing by email to DMCAnotice@MLSGrid.com. The DMCA requires that your notice of alleged copyright infringement include the following information: (1) description of the copyrighted work that is the subject of claimed infringement; (2) description of the alleged infringing content and information sufficient to permit us to locate the content; (3) contact information for you, including your address, telephone number and email address; (4) a statement by you that you have a good faith belief that the content in the manner complained of is not authorized by the copyright owner, or its agent, or by the operation of any law; (5) a statement by you, signed under penalty of perjury, that the information in the notification is accurate and that you have the authority to enforce the copyrights that are claimed to be infringed; and (6) a physical or electronic signature of the copyright owner or a person authorized to act on the copyright owner’s behalf. Failure to include all of the above information may result in the delay of the processing of your complaint. Listing Information presented by local MLS brokerage: NewHomesMate LLC, DBA Jome (888) 545-5198
Read moreLast checked May 17, 3:10 am
- Jome
- New homes search
- Florida
- Sarasota County
- North Port
- North Port
- 5103 Raven St, North Port, FL 34286

































