








Book your tour. Save an average of $18,473. We'll handle the rest.
We collect exclusive builder offers, book your tours, and support you from start to housewarming.
- Confirmed tours
- Get matched & compare top deals
- Expert help, no pressure
- No added fees
Estimated value based on Jome data, T&C apply









- 6 bd
- 5 ba
- 5,637 sqft
6010 S Elkins Ave, Tampa, FL 33611
Why tour with Jome?
- No pressure toursTour at your own pace with no sales pressure
- Expert guidanceGet insights from our home buying experts
- Exclusive accessSee homes and deals not available elsewhere
Jome is featured in
- Single-Family
- Ready by May 2026
- $514.46/sqft
- West facing
Home description
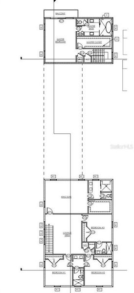
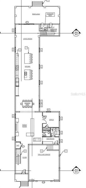
Scheduled for completion in May 2026. Introducing a rare opportunity to own a true architectural statement in the heart of Ballast Point. This custom-built modern luxury residence seamlessly blends elevated construction, timeless design, and exceptional craftsmanship — all built to current FEMA elevation standards for lasting peace of mind. This concrete block construction home makes an unforgettable first impression with 10-foot ceilings, 8-foot solid core doors, intricate crown molding, and dramatic coffered ceiling details that create architectural depth and elegance throughout. Impact-rated hurricane windows provide security, efficiency, and quiet comfort while allowing natural light to flood every space. Designed for both grand entertaining and refined daily living, the showpiece kitchen features dual oversized islands, custom cabinetry, premium finishes, and an effortless flow into the expansive living and dining areas. A grand pivot front door, striking floating staircase, and a glass wine display create a stunning focal point upon entry — a true conversation piece that defines the home’s modern sophistication. The thoughtfully designed first floor includes a private office, mudroom, spacious laundry room, elegant powder bath, and an oversized two-car garage featuring a rare 10-foot-high opening — ideal for larger vehicles and additional storage. Upstairs, a split-bedroom layout offers privacy and flexibility. One wing includes four spacious bedrooms, three beautifully appointed bathrooms, and a versatile loft area perfect for a media space or lounging. The opposite wing is dedicated entirely to the primary suite — a secluded retreat complete with a private balcony, expansive walk-in closet, in-suite washer and dryer, and a spa-caliber bath featuring a freestanding soaking tub within a walk-in shower and dual rainfall shower heads. The covered rear lanai is designed for year-round enjoyment and includes a convenient half bath and additional storage, making it ideal for a future pool or outdoor entertaining. Located in one of South Tampa’s most desirable neighborhoods, this Ballast Point masterpiece offers luxury, elevation, and modern resilience — all just moments from waterfront parks, dining, and downtown Tampa.
SPIEGEL LUXURY GROUP, MLS TB8477948
Information last verified by Jome: Yesterday at 9:41 AM (April 17, 2026)
Book your tour. Save an average of $18,473. We'll handle the rest.
We collect exclusive builder offers, book your tours, and support you from start to housewarming.
- Confirmed tours
- Get matched & compare top deals
- Expert help, no pressure
- No added fees
Estimated value based on Jome data, T&C apply
Home details
- Property status:
- Under construction
- Neighborhood:
- Ballast Point
- Lot size (acres):
- 0.28
- Size:
- 5,637 sqft
- Stories:
- 2
- Beds:
- 6
- Baths:
- 5
- Half baths:
- 2
- Garage spaces:
- 2
- Facing direction:
- West
Construction details
- Completion Date:
- May, 2026
- Year Built:
- 2026
- Roof:
- Metal Roofing
Home features & finishes
- Construction Materials:
- Block
- Cooling:
- Central Air
- Flooring:
- Vinyl FlooringTile Flooring
- Foundation Details:
- Slab
- Garage/Parking:
- GarageAttached Garage
- Home amenities:
- Green Construction
- Interior Features:
- Walk-In ClosetCrown MoldingSliding Doors
- Kitchen:
- DishwasherRefrigeratorKitchen Range
- Laundry facilities:
- Utility/Laundry Room
- Property amenities:
- BalconyPorch
- Rooms:
- KitchenOpen Concept Floorplan

Get a consultation with our New Homes Expert
- See how your home builds wealth
- Plan your home-buying roadmap
- Discover hidden gems
Utility information
- Heating:
- Central Heating
- Sewer:
- Public Sewer
- Utilities:
- Electricity Available, Water Available
- Water source:
- Public
Neighborhood
Home address
- Neighborhood:
- Ballast Point
- City:
- Tampa
- County:
- Hillsborough
- Zip Code:
- 33611
Schools in Hillsborough County School District
GreatSchools’ Summary Rating calculation is based on 4 of the school’s themed ratings, including test scores, student/academic progress, college readiness, and equity. This information should only be used as a reference. Jome is not affiliated with GreatSchools and does not endorse or guarantee this information. Please reach out to schools directly to verify all information and enrollment eligibility. Data provided by GreatSchools.org © 2025
Places of interest
Getting around
Air quality
Noise level
A Soundscore™ rating is a number between 50 (very loud) and 100 (very quiet) that tells you how loud a location is due to environmental noise.
Natural hazards risk
Provided by FEMA

Considering this home?
Our expert will guide your tour, in-person or virtual
Need more information?
Text or call (888) 545-5198
Financials
Estimated monthly payment
Let us help you find your dream home
How many bedrooms are you looking for?
Similar homes nearby
Recently added communities in this area
Nearby communities in Tampa
New homes in nearby cities
More New Homes in Tampa, FL
SPIEGEL LUXURY GROUP, MLS TB8477948
Based on information submitted to the MLS GRID as of 10/21/2024 2:31 PM CDT. All data is obtained from various sources and may not have been verified by broker or MLS GRID. Supplied Open House Information is subject to change without notice. All information should be independently reviewed and verified for accuracy. Properties may or may not be listed by the office/agent presenting the information. Some IDX listings have been excluded from this website. Properties displayed may be listed or sold by various participants in the MLS. IDX information is provided exclusively for personal, non-commercial use, and may not be used for any purpose other than to identify prospective properties consumers may be interested in purchasing. Information is deemed reliable but not guaranteed. Use of the MLS GRID Data may be subject to an end user license agreement prescribed by the Member Participant’s applicable MLS if any and as amended from time to time. The Digital Millennium Copyright Act of 1998, 17 U.S.C. § 512 (the “DMCA”) provides recourse for copyright owners who believe that material appearing on the Internet infringes their rights under U.S. copyright law. If you believe in good faith that any content or material made available in connection with our website or services infringes your copyright, you (or your agent) may send us a notice requesting that the content or material be removed, or access to it blocked. Notices must be sent in writing by email to DMCAnotice@MLSGrid.com. The DMCA requires that your notice of alleged copyright infringement include the following information: (1) description of the copyrighted work that is the subject of claimed infringement; (2) description of the alleged infringing content and information sufficient to permit us to locate the content; (3) contact information for you, including your address, telephone number and email address; (4) a statement by you that you have a good faith belief that the content in the manner complained of is not authorized by the copyright owner, or its agent, or by the operation of any law; (5) a statement by you, signed under penalty of perjury, that the information in the notification is accurate and that you have the authority to enforce the copyrights that are claimed to be infringed; and (6) a physical or electronic signature of the copyright owner or a person authorized to act on the copyright owner’s behalf. Failure to include all of the above information may result in the delay of the processing of your complaint. Listing Information presented by local MLS brokerage: NewHomesMate LLC, DBA Jome (888) 545-5198
Read moreLast checked Apr 17, 9:10 pm
- Jome
- New homes search
- Florida
- Tampa Bay Area
- Hillsborough County
- Tampa
- 6010 S Elkins Ave, Tampa, FL 33611
























