














Book your tour. Save an average of $18,473. We'll handle the rest.
- Confirmed tours
- Get matched & compare top deals
- Expert help, no pressure
- No added fees
Estimated value based on Jome data, T&C apply















































- 3 bd
- 3 ba
- 3,036 sqft
3970 Southern Valley Lp, Brooksville, FL 34601
Why tour with Jome?
- No pressure toursTour at your own pace with no sales pressure
- Expert guidanceGet insights from our home buying experts
- Exclusive accessSee homes and deals not available elsewhere
Jome is featured in
- Single-Family
- Quick move-in
- $230.53/sqft
- $185/monthly HOA
Home description
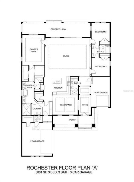
This beautiful semi-custom home by Spire Homes is set on a landscaped, 255' deep homesite with mature trees in the south-after community of Southern Hills Plantation. The exterior features a large, pavered front porch, pavered driveway and a massive rear lanai. Entering the home, you will find an open floor plan with a large kitchen and living room, two guest bedrooms and a Jack-and-Jill full bath. The large owner's suite includes two walk-in closets, double sinks, a large soaking tub and spacious separate shower. This phenomenal home features an impressive flex space that can serve as an office, workout room or a separate formal sitting are. The chef's kitchen features a five burner gas cooktop with vented hood, built-in convection oven and microwave, soft-close wood white shaker cabinets, quartz countertops, a large island with breakfast bar seating, subway tile backsplash, and under-cabinet lighting. The home has many upgrades, including 8-foot doors, luxury vinyl flooring in all common areas, 5 1/4" baseboards, quartz countertops, tray ceilings, a tankless gas water heater and many more. There are two separate garages, a large two-car garage and a one-car garage to house all of your cars, toys and storage. You will love the elevation changes ranging from 60 feet to almost 250 feet in Southern Hills. Golf Week ranks the private world-class 18-hole course among the top 100 residential courses in the United States. The community also features first class tennis courts and pickleball courts, practice facilities and a driving range! Additionally, there is a clubhouse, pool, restaurant and bar, gym, gated entry and much more!
TROPIC SHORES REALTY LLC, MLS W7882759
May also be listed on the Spire Homes website
Information last verified by Jome: Today at 9:59 AM (February 8, 2026)
Home highlights
Historic Florida park with river rapids, hiking, and camping under towering oaks near Tampa’s northeast suburbs.
Book your tour. Save an average of $18,473. We'll handle the rest.
We collect exclusive builder offers, book your tours, and support you from start to housewarming.
- Confirmed tours
- Get matched & compare top deals
- Expert help, no pressure
- No added fees
Estimated value based on Jome data, T&C apply
Home details
- Property status:
- Move-in ready
- Lot size (acres):
- 0.45
- Size:
- 3,036 sqft
- Stories:
- 1
- Beds:
- 3
- Baths:
- 3
- Garage spaces:
- 3
- Facing direction:
- East
Construction details
- Builder Name:
- Spire Homes
- Year Built:
- 2025
- Roof:
- Shingle Roofing
Home features & finishes
- Construction Materials:
- StuccoBlock
- Cooling:
- Central Air
- Flooring:
- Ceramic FlooringVinyl FlooringCarpet FlooringTile Flooring
- Foundation Details:
- Slab
- Garage/Parking:
- Door OpenerGarageAttached Garage
- Home amenities:
- Internet
- Interior Features:
- Ceiling-HighWalk-In ClosetSliding Doors
- Kitchen:
- DishwasherMicrowave OvenOvenDisposalBuilt-In OvenConvection OvenCooktop
- Laundry facilities:
- Utility/Laundry Room
- Pets:
- Cat(s) Only AllowedDog(s) Only Allowed
- Property amenities:
- SidewalkCabinetsPorch
- Rooms:
- Primary Bedroom On MainDen RoomOffice/StudyFamily RoomOpen Concept FloorplanPrimary Bedroom Downstairs

Get a consultation with our New Homes Expert
- See how your home builds wealth
- Plan your home-buying roadmap
- Discover hidden gems
Utility information
- Heating:
- Electric Heating, Thermostat, Water Heater, Central Heating, Tankless water heater
- Utilities:
- Electricity Available, Cable Available, Water Available
Community amenities
- Woods View
- Fitness Center/Exercise Area
- Club House
- Tennis Courts
- Gated Community
- Community Pool
- Security Guard/Safety Office
- Sidewalks Available
About the builder - Spire Homes
Neighborhood
Home address
- City:
- Brooksville
- County:
- Hernando
- Zip Code:
- 34601
Schools in Hernando County School District
- Grades KG-12Privatequeen of all saints academy2.5 mi20120 barnett rdna
- Grades 06-08Charterbrooksville engineering science and technology (b.e.s.t.) a3.1 mi835 school st4/10
- Grades 08-12Publichernando county jail3.5 mi16425 spring hill drna
- Grades KG-12Privatechristian life academy3.7 mi1244 w jefferson stna
GreatSchools’ Summary Rating calculation is based on 4 of the school’s themed ratings, including test scores, student/academic progress, college readiness, and equity. This information should only be used as a reference. Jome is not affiliated with GreatSchools and does not endorse or guarantee this information. Please reach out to schools directly to verify all information and enrollment eligibility. Data provided by GreatSchools.org © 2025
Places of interest
Getting around
Air quality
Natural hazards risk
Provided by FEMA

Considering this home?
Our expert will guide your tour, in-person or virtual
Need more information?
Text or call (888) 486-2818
Financials
Estimated monthly payment
Let us help you find your dream home
How many bedrooms are you looking for?
Similar homes nearby
Recently added communities in this area
Nearby communities in Brooksville
New homes in nearby cities
More New Homes in Brooksville, FL
TROPIC SHORES REALTY LLC, MLS W7882759
Based on information submitted to the MLS GRID as of 10/21/2024 2:31 PM CDT. All data is obtained from various sources and may not have been verified by broker or MLS GRID. Supplied Open House Information is subject to change without notice. All information should be independently reviewed and verified for accuracy. Properties may or may not be listed by the office/agent presenting the information. Some IDX listings have been excluded from this website. Properties displayed may be listed or sold by various participants in the MLS. IDX information is provided exclusively for personal, non-commercial use, and may not be used for any purpose other than to identify prospective properties consumers may be interested in purchasing. Information is deemed reliable but not guaranteed. Use of the MLS GRID Data may be subject to an end user license agreement prescribed by the Member Participant’s applicable MLS if any and as amended from time to time. The Digital Millennium Copyright Act of 1998, 17 U.S.C. § 512 (the “DMCA”) provides recourse for copyright owners who believe that material appearing on the Internet infringes their rights under U.S. copyright law. If you believe in good faith that any content or material made available in connection with our website or services infringes your copyright, you (or your agent) may send us a notice requesting that the content or material be removed, or access to it blocked. Notices must be sent in writing by email to DMCAnotice@MLSGrid.com. The DMCA requires that your notice of alleged copyright infringement include the following information: (1) description of the copyrighted work that is the subject of claimed infringement; (2) description of the alleged infringing content and information sufficient to permit us to locate the content; (3) contact information for you, including your address, telephone number and email address; (4) a statement by you that you have a good faith belief that the content in the manner complained of is not authorized by the copyright owner, or its agent, or by the operation of any law; (5) a statement by you, signed under penalty of perjury, that the information in the notification is accurate and that you have the authority to enforce the copyrights that are claimed to be infringed; and (6) a physical or electronic signature of the copyright owner or a person authorized to act on the copyright owner’s behalf. Failure to include all of the above information may result in the delay of the processing of your complaint. Listing Information presented by local MLS brokerage: NewHomesMate LLC, DBA Jome (888) 486-2818
Read moreLast checked Feb 8, 3:10 pm
- Jome
- New homes search
- Florida
- Tampa Bay Area
- Hernando County
- Brooksville
- 3970 Southern Valley Lp, Brooksville, FL 34601



























