



Book your tour. Save an average of $18,473. We'll handle the rest.
We collect exclusive builder offers, book your tours, and support you from start to housewarming.
- Confirmed tours
- Get matched & compare top deals
- Expert help, no pressure
- No added fees
Estimated value based on Jome data, T&C apply

Fort Lauderdale, FL 33312
Why tour with Jome?
- No pressure toursTour at your own pace with no sales pressure
- Expert guidanceGet insights from our home buying experts
- Exclusive accessSee homes and deals not available elsewhere
Jome is featured in
- Single-Family
- Quick move-in
- South facing
- 0.15-acre lot
Home description
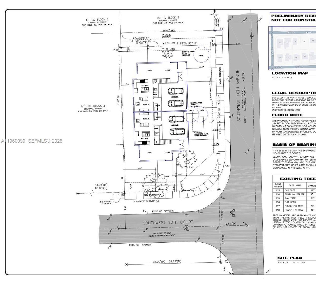
Prime corner vacant lot in Fort Lauderdale zoned RD-15, allowing duplex or multifamily development. Located in a desirable residential area within Flood Zone X. Excellent opportunity for developers, builders, or end users to build a luxury single-family residence or income-producing duplex. Survey and preliminary site plan available. Conceptual renderings are for illustration purposes only and do not constitute approved plans. Buyer to verify zoning, density, setbacks, and development requirements with the City of Fort Lauderdale.
Golani Realty Inc, MLS A11960099
Information last verified by Jome: Today at 12:05 AM (April 1, 2026)
Book your tour. Save an average of $18,473. We'll handle the rest.
We collect exclusive builder offers, book your tours, and support you from start to housewarming.
- Confirmed tours
- Get matched & compare top deals
- Expert help, no pressure
- No added fees
Estimated value based on Jome data, T&C apply
Home details
- Property status:
- Move-in ready
- Lot size (acres):
- 0.15
- Stories:
- 2
- Garage spaces:
- 2
- Facing direction:
- South
Construction details
- Year Built:
- 2026
Home features & finishes
- Garage/Parking:
- Garage

Get a consultation with our New Homes Expert
- See how your home builds wealth
- Plan your home-buying roadmap
- Discover hidden gems
Neighborhood
Home address
- City:
- Fort Lauderdale
- County:
- Broward
- Zip Code:
- 33312
Schools in Broward County School District
GreatSchools’ Summary Rating calculation is based on 4 of the school’s themed ratings, including test scores, student/academic progress, college readiness, and equity. This information should only be used as a reference. Jome is not affiliated with GreatSchools and does not endorse or guarantee this information. Please reach out to schools directly to verify all information and enrollment eligibility. Data provided by GreatSchools.org © 2025
Places of interest
Getting around
6 nearby routes: 5 bus, 1 rail, 0 otherNoise level
A Soundscore™ rating is a number between 50 (very loud) and 100 (very quiet) that tells you how loud a location is due to environmental noise.
Natural hazards risk
Provided by FEMA

Considering this home?
Our expert will guide your tour, in-person or virtual
Need more information?
Text or call (888) 545-5198
Financials
Estimated monthly payment
Let us help you find your dream home
How many bedrooms are you looking for?
Similar homes nearby
Recently added communities in this area
Nearby communities in Fort Lauderdale
New homes in nearby cities
More New Homes in Fort Lauderdale, FL
Golani Realty Inc, MLS A11960099
IDX information is provided exclusively for personal, non-commercial use, and may not be used for any purpose other than to identify prospective properties consumers may be interested in purchasing. Information is deemed reliable but not guaranteed.
Read moreLast checked Apr 1, 12:20 am
- Jome
- New homes search
- Florida
- Miami Metropolitan Area
- Broward County
- Fort Lauderdale
- Fort Lauderdale, FL 33312
























