














Book your tour. Save an average of $18,473. We'll handle the rest.
We collect exclusive builder offers, book your tours, and support you from start to housewarming.
- Confirmed tours
- Get matched & compare top deals
- Expert help, no pressure
- No added fees
Estimated value based on Jome data, T&C apply


































Why tour with Jome?
- No pressure toursTour at your own pace with no sales pressure
- Expert guidanceGet insights from our home buying experts
- Exclusive accessSee homes and deals not available elsewhere
Jome is featured in
- Single-Family
- Quick move-in
- $395.42/sqft
- $518.74/quarterly HOA
Home description
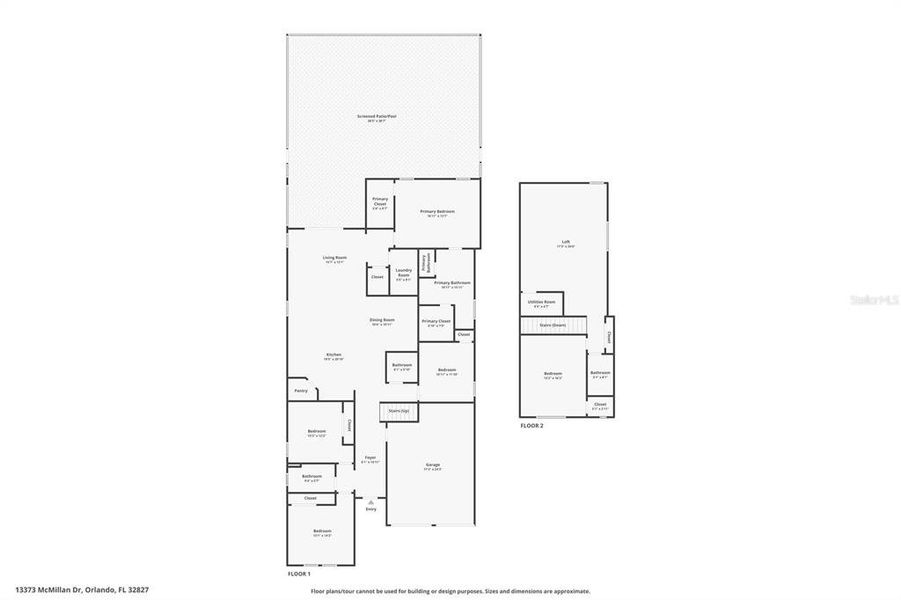
Welcome to this beautifully upgraded Dream Finders Fontana model in the heart of Laureate Park, offering five bedrooms and three and a half baths with a layout designed for both everyday living and entertaining.
From the coastal inspired elevation and expanded paver driveway to the inviting covered front porch, this home makes a strong first impression. Inside, the open concept design is filled with natural light and enhanced by wide plank luxury vinyl flooring, custom finishes, and a seamless flow throughout the main living areas. The chef kitchen features a large quartz island, custom pantry shelving, stainless steel appliances, pot filler, and designer tile backsplash, opening effortlessly to the dining and living spaces with built in surround sound.
The first floor primary suite is a private retreat with a spacious bedroom, custom his and hers walk in closets, and a spa inspired bath with dual vanities, soaking tub, and an oversized walk in shower featuring both a standard shower head and a rain shower head. A first floor bedroom currently used as a home office offers flexibility for guests or additional living needs.
Upstairs, a spacious loft provides a secondary living or media space, along with three additional bedrooms and two full baths, creating plenty of room for family and guests.
The fully screened pool area delivers true resort style outdoor living. Sealed travertine pavers surround a custom saltwater pool with raised wall waterfall accents and integrated lighting. The covered back patio features a custom wood ceiling, recessed lighting, and ceiling fan, while the outdoor kitchen is complete with Naturekast cabinetry, stainless sink, Moen faucet, refrigerator, mounted television, and surround sound. Large sliding glass doors open fully as pocket doors, creating a seamless indoor outdoor connection ideal for entertaining.
Located in Laureate Park, residents enjoy access to the Aquatic Center, resort style pools, LP Fit gym, playgrounds, dog parks, and miles of trails, all just minutes from Medical City, Nemours, the VA hospital, dining, shopping, and major roadways.
This home blends luxury, flexibility, and lifestyle in one of Lake Nona’s most desirable communities. Schedule your private tour today.
REAL BROKER, LLC, MLS O6379836
May also be listed on the Dream Finders Homes website
Information last verified by Jome: Yesterday at 10:03 AM (February 14, 2026)
Home highlights
Nature preserve in Kissimmee with boardwalks, paddling trails, and historic sites near family-friendly neighborhoods.
Book your tour. Save an average of $18,473. We'll handle the rest.
We collect exclusive builder offers, book your tours, and support you from start to housewarming.
- Confirmed tours
- Get matched & compare top deals
- Expert help, no pressure
- No added fees
Estimated value based on Jome data, T&C apply
Home details
- Property status:
- Move-in ready
- Neighborhood:
- City Of Orlando-Goaa
- Lot size (acres):
- 0.18
- Size:
- 3,098 sqft
- Stories:
- 2
- Beds:
- 5
- Baths:
- 3
- Half baths:
- 1
- Garage spaces:
- 2
- Facing direction:
- Southwest
Construction details
- Builder Name:
- Dream Finders Homes
- Year Built:
- 2024
- Roof:
- Roof Gutter, Shingle Roofing
Home features & finishes
- Construction Materials:
- StuccoBlockVinyl Siding
- Cooling:
- Central Air
- Flooring:
- Vinyl Flooring
- Foundation Details:
- Slab
- Garage/Parking:
- Door OpenerGarageAttached Garage
- Interior Features:
- Window TreatmentsWalk-In ClosetBlindsSliding DoorsLoft
- Kitchen:
- DishwasherMicrowave OvenOvenRefrigeratorDisposalBuilt-In OvenCooktop
- Laundry facilities:
- Utility/Laundry Room
- Lighting:
- Exterior LightingLighting
- Pets:
- Pets Allowed with Breed Restrictions
- Property amenities:
- SidewalkPoolDeckLandscapingCabinetsPatioPorch
- Rooms:
- KitchenDining RoomFamily RoomLiving RoomOpen Concept Floorplan

Get a consultation with our New Homes Expert
- See how your home builds wealth
- Plan your home-buying roadmap
- Discover hidden gems
Utility information
- Heating:
- Electric Heating, Heat Pump, Thermostat, Water Heater, Central Heating

Community details
Laureate Park at Lake Nona
by Dream Finders Homes, Orlando, FL
- 11 homes
- 8 plans
- 1,976 - 3,811 sqft
View Laureate Park details
Community amenities
- Dog Park
- Playground
- Fitness Center/Exercise Area
- Community Pool
- Park Nearby
- Sidewalks Available
More homes in Laureate Park
- Home at address 10406 Pearson Ave, Orlando, FL 32827

Stanfield
$929,990
- 5 bd
- 3 ba
- 3,150 sqft
10406 Pearson Ave, Orlando, FL 32827
- Home at address 10109 Gobat Aly, Orlando, FL 32827

Home
$931,978
- 5 bd
- 3 ba
- 3,150 sqft
10109 Gobat Aly, Orlando, FL 32827
- Home at address 10037 Ballast Dr, Orlando, FL 32827

Stanfield
$939,989
- 5 bd
- 3 ba
- 3,150 sqft
10037 Ballast Dr, Orlando, FL 32827
- Home at address 10272 Fiddley Aly, Orlando, FL 32827

Stanfield
$989,990
- 6 bd
- 4 ba
- 3,775 sqft
10272 Fiddley Aly, Orlando, FL 32827
- Home at address 10162 Peebles St, Orlando, FL 32827

Home
$1,295,000
- 5 bd
- 4.5 ba
- 3,811 sqft
10162 Peebles St, Orlando, FL 32827
Floor plans in Laureate Park
About the builder - Dream Finders Homes

- 292communities on Jome
- 1,611homes on Jome
Neighborhood
Home address
- Neighborhood:
- City Of Orlando-Goaa
- City:
- Orlando
Schools in Orange County School District
GreatSchools’ Summary Rating calculation is based on 4 of the school’s themed ratings, including test scores, student/academic progress, college readiness, and equity. This information should only be used as a reference. Jome is not affiliated with GreatSchools and does not endorse or guarantee this information. Please reach out to schools directly to verify all information and enrollment eligibility. Data provided by GreatSchools.org © 2025
Places of interest
Getting around
1 nearby routes: 1 bus, 0 rail, 0 otherAir quality
Noise level
A Soundscore™ rating is a number between 50 (very loud) and 100 (very quiet) that tells you how loud a location is due to environmental noise.

Considering this home?
Our expert will guide your tour, in-person or virtual
Need more information?
Text or call (888) 486-2818
Financials
Estimated monthly payment
Let us help you find your dream home
How many bedrooms are you looking for?
Similar homes nearby
Recently added communities in this area
Nearby communities in Orlando
New homes in nearby cities
More New Homes in Orlando, FL
REAL BROKER, LLC, MLS O6379836
Based on information submitted to the MLS GRID as of 10/21/2024 2:31 PM CDT. All data is obtained from various sources and may not have been verified by broker or MLS GRID. Supplied Open House Information is subject to change without notice. All information should be independently reviewed and verified for accuracy. Properties may or may not be listed by the office/agent presenting the information. Some IDX listings have been excluded from this website. Properties displayed may be listed or sold by various participants in the MLS. IDX information is provided exclusively for personal, non-commercial use, and may not be used for any purpose other than to identify prospective properties consumers may be interested in purchasing. Information is deemed reliable but not guaranteed. Use of the MLS GRID Data may be subject to an end user license agreement prescribed by the Member Participant’s applicable MLS if any and as amended from time to time. The Digital Millennium Copyright Act of 1998, 17 U.S.C. § 512 (the “DMCA”) provides recourse for copyright owners who believe that material appearing on the Internet infringes their rights under U.S. copyright law. If you believe in good faith that any content or material made available in connection with our website or services infringes your copyright, you (or your agent) may send us a notice requesting that the content or material be removed, or access to it blocked. Notices must be sent in writing by email to DMCAnotice@MLSGrid.com. The DMCA requires that your notice of alleged copyright infringement include the following information: (1) description of the copyrighted work that is the subject of claimed infringement; (2) description of the alleged infringing content and information sufficient to permit us to locate the content; (3) contact information for you, including your address, telephone number and email address; (4) a statement by you that you have a good faith belief that the content in the manner complained of is not authorized by the copyright owner, or its agent, or by the operation of any law; (5) a statement by you, signed under penalty of perjury, that the information in the notification is accurate and that you have the authority to enforce the copyrights that are claimed to be infringed; and (6) a physical or electronic signature of the copyright owner or a person authorized to act on the copyright owner’s behalf. Failure to include all of the above information may result in the delay of the processing of your complaint. Listing Information presented by local MLS brokerage: NewHomesMate LLC, DBA Jome (888) 486-2818
Read moreLast checked Feb 14, 9:10 pm
- Jome
- New homes search
- Florida
- Greater Orlando Area
- Orange County
- Orlando
- Laureate Park
- 13373 Mcmillan Dr, Orlando, FL 32827



























