














Book your tour. Save an average of $18,473. We'll handle the rest.
- Confirmed tours
- Get matched & compare top deals
- Expert help, no pressure
- No added fees
Estimated value based on Jome data, T&C apply

































- 5 bd
- 5 ba
- 4,231 sqft
2089 Arlington St, Sarasota, FL 34239
Why tour with Jome?
- No pressure toursTour at your own pace with no sales pressure
- Expert guidanceGet insights from our home buying experts
- Exclusive accessSee homes and deals not available elsewhere
Jome is featured in
- Single-Family
- Quick move-in
- $750.41/sqft
- East facing
Home description
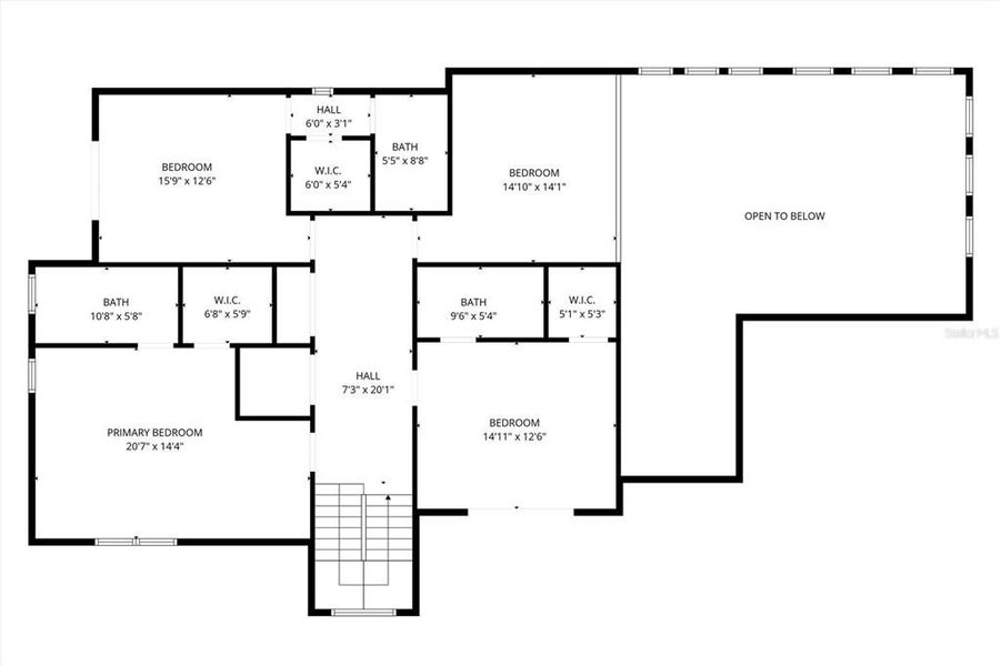
2089 Arlington Street, where architecture meets light, space, and coastal elegance, this newly constructed contemporary residence offers 4,231 square feet of living space and 5,284 total square feet, thoughtfully designed with architectural precision and warm minimalism. Completed in 2026, this striking two-story home sits on a rare double corner lot and features 5 bedrooms and 6 bathrooms, delivering both scale and sophistication.
The open-concept interior is defined by dramatic 22-foot ceilings, expansive custom windows and doors, and an abundance of natural light throughout. The main level is anchored by a statement chef’s kitchen imported from Italy, showcasing custom cabinetry, luxury built-in appliances, a Sub-Zero refrigerator, premium hardware, and top-quality London Fog granite countertops. A concealed secondary kitchen provides additional functionality and discretion, ideal for entertaining and catered events.
The primary suite is conveniently located on the ground floor, offering a private retreat with serene views and a spa-inspired bath. Additional bedrooms are generously sized, each with access to a full bathroom. A custom glass wine room adds a refined architectural focal point, while a loft-style family/media lounge on the second level overlooks the main living area, enhancing the home’s open, airy feel.
Designed for seamless indoor–outdoor living, oversized sliding doors open to a private resort-style setting with a custom pool and spa, covered terrace, and enhanced landscaping. Architectural exterior lighting highlights the home’s clean lines and modern façade after sunset.
Quality and performance are paramount: both levels are constructed of solid concrete block, and three independent HVAC systems serve the ground floor, primary suite, and second floor for optimal comfort and efficiency. Additional features include a private elevator, and all custom-made windows, doors, and cabinetry throughout—evidence of meticulous attention to detail in every finish.
Ideally located for effortless travel and coastal lifestyle enjoyment, this home is approximately 12–15 minutes from Sarasota–Bradenton International Airport, about 1 hour 10 minutes from Tampa International Airport, 10–15 minutes to Lido Key, and about 15 minutes to Siesta Key, world-renowned for powder-white sand and Gulf sunsets.
Situated outside of a flood zone, this exceptional residence presents a rare opportunity to own a custom-built contemporary home where design, craftsmanship, location, and lifestyle converge.
COMPASS FLORIDA, LLC, MLS TB8471775
Information last verified by Jome: Today at 3:17 AM (February 4, 2026)
Home highlights
Book your tour. Save an average of $18,473. We'll handle the rest.
We collect exclusive builder offers, book your tours, and support you from start to housewarming.
- Confirmed tours
- Get matched & compare top deals
- Expert help, no pressure
- No added fees
Estimated value based on Jome data, T&C apply
Home details
- Property status:
- Move-in ready
- Neighborhood:
- Arlington Park
- Lot size (acres):
- 0.25
- Size:
- 4,231 sqft
- Stories:
- 2
- Beds:
- 5
- Baths:
- 5
- Half baths:
- 2
- Garage spaces:
- 2
- Facing direction:
- East
Construction details
- Year Built:
- 2025
- Roof:
- Concrete Roofing
Home features & finishes
- Construction Materials:
- Block
- Cooling:
- Central Air
- Flooring:
- Ceramic FlooringTile FlooringHardwood Flooring
- Foundation Details:
- Block
- Garage/Parking:
- GarageAttached Garage
- Interior Features:
- Ceiling-HighWalk-In ClosetSliding Doors
- Kitchen:
- DishwasherOvenRefrigeratorDisposalBuilt-In OvenConvection OvenCooktop
- Laundry facilities:
- Utility/Laundry Room
- Lighting:
- Exterior LightingStreet Lights
- Property amenities:
- SidewalkGardenBalconyPoolLandscapingElevatorPatioSmart Home SystemPorch
- Rooms:
- KitchenDining RoomLiving RoomOpen Concept Floorplan

Get a consultation with our New Homes Expert
- See how your home builds wealth
- Plan your home-buying roadmap
- Discover hidden gems
Utility information
- Heating:
- Zoned Heating, Water Heater, Central Heating
- Utilities:
- Electricity Available, Water Available
Community amenities
- Garden View
- Waterfront View
Neighborhood
Home address
- Neighborhood:
- Arlington Park
- City:
- Sarasota
Schools in Sarasota County School District
- Grades 09-12Privateelevation preparatory academy0.8 mi1077 s euclid avena
GreatSchools’ Summary Rating calculation is based on 4 of the school’s themed ratings, including test scores, student/academic progress, college readiness, and equity. This information should only be used as a reference. Jome is not affiliated with GreatSchools and does not endorse or guarantee this information. Please reach out to schools directly to verify all information and enrollment eligibility. Data provided by GreatSchools.org © 2025
Places of interest
Getting around
3 nearby routes: 3 bus, 0 rail, 0 otherAir quality
Natural hazards risk
Provided by FEMA

Considering this home?
Our expert will guide your tour, in-person or virtual
Need more information?
Text or call (888) 486-2818
Financials
Estimated monthly payment
Let us help you find your dream home
How many bedrooms are you looking for?
Similar homes nearby
Recently added communities in this area
Nearby communities in Sarasota
New homes in nearby cities
More New Homes in Sarasota, FL
COMPASS FLORIDA, LLC, MLS TB8471775
Based on information submitted to the MLS GRID as of 10/21/2024 2:31 PM CDT. All data is obtained from various sources and may not have been verified by broker or MLS GRID. Supplied Open House Information is subject to change without notice. All information should be independently reviewed and verified for accuracy. Properties may or may not be listed by the office/agent presenting the information. Some IDX listings have been excluded from this website. Properties displayed may be listed or sold by various participants in the MLS. IDX information is provided exclusively for personal, non-commercial use, and may not be used for any purpose other than to identify prospective properties consumers may be interested in purchasing. Information is deemed reliable but not guaranteed. Use of the MLS GRID Data may be subject to an end user license agreement prescribed by the Member Participant’s applicable MLS if any and as amended from time to time. The Digital Millennium Copyright Act of 1998, 17 U.S.C. § 512 (the “DMCA”) provides recourse for copyright owners who believe that material appearing on the Internet infringes their rights under U.S. copyright law. If you believe in good faith that any content or material made available in connection with our website or services infringes your copyright, you (or your agent) may send us a notice requesting that the content or material be removed, or access to it blocked. Notices must be sent in writing by email to DMCAnotice@MLSGrid.com. The DMCA requires that your notice of alleged copyright infringement include the following information: (1) description of the copyrighted work that is the subject of claimed infringement; (2) description of the alleged infringing content and information sufficient to permit us to locate the content; (3) contact information for you, including your address, telephone number and email address; (4) a statement by you that you have a good faith belief that the content in the manner complained of is not authorized by the copyright owner, or its agent, or by the operation of any law; (5) a statement by you, signed under penalty of perjury, that the information in the notification is accurate and that you have the authority to enforce the copyrights that are claimed to be infringed; and (6) a physical or electronic signature of the copyright owner or a person authorized to act on the copyright owner’s behalf. Failure to include all of the above information may result in the delay of the processing of your complaint. Listing Information presented by local MLS brokerage: NewHomesMate LLC, DBA Jome (888) 486-2818
Read moreLast checked Feb 4, 3:10 am
- Jome
- New homes search
- Florida
- Tampa Bay Area
- Sarasota County
- Sarasota
- 2089 Arlington St, Sarasota, FL 34239



























