













Book your tour. Save an average of $18,473. We'll handle the rest.
- Confirmed tours
- Get matched & compare top deals
- Expert help, no pressure
- No added fees
Estimated value based on Jome data, T&C apply
































































- 5 bd
- 5 ba
9362 Tulip Leaf Ct, Boca Raton, FL 33434
Why tour with Jome?
- No pressure toursTour at your own pace with no sales pressure
- Expert guidanceGet insights from our home buying experts
- Exclusive accessSee homes and deals not available elsewhere
Jome is featured in
- Single-Family
- Quick move-in
- $488/monthly HOA
- South facing
Home description
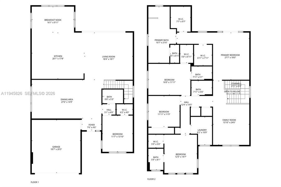
This is the house you have been looking for: end of the street, quite location, never lived in, lakefront, brand new. A rare opportunity to own a waterfront home in one of Boca Raton’s newest and most prestigious communities—offering an exceptional combination of modern design, privacy, scenic views, and full resort-style amenities. This newly built, contemporary two-story residence is located at 9362 Tulip Leaf Ct in the exclusive luxury community of Lotus Edge, Boca Raton. The home features a spacious 5-bedroom / 5-bathroom layout with 3,876 sq ft of living space, including a large modern kitchen with stylish cabinetry, granite countertops, stainless steel appliances, expansive walk-in closets, and sleek, contemporary bathrooms with dual vanities and glass-enclosed showers. Ideally situated in the central part of the community and set directly on the water, the property offers beautiful pond and resort-center views from the backyard, creating a serene and private outdoor setting. The impressive resort center includes multiple swimming pools, a jacuzzi, state-of-the-art fitness center, yoga lawn, lighted tennis courts, pickleball and padel courts, as well as an on-site bar and restaurant. Conveniently located near The Somerset Shoppes (Glades & Lyons) and Olympic Heights Community High School, offering both lifestyle and accessibility.
Cash Flow in Miami Realty, MLS A11945826
Information last verified by Jome: Today at 12:05 AM (January 20, 2026)
Home highlights
Book your tour. Save an average of $18,473. We'll handle the rest.
We collect exclusive builder offers, book your tours, and support you from start to housewarming.
- Confirmed tours
- Get matched & compare top deals
- Expert help, no pressure
- No added fees
Estimated value based on Jome data, T&C apply
Home details
- Property status:
- Move-in ready
- Lot size (acres):
- 0.31
- Stories:
- 2
- Beds:
- 5
- Baths:
- 5
- Garage spaces:
- 2
- Facing direction:
- South
Construction details
- Year Built:
- 2025
Home features & finishes
- Flooring:
- Ceramic FlooringCarpet FlooringTile Flooring
- Garage/Parking:
- Garage
- Interior Features:
- Walk-In ClosetLibrary
- Kitchen:
- DishwasherMicrowave OvenRefrigeratorDisposalKitchen Range
- Laundry facilities:
- DryerWasherUtility/Laundry Room
- Property amenities:
- DeckCabinetsPatio
- Rooms:
- Den RoomOffice/Study

Get a consultation with our New Homes Expert
- See how your home builds wealth
- Plan your home-buying roadmap
- Discover hidden gems
Utility information
- Heating:
- Electric Heating
Community amenities
- Club House
- Tennis Courts
- Community Pool
- Game Room/Area
- Lifestyle Director
- Waterfront View
- Fully Maintained Lawns
Neighborhood
Home address
- City:
- Boca Raton
- County:
- Palm Beach
- Zip Code:
- 33434
Schools in Palm Beach County School District
GreatSchools’ Summary Rating calculation is based on 4 of the school’s themed ratings, including test scores, student/academic progress, college readiness, and equity. This information should only be used as a reference. Jome is not affiliated with GreatSchools and does not endorse or guarantee this information. Please reach out to schools directly to verify all information and enrollment eligibility. Data provided by GreatSchools.org © 2025
Places of interest
Getting around
Air quality
Natural hazards risk
Provided by FEMA

Considering this home?
Our expert will guide your tour, in-person or virtual
Need more information?
Text or call (888) 486-2818
Financials
Estimated monthly payment
Let us help you find your dream home
How many bedrooms are you looking for?
Similar homes nearby
Recently added communities in this area
Nearby communities in Boca Raton
New homes in nearby cities
More New Homes in Boca Raton, FL
Cash Flow in Miami Realty, MLS A11945826
IDX information is provided exclusively for personal, non-commercial use, and may not be used for any purpose other than to identify prospective properties consumers may be interested in purchasing. Information is deemed reliable but not guaranteed.
Read moreLast checked Jan 20, 12:20 am
- Jome
- New homes search
- Florida
- Miami Metropolitan Area
- Palm Beach County
- Boca Raton
- 9362 Tulip Leaf Ct, Boca Raton, FL 33434


























