









Book your tour. Save an average of $18,473. We'll handle the rest.
We collect exclusive builder offers, book your tours, and support you from start to housewarming.
- Confirmed tours
- Get matched & compare top deals
- Expert help, no pressure
- No added fees
Estimated value based on Jome data, T&C apply

































- 4 bd
- 4.5 ba
- 3,850 sqft
7821 3Rd Ave S, St. Petersburg, FL 33707
Why tour with Jome?
- No pressure toursTour at your own pace with no sales pressure
- Expert guidanceGet insights from our home buying experts
- Exclusive accessSee homes and deals not available elsewhere
Jome is featured in
- Single-Family
- Ready by February 2027
- $935.06/sqft
- Southwest facing
Home description
Pre-Construction | To Be Built | Causeway Isles Waterfront
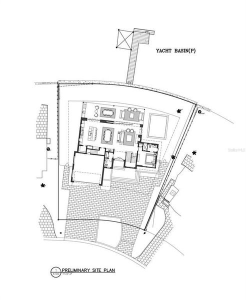
Build your dream home on one of St. Petersburg’s most desirable open-water homesites in the heart of Causeway Isles.
Located at 7821 3rd Ave S, this exceptional property offers over 100 feet of deep saltwater frontage with a protected yacht slip suitable for vessels up to 80 feet. Enjoy expansive water views, peaceful surroundings, and unforgettable sunset skies overlooking Sunset Park—perfectly capturing the essence of waterfront living.
This prime location places you just minutes from downtown St. Pete, the beaches of Treasure Island, and direct access to the Intracoastal Waterway, making it ideal for both boating and everyday convenience.
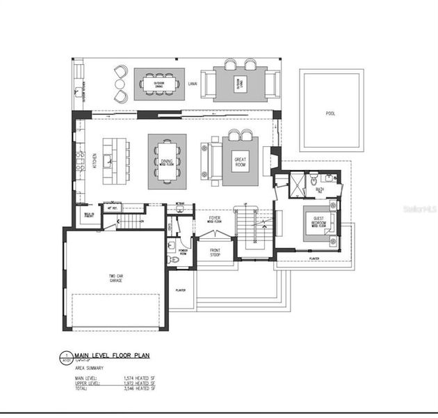
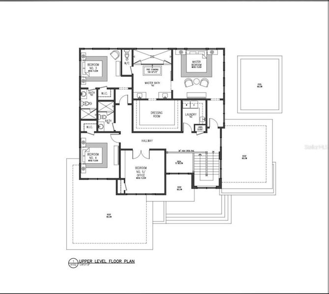
A new seawall installed in May 2025 adds long-term value and confidence as you plan your future residence. The lot comfortably supports a custom home in the 3,850+ square foot range, allowing for a thoughtfully designed layout that embraces indoor-outdoor living.
A proposed concept features a 4-bedroom, 4.5-bath design with a private pool, outdoor kitchen, spacious covered lanai, and optional elevator. The architecture leans toward a modern coastal style, incorporating clean lines, natural light, and expansive glass to highlight the water views.
Neo Homes offers a full turnkey design-build approach, including:
Custom architecture and interior design
High-end, curated finish selections
Hurricane-rated construction built to Florida standards
A streamlined, start-to-finish building experience
This is an opportunity to create a personalized waterfront residence tailored to your lifestyle in a well-established boating community.
If you’ve been searching for a premium waterfront homesite in St. Petersburg, this property is truly worth exploring.
Note: Photos shown are from a previously completed home by Neo Homes and are intended to represent the quality, craftsmanship, and level of finishes available for this homesite.
PHIL DESAUTELS P.A., MLS TB8491647
Information last verified by Jome: Today at 9:23 PM (April 2, 2026)
Book your tour. Save an average of $18,473. We'll handle the rest.
We collect exclusive builder offers, book your tours, and support you from start to housewarming.
- Confirmed tours
- Get matched & compare top deals
- Expert help, no pressure
- No added fees
Estimated value based on Jome data, T&C apply
Home details
- Property status:
- Under construction
- Neighborhood:
- Causeway Isles
- Lot size (acres):
- 0.19
- Size:
- 3,850 sqft
- Stories:
- 1
- Beds:
- 4
- Baths:
- 4
- Half baths:
- 1
- Garage spaces:
- 2
- Facing direction:
- Southwest
Construction details
- Completion Date:
- February, 2027
- Year Built:
- 2026
Home features & finishes
- Construction Materials:
- Wood FrameBlock
- Cooling:
- Ceiling Fan(s)Central Air
- Flooring:
- Hardwood Flooring
- Foundation Details:
- Slab
- Garage/Parking:
- GarageAttached Garage
- Interior Features:
- Ceiling-HighWalk-In Closet
- Kitchen:
- Wine RefrigeratorDishwasherOvenRefrigeratorDisposalConvection OvenCooktopKitchen Range
- Laundry facilities:
- Utility/Laundry Room
- Property amenities:
- BalconyPoolIrrigation
- Rooms:
- Primary Bedroom On MainFamily RoomOpen Concept FloorplanPrimary Bedroom DownstairsPrimary Bedroom Upstairs

Get a consultation with our New Homes Expert
- See how your home builds wealth
- Plan your home-buying roadmap
- Discover hidden gems
Utility information
- Heating:
- Water Heater, Central Heating, Tankless water heater
- Utilities:
- Electricity Available, Other
Neighborhood
Home address
- Neighborhood:
- Causeway Isles
- City:
- St. Petersburg
Schools in Pinellas County School District
GreatSchools’ Summary Rating calculation is based on 4 of the school’s themed ratings, including test scores, student/academic progress, college readiness, and equity. This information should only be used as a reference. Jome is not affiliated with GreatSchools and does not endorse or guarantee this information. Please reach out to schools directly to verify all information and enrollment eligibility. Data provided by GreatSchools.org © 2025
Places of interest
Getting around
2 nearby routes: 2 bus, 0 rail, 0 otherAir quality
Noise level
A Soundscore™ rating is a number between 50 (very loud) and 100 (very quiet) that tells you how loud a location is due to environmental noise.
Natural hazards risk
Provided by FEMA

Considering this home?
Our expert will guide your tour, in-person or virtual
Need more information?
Text or call (888) 545-5198
Financials
Estimated monthly payment
Let us help you find your dream home
How many bedrooms are you looking for?
Similar homes nearby
Recently added communities in this area
Nearby communities in St. Petersburg
New homes in nearby cities
More New Homes in St. Petersburg, FL
PHIL DESAUTELS P.A., MLS TB8491647
Based on information submitted to the MLS GRID as of 10/21/2024 2:31 PM CDT. All data is obtained from various sources and may not have been verified by broker or MLS GRID. Supplied Open House Information is subject to change without notice. All information should be independently reviewed and verified for accuracy. Properties may or may not be listed by the office/agent presenting the information. Some IDX listings have been excluded from this website. Properties displayed may be listed or sold by various participants in the MLS. IDX information is provided exclusively for personal, non-commercial use, and may not be used for any purpose other than to identify prospective properties consumers may be interested in purchasing. Information is deemed reliable but not guaranteed. Use of the MLS GRID Data may be subject to an end user license agreement prescribed by the Member Participant’s applicable MLS if any and as amended from time to time. The Digital Millennium Copyright Act of 1998, 17 U.S.C. § 512 (the “DMCA”) provides recourse for copyright owners who believe that material appearing on the Internet infringes their rights under U.S. copyright law. If you believe in good faith that any content or material made available in connection with our website or services infringes your copyright, you (or your agent) may send us a notice requesting that the content or material be removed, or access to it blocked. Notices must be sent in writing by email to DMCAnotice@MLSGrid.com. The DMCA requires that your notice of alleged copyright infringement include the following information: (1) description of the copyrighted work that is the subject of claimed infringement; (2) description of the alleged infringing content and information sufficient to permit us to locate the content; (3) contact information for you, including your address, telephone number and email address; (4) a statement by you that you have a good faith belief that the content in the manner complained of is not authorized by the copyright owner, or its agent, or by the operation of any law; (5) a statement by you, signed under penalty of perjury, that the information in the notification is accurate and that you have the authority to enforce the copyrights that are claimed to be infringed; and (6) a physical or electronic signature of the copyright owner or a person authorized to act on the copyright owner’s behalf. Failure to include all of the above information may result in the delay of the processing of your complaint. Listing Information presented by local MLS brokerage: NewHomesMate LLC, DBA Jome (888) 545-5198
Read moreLast checked Apr 2, 9:10 pm
- Jome
- New homes search
- Florida
- Tampa Bay Area
- Pinellas County
- St. Petersburg
- 7821 3Rd Ave S, St. Petersburg, FL 33707


























