







































- 3 bd
- 3 ba
- 1,900 sqft
57 Big Pine Dr, Palm Coast, FL 32164
- Duplex
- $156.9/sqft
- $32.75/monthly HOA
- 44 days on Jome
New Homes for Sale Near 57 Big Pine Dr, Palm Coast, FL 32164
About this Home
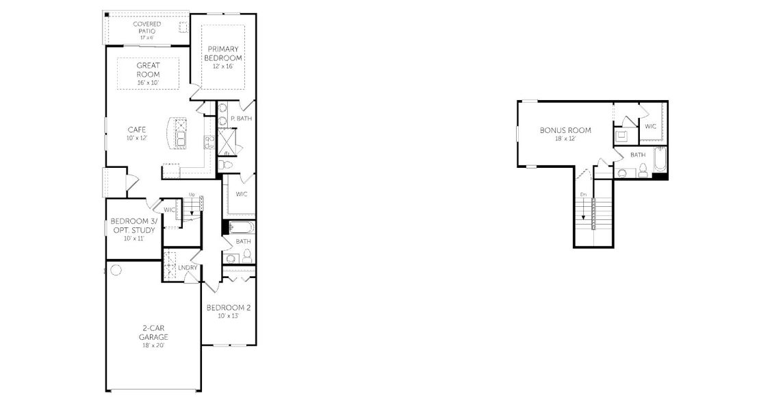
This stunning villa home offers a perfect blend of comfort and elegance with 3 spacious bedrooms and 3 full baths on the main level, ensuring privacy and convenience. The open-concept design leads into a roomy kitchen, with the option to upgrade to a gourmet kitchen for culinary enthusiasts. A versatile bonus room upstairs, complete with its own full bath, provides additional space for a home office, guest suite, or recreational area. Step outside to enjoy a covered patio, perfect for outdoor gatherings or quiet relaxation. With a 2-car garage, this home provides both style and practicality, meeting all your modern living needs.**Photos are representative of the Madison II floor plan.
May also be listed on the Dream Finders Homes website
Information last verified by Jome: Wednesday at 6:25 AM (January 14, 2026)
Home details
- Property status:
- Sold
- Collection:
- Seminole Trace - Villas
- Size:
- 1,900 sqft
- Stories:
- 2
- Beds:
- 3
- Baths:
- 3
- Garage spaces:
- 2

Floor plan details
Madison II - Villas
- 3 bd
- 3 ba
- 1,885 sqft
View Madison II - Villas details
Construction details
- Builder Name:
- Dream Finders Homes
Home features & finishes
- Garage/Parking:
- GarageAttached Garage
- Interior Features:
- Walk-In ClosetPantry
- Kitchen:
- Kitchen Island
- Laundry facilities:
- Utility/Laundry Room
- Property amenities:
- Patio
- Rooms:
- Bonus RoomGreat RoomPrimary Bedroom On MainKitchenBreakfast AreaOpen Concept FloorplanPrimary Bedroom Downstairs

Community details
Seminole Trace
by Dream Finders Homes, Palm Coast, FL
- 13 homes
- 17 plans
- 1,454 - 3,285 sqft
View Seminole Trace details
More homes in Seminole Trace
- Home at address 28 Big Pine Dr, Palm Coast, FL 32164

$270,988
Move-in ready- 3 bd
- 2 ba
- 1,454 sqft
28 Big Pine Dr, Palm Coast, FL 32164
- Home at address 10 Big Pine Dr, Palm Coast, FL 32164

$284,216
Move-in ready- 3 bd
- 2 ba
- 1,454 sqft
10 Big Pine Dr, Palm Coast, FL 32164
- Home at address 8 Big Pine Dr, Palm Coast, FL 32164

$289,118
Move-in ready- 3 bd
- 2 ba
- 1,454 sqft
8 Big Pine Dr, Palm Coast, FL 32164
- Home at address 30 Big Pine Dr, Palm Coast, FL 32164

$321,803
Under construction- 4 bd
- 3 ba
- 2,125 sqft
30 Big Pine Dr, Palm Coast, FL 32164
- Home at address 51 Windmill Palm Wy, Palm Coast, FL 32164

$349,974
Under construction- 3 bd
- 2 ba
- 1,716 sqft
51 Windmill Palm Wy, Palm Coast, FL 32164
- Home at address 49 Windmill Palm Wy, Palm Coast, FL 32164

$371,413
Under construction- 4 bd
- 2 ba
- 1,908 sqft
49 Windmill Palm Wy, Palm Coast, FL 32164
Floor plans in Seminole Trace
- View details for Madison II - Villas

Madison II - Villas
Seminole Trace - Villas
$252,990+- 3 bd
- 3 ba
- 1,885 sqft
About the builder - Dream Finders Homes

- 338communities on Jome
- 1,594homes on Jome
Neighborhood
Home address
- City:
- Palm Coast
- County:
- Flagler
- Zip Code:
- 32164
Schools in Flagler County School District
GreatSchools’ Summary Rating calculation is based on 4 of the school’s themed ratings, including test scores, student/academic progress, college readiness, and equity. This information should only be used as a reference. Jome is not affiliated with GreatSchools and does not endorse or guarantee this information. Please reach out to schools directly to verify all information and enrollment eligibility. Data provided by GreatSchools.org © 2025
Places of interest
Getting around
Air quality
Noise level
A Soundscore™ rating is a number between 50 (very loud) and 100 (very quiet) that tells you how loud a location is due to environmental noise.
Financials
Nearby communities in Palm Coast
Homes in Palm Coast by Dream Finders Homes
Recently added communities in this area
Other Builders in Palm Coast, FL
Nearby sold homes
New homes in nearby cities
More New Homes in Palm Coast, FL
- Jome
- New homes search
- Florida
- Jacksonville Metropolitan Area
- Flagler County
- Palm Coast
- Seminole Trace
- Seminole Trace - Villas
- 57 Big Pine Dr, Palm Coast, FL 32164





























































