









Book your tour. Save an average of $18,473. We'll handle the rest.
We collect exclusive builder offers, book your tours, and support you from start to housewarming.
- Confirmed tours
- Get matched & compare top deals
- Expert help, no pressure
- No added fees
Estimated value based on Jome data, T&C apply
- 5 bd
- 4.5 ba
- 3,122 sqft
2 W Steele St, Orlando, FL 32804
Why tour with Jome?
- No pressure toursTour at your own pace with no sales pressure
- Expert guidanceGet insights from our home buying experts
- Exclusive accessSee homes and deals not available elsewhere
Jome is featured in
- Single-Family
- Ready by December 2026
- $595.77/sqft
- Northeast facing
Home description
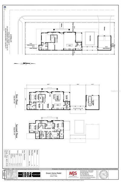
Presenting an exceptional and rare “to-be-built” offering at 2 West Steel Street—an opportunity to secure a brand-new luxury residence without the delays of the initial design phase. In collaboration with the acclaimed MJS Designers Group, a beautifully curated architectural plan has been developed that blends timeless elegance with modern livability.
Set on a prominent corner lot with exceptional curb appeal, the residence showcases a timeless European-inspired elevation highlighted by a combination of textured stone and arched windows that create a refined yet welcoming presence. A charming covered entry framed by natural wood detailing anchors the façade, while the detached two-car garage with matching architectural elements enhances both functionality and character.
Inside, the home offers 3,122 square feet of air-conditioned living space, thoughtfully designed with 5 bedrooms and 4.5 bathrooms. The layout features a first-floor owner’s suite for convenience and privacy, along with a dedicated office/flex space. Upstairs, the second level includes two private mini suites as well as two additional oversized bedrooms, providing ample space for family and guests.
The property is further complemented by a detached two-car garage and a resort-style pool and outdoor living area, thoughtfully planned to create a private backyard retreat perfect for both relaxing and entertaining.
Contact us today to discuss customizing your College Park dream home.
COMPASS FLORIDA LLC, MLS O6365126
Information last verified by Jome: Today at 9:11 AM (March 18, 2026)
Book your tour. Save an average of $18,473. We'll handle the rest.
We collect exclusive builder offers, book your tours, and support you from start to housewarming.
- Confirmed tours
- Get matched & compare top deals
- Expert help, no pressure
- No added fees
Estimated value based on Jome data, T&C apply
Home details
- Property status:
- Under construction
- Lot size (acres):
- 0.16
- Size:
- 3,122 sqft
- Stories:
- 2
- Beds:
- 5
- Baths:
- 4
- Half baths:
- 1
- Garage spaces:
- 2
- Facing direction:
- Northeast
Construction details
- Completion Date:
- December, 2026
- Year Built:
- 2026
- Roof:
- Shingle Roofing
Home features & finishes
- Construction Materials:
- StuccoWood Siding
- Cooling:
- Central Air
- Flooring:
- Tile FlooringHardwood Flooring
- Foundation Details:
- Slab
- Garage/Parking:
- Garage
- Interior Features:
- Crown Molding
- Kitchen:
- DishwasherMicrowave OvenDisposalKitchen Range
- Laundry facilities:
- DryerUtility/Laundry Room
- Lighting:
- Exterior LightingLightingStreet Lights
- Property amenities:
- SidewalkPoolElectric FireplaceIrrigationFireplace
- Rooms:
- Family Room

Get a consultation with our New Homes Expert
- See how your home builds wealth
- Plan your home-buying roadmap
- Discover hidden gems
Utility information
- Heating:
- Electric Heating
- Utilities:
- Underground Utilities
Neighborhood
Home address
Schools in Orange County School District
GreatSchools’ Summary Rating calculation is based on 4 of the school’s themed ratings, including test scores, student/academic progress, college readiness, and equity. This information should only be used as a reference. Jome is not affiliated with GreatSchools and does not endorse or guarantee this information. Please reach out to schools directly to verify all information and enrollment eligibility. Data provided by GreatSchools.org © 2025
Places of interest
Getting around
3 nearby routes: 2 bus, 1 rail, 0 otherAir quality
Noise level
A Soundscore™ rating is a number between 50 (very loud) and 100 (very quiet) that tells you how loud a location is due to environmental noise.
Natural hazards risk
Provided by FEMA

Considering this home?
Our expert will guide your tour, in-person or virtual
Need more information?
Text or call (888) 545-5198
Financials
Estimated monthly payment
Let us help you find your dream home
How many bedrooms are you looking for?
Similar homes nearby
Recently added communities in this area
Nearby communities in Orlando
New homes in nearby cities
More New Homes in Orlando, FL
COMPASS FLORIDA LLC, MLS O6365126
Based on information submitted to the MLS GRID as of 10/21/2024 2:31 PM CDT. All data is obtained from various sources and may not have been verified by broker or MLS GRID. Supplied Open House Information is subject to change without notice. All information should be independently reviewed and verified for accuracy. Properties may or may not be listed by the office/agent presenting the information. Some IDX listings have been excluded from this website. Properties displayed may be listed or sold by various participants in the MLS. IDX information is provided exclusively for personal, non-commercial use, and may not be used for any purpose other than to identify prospective properties consumers may be interested in purchasing. Information is deemed reliable but not guaranteed. Use of the MLS GRID Data may be subject to an end user license agreement prescribed by the Member Participant’s applicable MLS if any and as amended from time to time. The Digital Millennium Copyright Act of 1998, 17 U.S.C. § 512 (the “DMCA”) provides recourse for copyright owners who believe that material appearing on the Internet infringes their rights under U.S. copyright law. If you believe in good faith that any content or material made available in connection with our website or services infringes your copyright, you (or your agent) may send us a notice requesting that the content or material be removed, or access to it blocked. Notices must be sent in writing by email to DMCAnotice@MLSGrid.com. The DMCA requires that your notice of alleged copyright infringement include the following information: (1) description of the copyrighted work that is the subject of claimed infringement; (2) description of the alleged infringing content and information sufficient to permit us to locate the content; (3) contact information for you, including your address, telephone number and email address; (4) a statement by you that you have a good faith belief that the content in the manner complained of is not authorized by the copyright owner, or its agent, or by the operation of any law; (5) a statement by you, signed under penalty of perjury, that the information in the notification is accurate and that you have the authority to enforce the copyrights that are claimed to be infringed; and (6) a physical or electronic signature of the copyright owner or a person authorized to act on the copyright owner’s behalf. Failure to include all of the above information may result in the delay of the processing of your complaint. Listing Information presented by local MLS brokerage: NewHomesMate LLC, DBA Jome (888) 545-5198
Read moreLast checked Mar 18, 3:10 am
- Jome
- New homes search
- Florida
- Greater Orlando Area
- Orange County
- Orlando
- 2 W Steele St, Orlando, FL 32804






















