



Book your tour. Save an average of $18,473. We'll handle the rest.
We collect exclusive builder offers, book your tours, and support you from start to housewarming.
- Confirmed tours
- Get matched & compare top deals
- Expert help, no pressure
- No added fees
Estimated value based on Jome data, T&C apply
- 4 bd
- 3.5 ba
- 2,250 sqft
2526 Mario Wy, Clearwater, FL 33761
Why tour with Jome?
- No pressure toursTour at your own pace with no sales pressure
- Expert guidanceGet insights from our home buying experts
- Exclusive accessSee homes and deals not available elsewhere
Jome is featured in
- Townhouse
- Ready by July 2026
- $243.56/sqft
- $199/monthly HOA
Home description
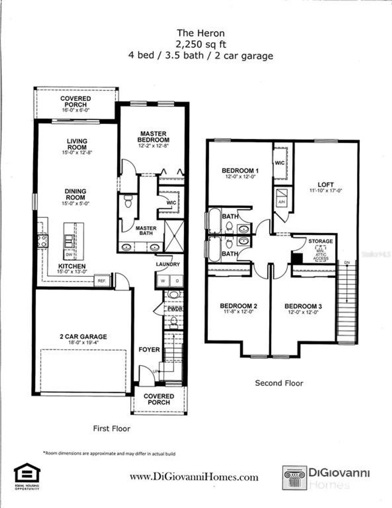
Location! Location! Fabulous Countryside location! Brand new construction presented by premier builder DiGiovanni Homes! Luxury living in the heart of the Countryside area of Clearwater. Prime location! Be the first to live in this magnificent townhome in the new, gated community of Summerset Villas. Low HOA, community pool, pet friendly and not in a flood zone! Loaded with standard luxury features. The fabulous ‘Heron’ floor plan brings open concept to its 2,250 sq.ft. with 4 bedrooms, 3.5 baths and a 2-car garage. The layout boasts a desirable main floor primary bedroom with spa-like ensuite bath, walk-in closet, double vanity, walk-in shower and water closet! The kitchen is designed for fine family living and grand entertaining with an island breakfast bar, real wood cabinetry, stainless appliances, designer backsplash and quartz counters as well as beautiful luxury vinyl flooring that is carried into the open great room. And living space is extended to a huge (16’x 6’) covered patio. The first floor also houses a convenient half bath and laundry room. Secondary bedrooms and two additional full baths are upstairs along with a large loft area with endless possibilities. Standard features are lavish and include a flagstone paver driveway, impact windows, shaker style cabinetry, 3.5” colonial trim throughout, tankless gas hot water heater, 12’x24’ tile in bathrooms, luxury vinyl flooring in main living areas and so much more! The exceptional location of this natural gas community is near to all… shopping, restaurants, airports, medical and just a short drive to charming downtown Dunedin as well as the powder white sands of the legendary Gulf beaches. Make it yours and enjoy a limited time 'Holiday Special'... $10,000 builder credit toward buyer closing costs and/or upgrades!!
RE/MAX REALTEC GROUP INC, MLS TB8453772
May also be listed on the DiGiovanni Homes website
Information last verified by Jome: Today at 9:51 AM (March 9, 2026)
Home highlights
Major Tampa arts venue undergoing $100M expansion to reinforce its central role in cultural downtown life.
Book your tour. Save an average of $18,473. We'll handle the rest.
We collect exclusive builder offers, book your tours, and support you from start to housewarming.
- Confirmed tours
- Get matched & compare top deals
- Expert help, no pressure
- No added fees
Estimated value based on Jome data, T&C apply
Home details
- Property status:
- Under construction
- Lot size (acres):
- 0.20
- Size:
- 2,250 sqft
- Stories:
- 2
- Beds:
- 4
- Baths:
- 3
- Half baths:
- 1
- Garage spaces:
- 2
- Facing direction:
- South
Construction details
- Builder Name:
- DiGiovanni Homes
- Completion Date:
- July, 2026
- Year Built:
- 2025
- Roof:
- Shingle Roofing
Home features & finishes
- Construction Materials:
- StuccoBlock
- Cooling:
- Central Air
- Flooring:
- Vinyl FlooringCarpet FlooringTile Flooring
- Foundation Details:
- Slab
- Garage/Parking:
- Door OpenerGarageAttached Garage
- Home amenities:
- Internet
- Interior Features:
- Ceiling-HighWalk-In ClosetSliding DoorsLoft
- Kitchen:
- DishwasherMicrowave OvenRefrigeratorDisposalKitchen Range
- Laundry facilities:
- Utility/Laundry Room
- Lighting:
- Street Lights
- Pets:
- Pets Allowed
- Property amenities:
- SidewalkCabinetsPatio
- Rooms:
- Family RoomOpen Concept Floorplan
- Security system:
- Smoke Detector

Get a consultation with our New Homes Expert
- See how your home builds wealth
- Plan your home-buying roadmap
- Discover hidden gems
Utility information
- Heating:
- Electric Heating, Thermostat, Water Heater, Central Heating, Tankless water heater
- Utilities:
- Natural Gas Available, Phone Available, Cable Available, Water Available
Community amenities
- Gated Community
- Community Pool
- Sidewalks Available
About the builder - DiGiovanni Homes
Neighborhood
Home address
- City:
- Clearwater
- County:
- Pinellas
- Zip Code:
- 33761
Schools in Pinellas County School District
GreatSchools’ Summary Rating calculation is based on 4 of the school’s themed ratings, including test scores, student/academic progress, college readiness, and equity. This information should only be used as a reference. Jome is not affiliated with GreatSchools and does not endorse or guarantee this information. Please reach out to schools directly to verify all information and enrollment eligibility. Data provided by GreatSchools.org © 2025
Places of interest
Getting around
Noise level
A Soundscore™ rating is a number between 50 (very loud) and 100 (very quiet) that tells you how loud a location is due to environmental noise.
Natural hazards risk
Provided by FEMA

Considering this home?
Our expert will guide your tour, in-person or virtual
Need more information?
Text or call (888) 488-9243
Financials
Estimated monthly payment
Let us help you find your dream home
How many bedrooms are you looking for?
Similar homes nearby
Recently added communities in this area
Nearby communities in Clearwater
New homes in nearby cities
More New Homes in Clearwater, FL
RE/MAX REALTEC GROUP INC, MLS TB8453772
Based on information submitted to the MLS GRID as of 10/21/2024 2:31 PM CDT. All data is obtained from various sources and may not have been verified by broker or MLS GRID. Supplied Open House Information is subject to change without notice. All information should be independently reviewed and verified for accuracy. Properties may or may not be listed by the office/agent presenting the information. Some IDX listings have been excluded from this website. Properties displayed may be listed or sold by various participants in the MLS. IDX information is provided exclusively for personal, non-commercial use, and may not be used for any purpose other than to identify prospective properties consumers may be interested in purchasing. Information is deemed reliable but not guaranteed. Use of the MLS GRID Data may be subject to an end user license agreement prescribed by the Member Participant’s applicable MLS if any and as amended from time to time. The Digital Millennium Copyright Act of 1998, 17 U.S.C. § 512 (the “DMCA”) provides recourse for copyright owners who believe that material appearing on the Internet infringes their rights under U.S. copyright law. If you believe in good faith that any content or material made available in connection with our website or services infringes your copyright, you (or your agent) may send us a notice requesting that the content or material be removed, or access to it blocked. Notices must be sent in writing by email to DMCAnotice@MLSGrid.com. The DMCA requires that your notice of alleged copyright infringement include the following information: (1) description of the copyrighted work that is the subject of claimed infringement; (2) description of the alleged infringing content and information sufficient to permit us to locate the content; (3) contact information for you, including your address, telephone number and email address; (4) a statement by you that you have a good faith belief that the content in the manner complained of is not authorized by the copyright owner, or its agent, or by the operation of any law; (5) a statement by you, signed under penalty of perjury, that the information in the notification is accurate and that you have the authority to enforce the copyrights that are claimed to be infringed; and (6) a physical or electronic signature of the copyright owner or a person authorized to act on the copyright owner’s behalf. Failure to include all of the above information may result in the delay of the processing of your complaint. Listing Information presented by local MLS brokerage: NewHomesMate LLC, DBA Jome (888) 488-9243
Read moreLast checked Mar 9, 9:10 am
- Jome
- New homes search
- Florida
- Tampa Bay Area
- Pinellas County
- Clearwater
- 2526 Mario Wy, Clearwater, FL 33761



























