








Book your tour. Save an average of $18,473. We'll handle the rest.
We collect exclusive builder offers, book your tours, and support you from start to housewarming.
- Confirmed tours
- Get matched & compare top deals
- Expert help, no pressure
- No added fees
Estimated value based on Jome data, T&C apply












- 4 bd
- 3 ba
- 2,343 sqft
562 Maralinda Dr, St. Augustine, FL 32095
Why tour with Jome?
- No pressure toursTour at your own pace with no sales pressure
- Expert guidanceGet insights from our home buying experts
- Exclusive accessSee homes and deals not available elsewhere
Jome is featured in
- Single-Family
- Under construction
- $298.72/sqft
- $426/quarterly HOA
Home description
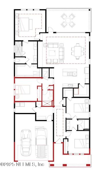
Welcome to this quality new construction home by Mastercraft in the sought-after Madeira community of St. Augustine! This thoughtfully designed Craftsman-style Moultrie plan offers 4 bedrooms, 3 full baths, a 2-car garage, and backs to a pond with peaceful water views. Ten-foot ceilings throughout, pre-plumbing for a water softener, and summer kitchen prep add convenience. This award-winning layout showcases Mastercraft's high standards with upgraded finishes, a refined neutral palette, Luxury Vinyl Plank in main living areas, dovetail soft-close cabinetry in soft white, quartz countertops, designer lighting and hardware, plus all appliances included. Enjoy a quiet yet convenient lifestyle minutes from historic downtown St. Augustine, pristine beaches, and A-rated schools. Blending style, comfort, and quality craftsmanship, this home is a must-see!
PERRY HOMES, MLS 2119918
May also be listed on the MasterCraft Builder Group website
Information last verified by Jome: Today at 1:28 AM (April 24, 2026)
Book your tour. Save an average of $18,473. We'll handle the rest.
We collect exclusive builder offers, book your tours, and support you from start to housewarming.
- Confirmed tours
- Get matched & compare top deals
- Expert help, no pressure
- No added fees
Estimated value based on Jome data, T&C apply
Home details
- Property status:
- Under construction
- Lot size (acres):
- 0.18
- Size:
- 2,343 sqft
- Stories:
- 1
- Beds:
- 4
- Baths:
- 3
- Garage spaces:
- 2
Construction details
- Builder Name:
- MasterCraft Builder Group
- Year Built:
- 2025
Home features & finishes
- Cooling:
- Central Air
- Garage/Parking:
- GarageAttached Garage
- Home amenities:
- ENERGY STAR Certified
- Interior Features:
- Walk-In ClosetPantry
- Kitchen:
- DishwasherMicrowave OvenRefrigeratorGas CooktopFreezerKitchen IslandElectric Oven
- Laundry facilities:
- DryerWasher
- Rooms:
- Primary Bedroom On MainOpen Concept FloorplanPrimary Bedroom Downstairs

Get a consultation with our New Homes Expert
- See how your home builds wealth
- Plan your home-buying roadmap
- Discover hidden gems
Utility information
- Heating:
- Thermostat, Water Heater, Central Heating, Tankless water heater
- Sewer:
- Public Sewer
- Utilities:
- Electricity Available, Natural Gas Available, Sewer Available, Water Available
- Water source:
- Public

Community details
Madeira
by MasterCraft Builder Group, St. Augustine, FL
- 9 homes
- 8 plans
- 1,605 - 4,757 sqft
View Madeira details
More homes in Madeira
- Home at address 512 Maralinda Dr, St. Augustine, FL 32095

Home
Savings$689,900
- 4 bd
- 3 ba
- 2,343 sqft
512 Maralinda Dr, St. Augustine, FL 32095
- Home at address 343 Lamego Ln, St. Augustine, FL 32095

Home
Savings$841,900
- 4 bd
- 3 ba
- 2,343 sqft
343 Lamego Ln, St. Augustine, FL 32095
- Home at address 463 Pantano Dr, St. Augustine, FL 32095

Home
Savings$985,900
- 4 bd
- 3 ba
- 2,496 sqft
463 Pantano Dr, St. Augustine, FL 32095
- Home at address 177 Tesoro Ter, St. Augustine, FL 32095

Home
Savings$992,900
- 4 bd
- 3 ba
- 2,661 sqft
177 Tesoro Ter, St. Augustine, FL 32095
- Home at address 399 Pantano Dr, St. Augustine, FL 32095

Home
Savings$1,071,900
- 4 bd
- 3 ba
- 2,860 sqft
399 Pantano Dr, St. Augustine, FL 32095
Floor plans in Madeira
About the builder - MasterCraft Builder Group
Neighborhood
Home address
- City:
- St. Augustine
- County:
- St. Johns
- Zip Code:
- 32095
Schools in St. Johns County School District
- Grades 06-12Publicst johns county juvenile residential0.9 mi4500 avenue dna
GreatSchools’ Summary Rating calculation is based on 4 of the school’s themed ratings, including test scores, student/academic progress, college readiness, and equity. This information should only be used as a reference. Jome is not affiliated with GreatSchools and does not endorse or guarantee this information. Please reach out to schools directly to verify all information and enrollment eligibility. Data provided by GreatSchools.org © 2025
Places of interest
Getting around
Noise level
A Soundscore™ rating is a number between 50 (very loud) and 100 (very quiet) that tells you how loud a location is due to environmental noise.

Considering this home?
Our expert will guide your tour, in-person or virtual
Need more information?
Text or call (888) 545-5198
Financials
Estimated monthly payment
Let us help you find your dream home
How many bedrooms are you looking for?
Similar homes nearby
Recently added communities in this area
Nearby communities in St. Augustine
New homes in nearby cities
More New Homes in St. Augustine, FL
PERRY HOMES, MLS 2119918
IDX information is provided exclusively for personal, non-commercial use, and may not be used for any purpose other than to identify prospective properties consumers may be interested in purchasing. Data is deemed reliable but is not guaranteed accurate by NEFMLS. © 2025 Northeast Florida Multiple Listing Service, Inc. All rights reserved.
Read moreLast checked Apr 24, 1:00 am
- Jome
- New homes search
- Florida
- Jacksonville Metropolitan Area
- St. Johns County
- St. Augustine
- Madeira
- 562 Maralinda Dr, St. Augustine, FL 32095

























