



- 5 bd
- 2 ba
- 1,739 sqft
1139 Amber Waves Ct, Lake Wales, FL 33859
- Single-Family
- $151.81/sqft
- $234.47/quarterly HOA
- 128 days on Jome
New Homes for Sale Near 1139 Amber Waves Ct, Lake Wales, FL 33859
About this Home
About this home
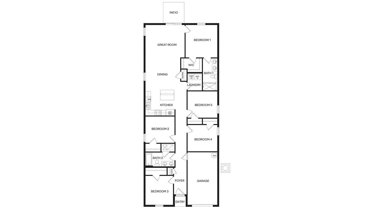
The Alford is one of our thoughtfully designed one-story floorplans, available in Leoma's Landing in Lake Wales, Florida. Choose from three modern exterior options, each paired with a convenient one-car garage.
This spacious home offers 5 bedrooms, 2 bathrooms, and 1,739 square feet of comfortable living. Its open-concept design creates a seamless flow between the kitchen, dining, and living areas perfect for entertaining or enjoying everyday life. The versatile layout also gives homeowners flexibility in how they style and use each space. For added privacy, the primary bedroom is located at the back of the home, while the additional bedrooms are positioned toward the front.
The kitchen is a true highlight, featuring shaker-style cabinetry, quartz countertops, and stainless-steel appliances. With its open layout overlooking the dining area, meal prep and socializing come naturally.
Each secondary bedroom includes carpet flooring and its own closet, offering the perfect setup for bedrooms, office space, or bonus rooms. The primary suite stands out with luxury vinyl plank flooring, a private attached bath, and a generous walk-in closet. The bathroom is designed with convenience in mind, featuring a dual vanity and a separate door for the toilet and shower.
May also be listed on the D.R. Horton website
Information last verified by Jome: Wednesday at 12:52 AM (December 10, 2025)
Home details
- Property status:
- Sold
- Size:
- 1,739 sqft
- Stories:
- 1
- Beds:
- 5
- Baths:
- 2
- Garage spaces:
- 1
Construction details
- Builder Name:
- D.R. Horton
Home features & finishes
- Garage/Parking:
- GarageAttached Garage
- Interior Features:
- Walk-In ClosetFoyerPantry
- Laundry facilities:
- Utility/Laundry Room
- Property amenities:
- Patio
- Rooms:
- Great RoomPrimary Bedroom On MainKitchenDining RoomOpen Concept FloorplanPrimary Bedroom Downstairs

Community details
Leoma's Landing
by D.R. Horton, Lake Wales, FL
- 8 homes
- 6 plans
- 1,223 - 1,739 sqft
View Leoma's Landing details
More homes in Leoma's Landing
- Home at address 1103 Amber Waves Ct, Lake Wales, FL 33859

$238,490
Move-in ready- 3 bd
- 2 ba
- 1,223 sqft
1103 Amber Waves Ct, Lake Wales, FL 33859
- Home at address 1151 Amber Waves Ct, Lake Wales, FL 33859

$238,990
Move-in ready- 3 bd
- 2 ba
- 1,223 sqft
1151 Amber Waves Ct, Lake Wales, FL 33859
- Home at address 1143 Amber Waves Ct, Lake Wales, FL 33859

$240,990
Move-in ready- 3 bd
- 2 ba
- 1,223 sqft
1143 Amber Waves Ct, Lake Wales, FL 33859
- Home at address 1111 Amber Waves Ct, Lake Wales, FL 33859

$240,990
Move-in ready- 3 bd
- 2 ba
- 1,223 sqft
1111 Amber Waves Ct, Lake Wales, FL 33859
- Home at address 1106 Amber Waves Ct, Lake Wales, FL 33859

$249,990
Move-in ready- 4 bd
- 2 ba
- 1,560 sqft
1106 Amber Waves Ct, Lake Wales, FL 33859
- Home at address 1115 Amber Waves Ct, Lake Wales, FL 33859

$249,990
Under construction- 4 bd
- 2 ba
- 1,560 sqft
1115 Amber Waves Ct, Lake Wales, FL 33859
Floor plans in Leoma's Landing
About the builder - D.R. Horton

- 1,164communities on Jome
- 10,478homes on Jome
Neighborhood
Home address
- City:
- Lake Wales
- County:
- Polk
- Zip Code:
- 33859
Schools in Polk County School District
GreatSchools’ Summary Rating calculation is based on 4 of the school’s themed ratings, including test scores, student/academic progress, college readiness, and equity. This information should only be used as a reference. Jome is not affiliated with GreatSchools and does not endorse or guarantee this information. Please reach out to schools directly to verify all information and enrollment eligibility. Data provided by GreatSchools.org © 2025
Places of interest
Getting around
Air quality
Noise level
A Soundscore™ rating is a number between 50 (very loud) and 100 (very quiet) that tells you how loud a location is due to environmental noise.
Financials
Nearby communities in Lake Wales
Homes in Lake Wales by D.R. Horton
Recently added communities in this area
Other Builders in Lake Wales, FL
Nearby sold homes
New homes in nearby cities
More New Homes in Lake Wales, FL
- Jome
- New homes search
- Florida
- Greater Orlando Area
- Polk County
- Lake Wales
- Leoma's Landing
- 1139 Amber Waves Ct, Lake Wales, FL 33859






























































