








Book your tour. Save an average of $18,473. We'll handle the rest.
We collect exclusive builder offers, book your tours, and support you from start to housewarming.
- Confirmed tours
- Get matched & compare top deals
- Expert help, no pressure
- No added fees
Estimated value based on Jome data, T&C apply

































- 6 bd
- 6 ba
- 4,749 sqft
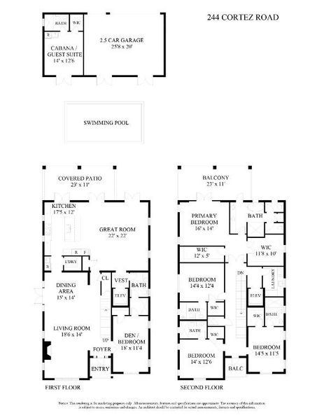
244 Cortez Rd, West Palm Beach, FL 33405
Why tour with Jome?
- No pressure toursTour at your own pace with no sales pressure
- Expert guidanceGet insights from our home buying experts
- Exclusive accessSee homes and deals not available elsewhere
Jome is featured in
- Single-Family
- Quick move-in
- $1262.37/sqft
- North facing
Home description
Tucked away on one of SOSO's most desirable streets, just south of Southern and east of Olive, 244 Cortez Road is now fully completed, revealing a residence that balances timeless architecture with a more modern, livable elegance. Set on an extra-deep 139' lot with rear alley access, the property offers a rare sense of privacy and solitude, with no rear neighbor and a beautiful sunlit backyard framed by a detached, air-conditioned 2.5-car garage. This spacious garage is ideal not only for parking, but could easily double as a gym, studio, or additional recreational space. A separate one-bedroom guest suite or cabana with full bath enhances the flexibility of the layout, creating a true compound-like feel to this residence. Inside, the home unfolds with a natural flow designed for both everyday living and elevated entertaining. Formal living and dining rooms offer a more traditional sense of arrival, while the expansive kitchen and family room open seamlessly to the outdoor living areas, creating a layout that feels both connected and distinct. Soaring ceiling heights, abundant natural light, and elevated finishes, including mahogany entry and interior French doors, add warmth and architectural presence throughout. The primary suite is complemented by a large sun terrace and beautifully appointed all marble bath with an immense spa like shower, separate his/her water closets. Other baths are also thoughtfully curated featuring handmade Zia tile and tiles from Ann Sacks tile and the Cement Tile Shop, each space thoughtfully designed with a refined, collected aesthetic. Outdoors, the entertaining areas are designed for effortless enjoyment. The pool comes complete with app-controlled systems allowing for full remote management of lighting, features, and ambiance. A full-house and garage generator adds an additional layer of comfort and peace of mind. Now complete, this is a rare opportunity to own a move-in-ready, design-forward new construction in West Palm, where privacy, quality, and location come together in a way that is increasingly hard to find.
Brown Harris Stevens of PB, MLS R11142667
Information last verified by Jome: Today at 11:03 AM (April 21, 2026)
Home highlights
Book your tour. Save an average of $18,473. We'll handle the rest.
We collect exclusive builder offers, book your tours, and support you from start to housewarming.
- Confirmed tours
- Get matched & compare top deals
- Expert help, no pressure
- No added fees
Estimated value based on Jome data, T&C apply
Home details
- Property status:
- Move-in ready
- Lot size (acres):
- 0.16
- Size:
- 4,749 sqft
- Stories:
- 2
- Beds:
- 6
- Baths:
- 6
- Garage spaces:
- 2.5
- Fence:
- Fenced Yard
- Facing direction:
- North
Construction details
- Year Built:
- 2025
- Roof:
- Metal Roofing
Home features & finishes
- Appliances:
- Ice MakerSprinkler System
- Cooling:
- Central Air
- Flooring:
- Wood FlooringMarble FlooringTile FlooringHardwood Flooring
- Garage/Parking:
- Garage
- Interior Features:
- Walk-In ClosetPantryStorageWet BarSeparate Shower
- Kitchen:
- DishwasherMicrowave OvenRefrigeratorDisposalGas CooktopDouble SinkFreezerGas OvenKitchen Range
- Laundry facilities:
- DryerWasher
- Lighting:
- Exterior Lighting
- Pets:
- Pets Allowed
- Property amenities:
- BalconyElevatorOutdoor LivingPatioFireplace
- Rooms:
- KitchenDining RoomFamily RoomPrimary Bedroom Upstairs
- Security system:
- Smoke Detector

Get a consultation with our New Homes Expert
- See how your home builds wealth
- Plan your home-buying roadmap
- Discover hidden gems
Utility information
- Heating:
- Zoned Heating, Central Heating
- Utilities:
- Electricity Available
Community amenities
- Sidewalks Available
- Waterfront View
Neighborhood
Home address
- City:
- West Palm Beach
- County:
- Palm Beach
- Zip Code:
- 33405
Schools in Palm Beach County School District
GreatSchools’ Summary Rating calculation is based on 4 of the school’s themed ratings, including test scores, student/academic progress, college readiness, and equity. This information should only be used as a reference. Jome is not affiliated with GreatSchools and does not endorse or guarantee this information. Please reach out to schools directly to verify all information and enrollment eligibility. Data provided by GreatSchools.org © 2025
Places of interest
Getting around
2 nearby routes: 2 bus, 0 rail, 0 otherAir quality
Noise level
A Soundscore™ rating is a number between 50 (very loud) and 100 (very quiet) that tells you how loud a location is due to environmental noise.
Natural hazards risk
Provided by FEMA

Considering this home?
Our expert will guide your tour, in-person or virtual
Need more information?
Text or call (888) 545-5198
Financials
Estimated monthly payment
Let us help you find your dream home
How many bedrooms are you looking for?
Similar homes nearby
Recently added communities in this area
Nearby communities in West Palm Beach
New homes in nearby cities
More New Homes in West Palm Beach, FL
Brown Harris Stevens of PB, MLS R11142667
All listings featuring the BMLS logo are provided by BeachesMLS, Inc. This information is not verified for authenticity or accuracy and is not guaranteed. Information is provided exclusively for consumers’ personal, non-commercial use and may not be used for any purpose other than to identify prospective properties consumers may be interested in purchasing. Copyright © 2025 BeachesMLS, Inc.
Read moreLast checked Apr 21, 6:00 am
- Jome
- New homes search
- Florida
- Miami Metropolitan Area
- Palm Beach County
- West Palm Beach
- 244 Cortez Rd, West Palm Beach, FL 33405
























