














Book your tour. Save an average of $18,473. We'll handle the rest.
- Confirmed tours
- Get matched & compare top deals
- Expert help, no pressure
- No added fees
Estimated value based on Jome data, T&C apply











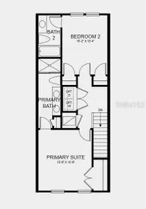
- 3 bd
- 2 ba
- 1,125 sqft
7511 Northern Harrier Wy, Unit B1104, Reunion, FL 34747
Why tour with Jome?
- No pressure toursTour at your own pace with no sales pressure
- Expert guidanceGet insights from our home buying experts
- Exclusive accessSee homes and deals not available elsewhere
Jome is featured in
- Condo
- Under construction
- $344.44/sqft
- North facing
Home description
Under Construction. The best all-around investment properties in Orlando CURRENTLY UNDER CONSTRUCTION 102 new units, SOON TO BE DELIVERED!! RESERVE FROM ONLY $19,375 , Live, Vacation, Enjoy a luxury lifestyle and/or generate income through NIGHTLY short term or long term rentals with these fantastic, spacious, no residential or rental restrictions properties nestled inside of one of the most coveted resorts and Golf country clubs in Florida and the world, for limited time we will a very exclusive Lifetime membership to the Resort and Golf Club filled with amenities that your STR guests can also enjoy. The club features 3 world-class golf courses designed by legends, tennis center, 7 pools, spas, rooftop terrace, fitness center, business center, water park, restaurants, café, bars, and much more!! Perfect for enjoyment of you or your guests, 5 miles to Disney, and interstate I4, 25 minutes to the Airport and all the Orlando main attractions, take advantage of this fantastic opportunity and enjoy the luxury, security and peace at The Crescent At Reunion. This unit does not include garage, One or More Photographs have been virtually staged
EXP REALTY LLC, MLS O6361490
Information last verified by Jome: Yesterday at 10:07 AM (December 4, 2025)
Home highlights
Nature preserve in Kissimmee with boardwalks, paddling trails, and historic sites near family-friendly neighborhoods.
Book your tour. Save an average of $18,473. We'll handle the rest.
We collect exclusive builder offers, book your tours, and support you from start to housewarming.
- Confirmed tours
- Get matched & compare top deals
- Expert help, no pressure
- No added fees
Estimated value based on Jome data, T&C apply
Home details
- Property status:
- Under construction
- Lot size (acres):
- 4.68
- Size:
- 1,125 sqft
- Stories:
- 4
- Beds:
- 3
- Baths:
- 2
- Facing direction:
- North
Construction details
- Completion Date:
- November, 2025
- Year Built:
- 2025
- Roof:
- Built-Up Roofing, Shingle Roofing
Home features & finishes
- Construction Materials:
- BlockConcrete
- Cooling:
- Central Air
- Flooring:
- Vinyl Flooring
- Foundation Details:
- Slab
- Home amenities:
- Internet
- Interior Features:
- Ceiling-HighFrench Doors
- Kitchen:
- DishwasherOvenRefrigeratorBuilt-In OvenCook TopFreezer
- Laundry facilities:
- DryerWasherLaundry Facilities In Closet
- Pets:
- Cat(s) Only AllowedDog(s) Only Allowed
- Property amenities:
- SidewalkGardenBalconyElevator
- Rooms:
- Dining RoomFamily RoomLiving RoomOpen Concept Floorplan
Utility information
- Heating:
- Thermostat, Water Heater, Central Heating
- Utilities:
- Electricity Available, Cable Available, Water Available
Community amenities
- Dog Park
- Playground
- Fitness Center/Exercise Area
- Club House
- Golf Course
- Tennis Courts
- Gated Community
- Community Pool
- Park Nearby
- Security Guard/Safety Office
- Sidewalks Available
Neighborhood
Home address
Schools in Osceola County School District
- Grades PK-KGPrivatemontessori school of davenport inc4.6 mi101-103 ridge center drna
GreatSchools’ Summary Rating calculation is based on 4 of the school’s themed ratings, including test scores, student/academic progress, college readiness, and equity. This information should only be used as a reference. Jome is not affiliated with GreatSchools and does not endorse or guarantee this information. Please reach out to schools directly to verify all information and enrollment eligibility. Data provided by GreatSchools.org © 2025
Places of interest
Getting around
Air quality
Noise level
A Soundscore™ rating is a number between 50 (very loud) and 100 (very quiet) that tells you how loud a location is due to environmental noise.
Natural hazards risk
Climate hazards can impact homes and communities, with risks varying by location. These scores reflect the potential impact of natural disasters and climate-related risks on Osceola County
Provided by FEMA

Considering this home?
Our expert will guide your tour, in-person or virtual
Need more information?
Text or call (888) 486-2818
Financials
Similar homes nearby
Recently added communities in this area
Nearby communities in Reunion
New homes in nearby cities
More New Homes in Reunion, FL
EXP REALTY LLC, MLS O6361490
Based on information submitted to the MLS GRID as of 10/21/2024 2:31 PM CDT. All data is obtained from various sources and may not have been verified by broker or MLS GRID. Supplied Open House Information is subject to change without notice. All information should be independently reviewed and verified for accuracy. Properties may or may not be listed by the office/agent presenting the information. Some IDX listings have been excluded from this website. Properties displayed may be listed or sold by various participants in the MLS. IDX information is provided exclusively for personal, non-commercial use, and may not be used for any purpose other than to identify prospective properties consumers may be interested in purchasing. Information is deemed reliable but not guaranteed. Use of the MLS GRID Data may be subject to an end user license agreement prescribed by the Member Participant’s applicable MLS if any and as amended from time to time. The Digital Millennium Copyright Act of 1998, 17 U.S.C. § 512 (the “DMCA”) provides recourse for copyright owners who believe that material appearing on the Internet infringes their rights under U.S. copyright law. If you believe in good faith that any content or material made available in connection with our website or services infringes your copyright, you (or your agent) may send us a notice requesting that the content or material be removed, or access to it blocked. Notices must be sent in writing by email to DMCAnotice@MLSGrid.com. The DMCA requires that your notice of alleged copyright infringement include the following information: (1) description of the copyrighted work that is the subject of claimed infringement; (2) description of the alleged infringing content and information sufficient to permit us to locate the content; (3) contact information for you, including your address, telephone number and email address; (4) a statement by you that you have a good faith belief that the content in the manner complained of is not authorized by the copyright owner, or its agent, or by the operation of any law; (5) a statement by you, signed under penalty of perjury, that the information in the notification is accurate and that you have the authority to enforce the copyrights that are claimed to be infringed; and (6) a physical or electronic signature of the copyright owner or a person authorized to act on the copyright owner’s behalf. Failure to include all of the above information may result in the delay of the processing of your complaint. Listing Information presented by local MLS brokerage: NewHomesMate LLC, DBA Jome (888) 486-2818
Read moreLast checked Dec 5, 3:10 am
- Home
- New homes
- Florida
- Greater Orlando Area
- Osceola County
- Reunion
- 7511 Northern Harrier Wy, Unit B1104, Reunion, FL 34747




























