
























































- 4 bd
- 3.5 ba
- 3,347 sqft
809 Sw 12Th Ave, Fort Lauderdale, FL 33312
- Single-Family
- $657.01/sqft
- East facing
- 0.15-acre lot
New Homes for Sale Near 809 Sw 12Th Ave, Fort Lauderdale, FL 33312
About this Home
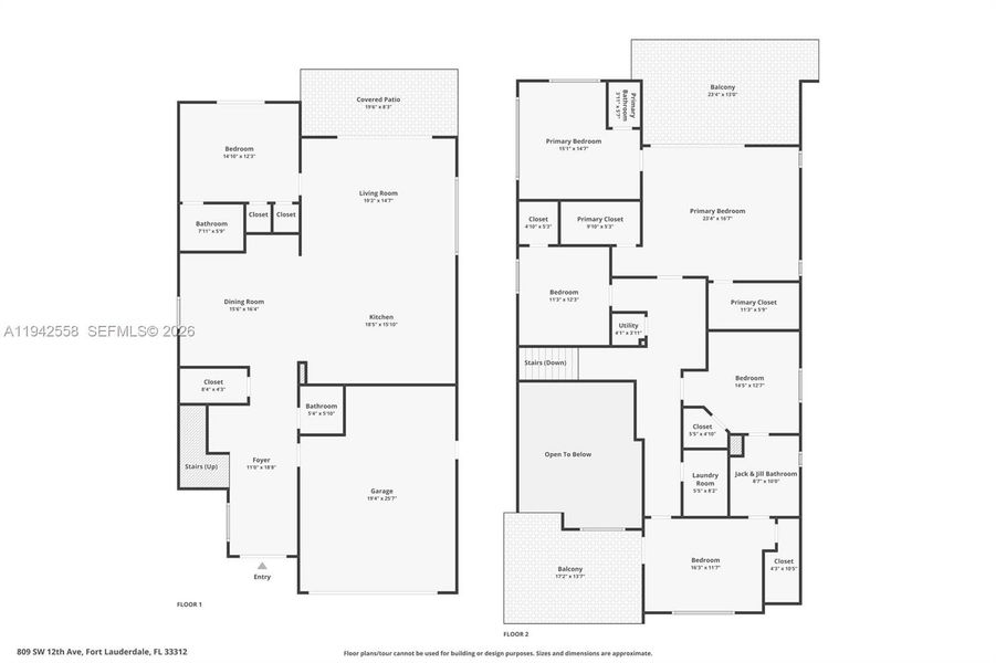
This brand-new construction residence in the heart of Riverside offers contemporary luxury, spacious design, and an unbeatable location. Featuring 5 bedrooms and 3.5 bathrooms, this home is filled with natural light and showcases soaring ceilings with an open-concept layout. The primary suite is located upstairs and includes walk-in closets, while the gourmet kitchen is perfect for both everyday living and entertaining.
The outdoor space shines with a saltwater pool and spa, plus a covered summer kitchen with BBQ—ideal for relaxing or hosting guests.
This residence offers a 2-car attached garage, a driveway for up to 6 vehicles, and an electric vehicle charging station.
Just steps from Riverside Café and a neighborhood park with tennis and pickleball courts, and only minutes to Downtown Fort Lauderdale, Las Olas Boulevard, and Fort Lauderdale International Airport, this home delivers the perfect blend of modern style, comfort, and location.
Compass Florida, LLC, MLS A11942558
Information last verified by Jome: Today at 12:04 AM (April 29, 2026)
Home details
- Property status:
- Sold
- Lot size (acres):
- 0.15
- Size:
- 3,347 sqft
- Stories:
- 2
- Beds:
- 4
- Baths:
- 3
- Half baths:
- 1
- Garage spaces:
- 2
- Facing direction:
- East
Construction details
- Year Built:
- 2025
- Roof:
- Metal Roofing
Home features & finishes
- Construction Materials:
- Concrete
- Cooling:
- Central Air
- Flooring:
- Wood FlooringVinyl Flooring
- Garage/Parking:
- GarageAttached GarageCar Charging Stations
- Interior Features:
- Walk-In ClosetPantrySeparate ShowerDouble Vanity
- Kitchen:
- DishwasherMicrowave OvenRefrigeratorDisposalGas CooktopGas OvenKitchen Range
- Laundry facilities:
- DryerWasherUtility/Laundry Room
- Lighting:
- Exterior Lighting
- Pets:
- Pets Allowed
- Property amenities:
- BBQ AreaFireplace
- Rooms:
- KitchenDining RoomPrimary Bedroom Upstairs
- Security system:
- Smoke Detector
Utility information
- Heating:
- Central Heating
- Sewer:
- Public Sewer
- Water source:
- Public
Community amenities
- Garden View
- Waterfront View
Neighborhood
Home address
- City:
- Fort Lauderdale
- County:
- Broward
- Zip Code:
- 33312
Schools in Broward County School District
GreatSchools’ Summary Rating calculation is based on 4 of the school’s themed ratings, including test scores, student/academic progress, college readiness, and equity. This information should only be used as a reference. Jome is not affiliated with GreatSchools and does not endorse or guarantee this information. Please reach out to schools directly to verify all information and enrollment eligibility. Data provided by GreatSchools.org © 2025
Places of interest
Getting around
7 nearby routes: 6 bus, 1 rail, 0 otherNoise level
A Soundscore™ rating is a number between 50 (very loud) and 100 (very quiet) that tells you how loud a location is due to environmental noise.
Natural hazards risk
Provided by FEMA
Financials
Nearby communities in Fort Lauderdale
Homes in Fort Lauderdale Neighborhoods
- Central Beach Alliance
- Coral Ridge
- Victoria Park
- Poinsettia Heights
- Harbor Beach
- Hendricks And Venice Isles
- Croissant Park
- Tarpon River
- Downtown
- Rio Vista
- River Oaks
- South Middle River
- Las Olas Isles
- Flagler Heights
- Sunrise Intracoastal
- Riviera Isles
- Rock Island
- Coral Ridge Country Club
- Colee Hammock
- Seven Isles
- Dorsey-Riverbend
- Edgewood
- Nurmi Isles
- Harbour Inlet
- Birch Park Finger Sts.
- Chula Vista
- Lauderdale Harbours
- Middle River Terrace
- Sailboat Bend
- Beverly Heights
- Dolphin Isles
- Galt Mile
- Bal Harbour
- Harbordale
- Melrose Park
- Riverside Park
- Lauderdale Beach
- Landings
- Durrs Homeowners
- Riverland Woods
- Idlewyld
Recently added communities in this area
Other Builders in Fort Lauderdale, FL
Nearby sold homes
New homes in nearby cities
More New Homes in Fort Lauderdale, FL
Compass Florida, LLC, MLS A11942558
IDX information is provided exclusively for personal, non-commercial use, and may not be used for any purpose other than to identify prospective properties consumers may be interested in purchasing. Information is deemed reliable but not guaranteed.
Read moreLast checked Apr 29, 12:20 am
- Jome
- New homes search
- Florida
- Miami Metropolitan Area
- Broward County
- Fort Lauderdale
- 809 Sw 12Th Ave, Fort Lauderdale, FL 33312





















































