














Book your tour. Save an average of $18,473. We'll handle the rest.
- Confirmed tours
- Get matched & compare top deals
- Expert help, no pressure
- No added fees
Estimated value based on Jome data, T&C apply





























- 5 bd
- 4.5 ba
- 4,084 sqft
814 W Braddock St, Tampa, FL 33603
Why tour with Jome?
- No pressure toursTour at your own pace with no sales pressure
- Expert guidanceGet insights from our home buying experts
- Exclusive accessSee homes and deals not available elsewhere
Jome is featured in
- Single-Family
- Under construction
- $465.23/sqft
- North facing
Home description
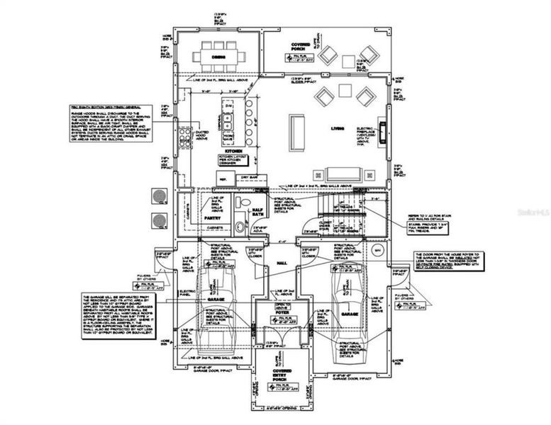
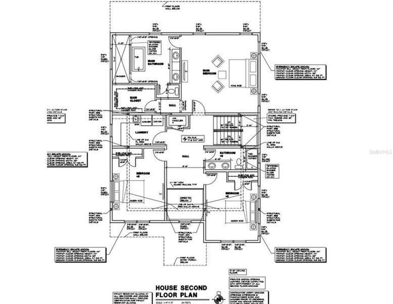
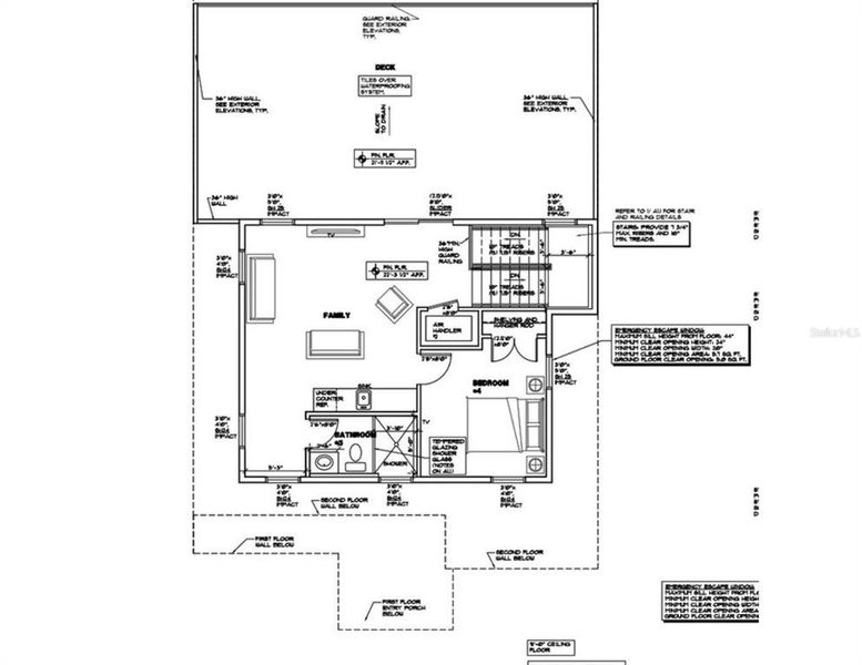
Welcome to this architecturally striking, three-level, pool home constructed by Bay to Bay Group offering 4,084 square feet of thoughtfully designed living space. Upon entry, you’re greeted by a stunning archway above the foyer that opens to an expansive open-concept living area featuring a fireplace and a stylish dry bar — creating a warm and inviting atmosphere ideal for everyday living and social gatherings alike. The chef’s kitchen is truly an entertainer’s dream, showcasing an oversized island, stainless steel appliances, a custom walk in pantry and custom cabinetry throughout — beautifully curated to inspire gatherings of all kinds. Seamless access to the living, dining, and outdoor spaces makes this floor plan both functional and inviting. A half bathroom downstairs adds extra comfort and convenience for guests. Upstairs, you’ll find the impressive primary suite — a peaceful retreat filled with natural light, featuring a generous walk-in closet and a luxurious spa-inspired bath with dual shower entry and a soaking tub — the perfect place to unwind at the end of the day. The second level also includes two additional bedrooms, a guest bathroom, and a conveniently located laundry room for added functionality. The third level showcases a spacious bonus entertainment and family room complete with a full bathroom, a private bedroom, a custom built-in wet bar, and a massive balcony — the ideal space for entertaining guests or enjoying Tampa’s beautiful sunsets. The outdoor space is equally captivating, featuring an outdoor kitchen, pool, and a detached guest house with one bedroom, one full bathroom and a fully equipped kitchen — ideal for extended family, guests, or a private office. Nestled in the highly desirable Riverside Heights neighborhood, this residence offers the best of Tampa living — just minutes from Downtown Tampa, Armature Works, Michelin-starred restaurants, the Tampa Riverwalk, TGH, and Tampa International Airport
KELLER WILLIAMS TAMPA CENTRAL, MLS TB8439696
Information last verified by Jome: Today at 10:09 AM (January 20, 2026)
Book your tour. Save an average of $18,473. We'll handle the rest.
We collect exclusive builder offers, book your tours, and support you from start to housewarming.
- Confirmed tours
- Get matched & compare top deals
- Expert help, no pressure
- No added fees
Estimated value based on Jome data, T&C apply
Home details
- Property status:
- Under construction
- Lot size (acres):
- 0.14
- Size:
- 4,084 sqft
- Beds:
- 5
- Baths:
- 4
- Half baths:
- 1
- Garage spaces:
- 2
- Facing direction:
- North
Construction details
- Completion Date:
- December, 2025
- Year Built:
- 2025
- Roof:
- Membrane Roofing
Home features & finishes
- Construction Materials:
- Wood FrameBlock
- Cooling:
- Ceiling Fan(s)Central Air
- Flooring:
- Tile FlooringHardwood Flooring
- Foundation Details:
- Slab
- Garage/Parking:
- GarageAttached Garage
- Interior Features:
- Walk-In ClosetSliding Doors
- Kitchen:
- Wine RefrigeratorDishwasherMicrowave OvenRefrigeratorDisposalKitchen Range
- Laundry facilities:
- Utility/Laundry Room
- Pets:
- Dog(s) Only Allowed
- Property amenities:
- BalconyPoolElectric FireplaceFireplace
- Rooms:
- Open Concept FloorplanPrimary Bedroom Upstairs

Get a consultation with our New Homes Expert
- See how your home builds wealth
- Plan your home-buying roadmap
- Discover hidden gems
Utility information
- Heating:
- Electric Heating, Thermostat
Community amenities
- City View
Neighborhood
Home address
- City:
- Tampa
- County:
- Hillsborough
- Zip Code:
- 33603
Schools in Hillsborough County School District
- Grades 02-12Publichillsborough virtual instruction course offerings0.6 mi2704 north highland avenuena
GreatSchools’ Summary Rating calculation is based on 4 of the school’s themed ratings, including test scores, student/academic progress, college readiness, and equity. This information should only be used as a reference. Jome is not affiliated with GreatSchools and does not endorse or guarantee this information. Please reach out to schools directly to verify all information and enrollment eligibility. Data provided by GreatSchools.org © 2025
Places of interest
Getting around
8 nearby routes: 8 bus, 0 rail, 0 otherAir quality
Natural hazards risk
Provided by FEMA

Considering this home?
Our expert will guide your tour, in-person or virtual
Need more information?
Text or call (888) 486-2818
Financials
Estimated monthly payment
Let us help you find your dream home
How many bedrooms are you looking for?
Similar homes nearby
Recently added communities in this area
Nearby communities in Tampa
New homes in nearby cities
More New Homes in Tampa, FL
KELLER WILLIAMS TAMPA CENTRAL, MLS TB8439696
Based on information submitted to the MLS GRID as of 10/21/2024 2:31 PM CDT. All data is obtained from various sources and may not have been verified by broker or MLS GRID. Supplied Open House Information is subject to change without notice. All information should be independently reviewed and verified for accuracy. Properties may or may not be listed by the office/agent presenting the information. Some IDX listings have been excluded from this website. Properties displayed may be listed or sold by various participants in the MLS. IDX information is provided exclusively for personal, non-commercial use, and may not be used for any purpose other than to identify prospective properties consumers may be interested in purchasing. Information is deemed reliable but not guaranteed. Use of the MLS GRID Data may be subject to an end user license agreement prescribed by the Member Participant’s applicable MLS if any and as amended from time to time. The Digital Millennium Copyright Act of 1998, 17 U.S.C. § 512 (the “DMCA”) provides recourse for copyright owners who believe that material appearing on the Internet infringes their rights under U.S. copyright law. If you believe in good faith that any content or material made available in connection with our website or services infringes your copyright, you (or your agent) may send us a notice requesting that the content or material be removed, or access to it blocked. Notices must be sent in writing by email to DMCAnotice@MLSGrid.com. The DMCA requires that your notice of alleged copyright infringement include the following information: (1) description of the copyrighted work that is the subject of claimed infringement; (2) description of the alleged infringing content and information sufficient to permit us to locate the content; (3) contact information for you, including your address, telephone number and email address; (4) a statement by you that you have a good faith belief that the content in the manner complained of is not authorized by the copyright owner, or its agent, or by the operation of any law; (5) a statement by you, signed under penalty of perjury, that the information in the notification is accurate and that you have the authority to enforce the copyrights that are claimed to be infringed; and (6) a physical or electronic signature of the copyright owner or a person authorized to act on the copyright owner’s behalf. Failure to include all of the above information may result in the delay of the processing of your complaint. Listing Information presented by local MLS brokerage: NewHomesMate LLC, DBA Jome (888) 486-2818
Read moreLast checked Jan 20, 3:10 pm
- Jome
- New homes search
- Florida
- Tampa Bay Area
- Hillsborough County
- Tampa
- 814 W Braddock St, Tampa, FL 33603


























