








Book your tour. Save an average of $18,473. We'll handle the rest.
We collect exclusive builder offers, book your tours, and support you from start to housewarming.
- Confirmed tours
- Get matched & compare top deals
- Expert help, no pressure
- No added fees
Estimated value based on Jome data, T&C apply









- 6 bd
- 7 ba
- 4,941 sqft
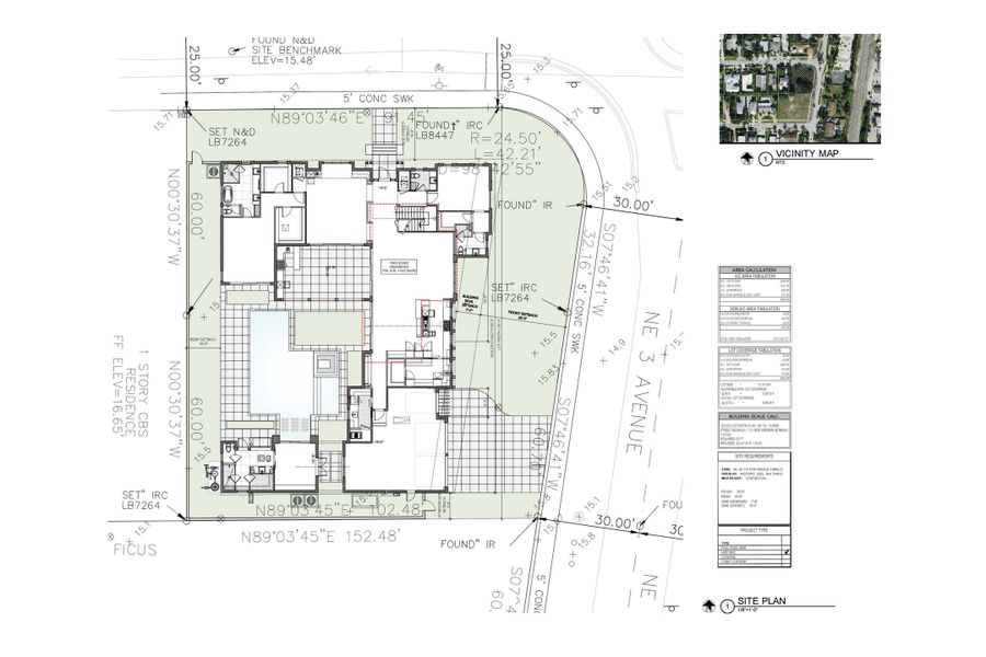
514 NE 3rd Ave, Delray Beach, FL 33444
Why tour with Jome?
- No pressure toursTour at your own pace with no sales pressure
- Expert guidanceGet insights from our home buying experts
- Exclusive accessSee homes and deals not available elsewhere
Jome is featured in
- Single-Family
- Quick move-in
- $404.78/sqft
- East facing
Home description
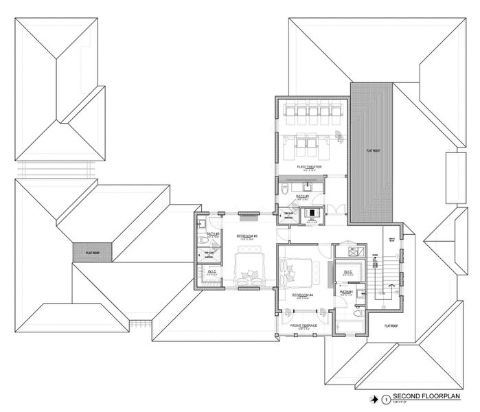
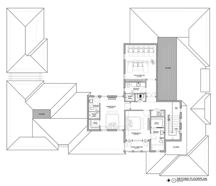
An opportunity to secure a future coastal estate in the heart of Downtown Delray Beach, positioned just four blocks from Atlantic Avenue and less than a mile from the beach. This exceptional 13,165± SF corner lot within the Del Ida Park overlay is offered with award-winning architectural plans by Randall Stofft Architects for a 6,217 total SF (4,941 SF under air) two-story coastal transitional residence. The thoughtfully designed home features six bedrooms, six and a half baths, a resort-style courtyard pool, club/wellness flex space and expansive indoor-outdoor living designed to capture the privacy and lifestyle of the property's unique courtyard layout. Historic review is in its final stage and architectural design is complete, positioning a future owner significantly ahead of the typical new construction timeline in Delray Beach. Architectural plans convey with the sale but are not required to be used. Buyers may modify the design, subject to City approval. Information including prices, measurements, square footages, lot sizes, features, finishes and calculations is subject to errors, omissions, or changes without notice. Buyers should independently verify all information.
Illustrated Properties, MLS R11133859
Information last verified by Jome: Yesterday at 11:19 AM (April 14, 2026)
Home highlights
Book your tour. Save an average of $18,473. We'll handle the rest.
We collect exclusive builder offers, book your tours, and support you from start to housewarming.
- Confirmed tours
- Get matched & compare top deals
- Expert help, no pressure
- No added fees
Estimated value based on Jome data, T&C apply
Home details
- Property status:
- Move-in ready
- Lot size (acres):
- 0.30
- Size:
- 4,941 sqft
- Stories:
- 2
- Beds:
- 6
- Baths:
- 7
- Half baths:
- 1
- Garage spaces:
- 3
- Facing direction:
- East
Construction details
- Year Built:
- 2026
Home features & finishes
- Cooling:
- Central Air
- Flooring:
- Tile Flooring
- Garage/Parking:
- GarageAttached Garage
- Interior Features:
- Walk-In Closet
- Kitchen:
- Kitchen Island
- Pets:
- Pets Allowed
- Property amenities:
- Bar
Room details
Master Bedroom
Kitchen
Living Room

Get a consultation with our New Homes Expert
- See how your home builds wealth
- Plan your home-buying roadmap
- Discover hidden gems
Utility information
- Heating:
- Electric Heating, Central Heating
- Sewer:
- Public Sewer
- Utilities:
- Electricity Available, Natural Gas Available, Sewer Available, Water Available
- Water source:
- Public
Community amenities
- Sidewalks Available
Neighborhood
Home address
- City:
- Delray Beach
- County:
- Palm Beach
- Zip Code:
- 33444
Schools in Palm Beach County School District
- Grades PK-08Privatetrinity evangelical lutheran chrch of del ray bch0.3 mi400 north swinton avenuena
- Grades PK-08Privatest vincent ferrer0.3 mi810 george bush blvdna
GreatSchools’ Summary Rating calculation is based on 4 of the school’s themed ratings, including test scores, student/academic progress, college readiness, and equity. This information should only be used as a reference. Jome is not affiliated with GreatSchools and does not endorse or guarantee this information. Please reach out to schools directly to verify all information and enrollment eligibility. Data provided by GreatSchools.org © 2025
Places of interest
Getting around
Air quality
Noise level
A Soundscore™ rating is a number between 50 (very loud) and 100 (very quiet) that tells you how loud a location is due to environmental noise.
Natural hazards risk
Provided by FEMA

Considering this home?
Our expert will guide your tour, in-person or virtual
Need more information?
Text or call (888) 545-5198
Financials
Estimated monthly payment
Let us help you find your dream home
How many bedrooms are you looking for?
Similar homes nearby
Recently added communities in this area
Nearby communities in Delray Beach
New homes in nearby cities
More New Homes in Delray Beach, FL
Illustrated Properties, MLS R11133859
All listings featuring the BMLS logo are provided by BeachesMLS, Inc. This information is not verified for authenticity or accuracy and is not guaranteed. Information is provided exclusively for consumers’ personal, non-commercial use and may not be used for any purpose other than to identify prospective properties consumers may be interested in purchasing. Copyright © 2025 BeachesMLS, Inc.
Read moreLast checked Apr 15, 6:00 am
- Jome
- New homes search
- Florida
- Miami Metropolitan Area
- Palm Beach County
- Delray Beach
- 514 NE 3rd Ave, Delray Beach, FL 33444

























