













Book your tour. Save an average of $18,473. We'll handle the rest.
- Confirmed tours
- Get matched & compare top deals
- Expert help, no pressure
- No added fees
Estimated value based on Jome data, T&C apply



















- 3 bd
- 2 ba
- 1,248 sqft
3231 State Rd 64 E, Wauchula, FL 33873
Why tour with Jome?
- No pressure toursTour at your own pace with no sales pressure
- Expert guidanceGet insights from our home buying experts
- Exclusive accessSee homes and deals not available elsewhere
Jome is featured in
- Manufactured Home
- Quick move-in
- $200.32/sqft
- South facing
Home description
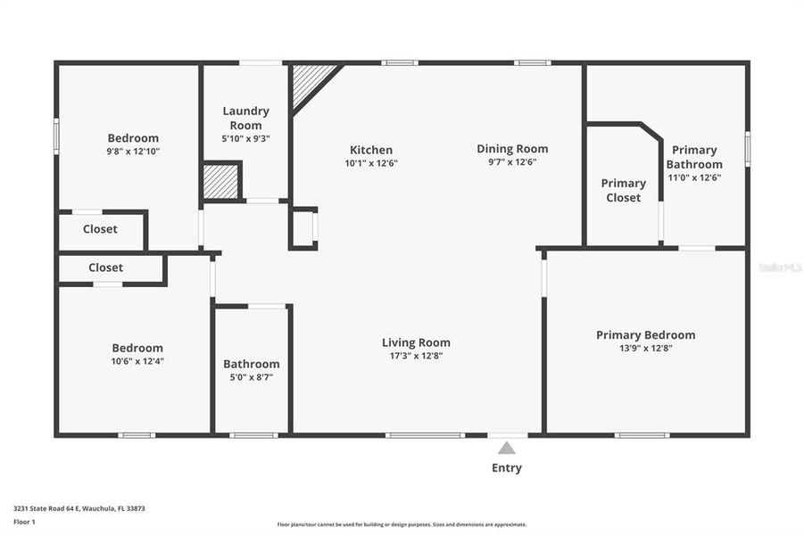
Welcome to your own slice of country paradise in Wauchula, Florida! This 2.09-Acre property offers the perfect blend of peaceful living and modern comfort, complete with a 2024-built 3-bedroom, 2-bath home that feels brand new and ready to enjoy for years to come.
Step inside and you’ll find an open-concept layout designed for easy living and entertaining. The spacious living room offers plenty of natural light and flows effortlessly into the dining area and kitchen, creating a warm and inviting atmosphere.
The kitchen is a true highlight—featuring a center island for prep space, a sleek subway tile backsplash, deep sink, and stainless steel appliances that add a polished, modern touch.
The split-bedroom floor plan provides ideal privacy, with the primary suite tucked away for a relaxing retreat. The primary bedroom includes a walk-in closet and an en-suite bath with dual sinks, a garden soaking tub, and a separate shower—the perfect spot to unwind after a long day.
Outside, you’ll love the wide-open space that this 2-acre property provides—plenty of room for a garden, workshop, or simply to spread out and enjoy the peaceful surroundings. Whether you’re looking for a full-time residence or a quiet getaway, this home delivers space, comfort, and the freedom to live life your way.
Septic 2024 and well with flushed and new pump in 2024.
Everything is NEW and Move-in ready—offering peace of mind and low maintenance for years to come. Come experience the charm and convenience of Wauchula living with the modern upgrades you’ve been looking for!
KELLER WILLIAMS SUBURBAN TAMPA, MLS TB8438185
Information last verified by Jome: Today at 10:13 AM (February 3, 2026)
Book your tour. Save an average of $18,473. We'll handle the rest.
We collect exclusive builder offers, book your tours, and support you from start to housewarming.
- Confirmed tours
- Get matched & compare top deals
- Expert help, no pressure
- No added fees
Estimated value based on Jome data, T&C apply
Home details
- Property status:
- Move-in ready
- Lot size (acres):
- 2.09
- Size:
- 1,248 sqft
- Stories:
- 1
- Beds:
- 3
- Baths:
- 2
- Facing direction:
- South
Construction details
- Year Built:
- 2024
- Roof:
- Shingle Roofing
Home features & finishes
- Construction Materials:
- Vinyl Siding
- Cooling:
- Ceiling Fan(s)Central Air
- Flooring:
- Linoleum Flooring
- Foundation Details:
- Crawl Space
- Interior Features:
- Walk-In ClosetCrown Molding
- Kitchen:
- DishwasherRefrigeratorKitchen Range
- Laundry facilities:
- Utility/Laundry Room
- Pets:
- Pets Allowed
- Rooms:
- Primary Bedroom On MainOpen Concept FloorplanPrimary Bedroom Downstairs

Get a consultation with our New Homes Expert
- See how your home builds wealth
- Plan your home-buying roadmap
- Discover hidden gems
Utility information
- Heating:
- Central Heating
- Utilities:
- Electricity Available
Neighborhood
Home address
Schools in Hardee County School District
- Grades KG-05Publichardee virtual instruction program (district provided)5.7 mi1009 north 6th avenuena
GreatSchools’ Summary Rating calculation is based on 4 of the school’s themed ratings, including test scores, student/academic progress, college readiness, and equity. This information should only be used as a reference. Jome is not affiliated with GreatSchools and does not endorse or guarantee this information. Please reach out to schools directly to verify all information and enrollment eligibility. Data provided by GreatSchools.org © 2025
Places of interest
Getting around
Air quality
Natural hazards risk
Provided by FEMA

Considering this home?
Our expert will guide your tour, in-person or virtual
Need more information?
Text or call (888) 486-2818
Financials
Estimated monthly payment
Let us help you find your dream home
How many bedrooms are you looking for?
Similar homes nearby
Recently added communities in this area
Nearby communities in Wauchula
New homes in nearby cities
More New Homes in Wauchula, FL
KELLER WILLIAMS SUBURBAN TAMPA, MLS TB8438185
Based on information submitted to the MLS GRID as of 10/21/2024 2:31 PM CDT. All data is obtained from various sources and may not have been verified by broker or MLS GRID. Supplied Open House Information is subject to change without notice. All information should be independently reviewed and verified for accuracy. Properties may or may not be listed by the office/agent presenting the information. Some IDX listings have been excluded from this website. Properties displayed may be listed or sold by various participants in the MLS. IDX information is provided exclusively for personal, non-commercial use, and may not be used for any purpose other than to identify prospective properties consumers may be interested in purchasing. Information is deemed reliable but not guaranteed. Use of the MLS GRID Data may be subject to an end user license agreement prescribed by the Member Participant’s applicable MLS if any and as amended from time to time. The Digital Millennium Copyright Act of 1998, 17 U.S.C. § 512 (the “DMCA”) provides recourse for copyright owners who believe that material appearing on the Internet infringes their rights under U.S. copyright law. If you believe in good faith that any content or material made available in connection with our website or services infringes your copyright, you (or your agent) may send us a notice requesting that the content or material be removed, or access to it blocked. Notices must be sent in writing by email to DMCAnotice@MLSGrid.com. The DMCA requires that your notice of alleged copyright infringement include the following information: (1) description of the copyrighted work that is the subject of claimed infringement; (2) description of the alleged infringing content and information sufficient to permit us to locate the content; (3) contact information for you, including your address, telephone number and email address; (4) a statement by you that you have a good faith belief that the content in the manner complained of is not authorized by the copyright owner, or its agent, or by the operation of any law; (5) a statement by you, signed under penalty of perjury, that the information in the notification is accurate and that you have the authority to enforce the copyrights that are claimed to be infringed; and (6) a physical or electronic signature of the copyright owner or a person authorized to act on the copyright owner’s behalf. Failure to include all of the above information may result in the delay of the processing of your complaint. Listing Information presented by local MLS brokerage: NewHomesMate LLC, DBA Jome (888) 486-2818
Read moreLast checked Feb 3, 3:10 pm
- Jome
- New homes search
- Florida
- Hardee County
- Wauchula
- 3231 State Rd 64 E, Wauchula, FL 33873


























