














Book your tour. Save an average of $18,473. We'll handle the rest.
- Confirmed tours
- Get matched & compare top deals
- Expert help, no pressure
- No added fees
Estimated value based on Jome data, T&C apply











- 3 bd
- 2.5 ba
- 2,047 sqft
6183 1St Ave N, St. Petersburg, FL 33710
Why tour with Jome?
- No pressure toursTour at your own pace with no sales pressure
- Expert guidanceGet insights from our home buying experts
- Exclusive accessSee homes and deals not available elsewhere
Jome is featured in
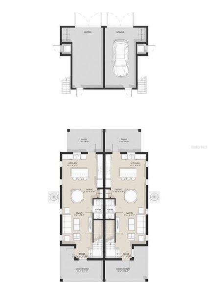
- Duplex
- Ready by April 2026
- $350.27/sqft
- South facing
Home description
Pre-Construction Farmhouse Duplex with Income-Generating ADU
Spring 2026 Delivery | Only 4 Units Remaining
Prime Investment Opportunity in Non-Flood Zone
Experience modern coastal living with this beautifully designed farmhouse-style duplex, featuring a 3BR/2.5BA main residence plus a 400+ sq ft ADU (Accessory Dwelling Unit) above the garage. The ADU offers projected rental income of $1,200–$1,500/month, providing an exceptional opportunity to offset your mortgage or generate steady passive income.
Location Highlights:
Situated in a non-flood zone, this elevated property offers peace of mind and long-term value. Minutes from Gulf beaches, Downtown St. Petersburg, and only 30 minutes to Tampa International Airport. Enjoy walkable access to transit, trails, shops, and dining.
Premium Features:
Open-concept living with gourmet kitchen
Quartz countertops & stainless-steel appliances
Primary suite with walk-in closet
Luxury vinyl plank flooring throughout
Impact-resistant windows & energy-efficient construction
Private fenced yard & 1.5 -car garage
ADU Income Potential:
Independent entrance, full kitchen and bath, and flexible living area ideal for rental income, extended family, or a home office.
Investment Benefits:
Dual income potential (main home + ADU), pre-construction pricing, and high rental demand in one of Florida’s fastest-growing coastal markets. Enjoy the advantages of modern construction, builder warranties, and no flood insurance requirement.
Built by Kelner Homes, a premier design-build firm specializing in coastal residential construction throughout the Tampa Bay Area. Kelner Homes manages every phase of development — from design and permitting to construction and final completion. Their streamlined approach ensures clear communication, efficient timelines, and a finished home tailored to each client’s vision while meeting all local coastal building requirements.
Secure your position in this exclusive limited release today.
Perfect for investors or owner-occupants seeking a stylish, income-producing property in Florida’s most desirable coastal region.
Pre-construction pricing available now | Summer 2026 completion
BRIGHTWELL REALTY & MANAGEMENT, MLS TB8438482
May also be listed on the Kelner Homes website
Information last verified by Jome: Yesterday at 10:09 AM (December 5, 2025)
Home highlights
MacDill AFB offers secure housing, top-rated schools, and abundant amenities in vibrant South Tampa.
Book your tour. Save an average of $18,473. We'll handle the rest.
We collect exclusive builder offers, book your tours, and support you from start to housewarming.
- Confirmed tours
- Get matched & compare top deals
- Expert help, no pressure
- No added fees
Estimated value based on Jome data, T&C apply
Home details
- Property status:
- Under construction
- Lot size (acres):
- 0.26
- Size:
- 2,047 sqft
- Stories:
- 1
- Beds:
- 3
- Baths:
- 2
- Half baths:
- 1
- Garage spaces:
- 1
- Facing direction:
- South
Construction details
- Builder Name:
- Kelner Homes
- Completion Date:
- April, 2026
- Year Built:
- 2026
- Roof:
- Shingle Roofing
Home features & finishes
- Construction Materials:
- Concrete
- Cooling:
- Central Air
- Flooring:
- Ceramic FlooringVinyl FlooringTile Flooring
- Foundation Details:
- Slab
- Garage/Parking:
- Garage
- Interior Features:
- Ceiling-High
- Kitchen:
- DishwasherMicrowave OvenRefrigeratorDisposal
- Laundry facilities:
- DryerWasherLaundry Facilities In ClosetUtility/Laundry Room
- Property amenities:
- Sidewalk
- Rooms:
- Primary Bedroom On MainFamily RoomPrimary Bedroom DownstairsPrimary Bedroom Upstairs
Utility information
- Heating:
- Electric Heating, Water Heater
- Utilities:
- Electricity Available, Water Available
Community amenities
- City View
About the builder - Kelner Homes
Neighborhood
Home address
- City:
- St. Petersburg
- County:
- Pinellas
- Zip Code:
- 33710
Schools in Pinellas County School District
GreatSchools’ Summary Rating calculation is based on 4 of the school’s themed ratings, including test scores, student/academic progress, college readiness, and equity. This information should only be used as a reference. Jome is not affiliated with GreatSchools and does not endorse or guarantee this information. Please reach out to schools directly to verify all information and enrollment eligibility. Data provided by GreatSchools.org © 2025
Places of interest
Getting around
6 nearby routes: 6 bus, 0 rail, 0 otherAir quality
Natural hazards risk
Climate hazards can impact homes and communities, with risks varying by location. These scores reflect the potential impact of natural disasters and climate-related risks on Pinellas County
Provided by FEMA

Considering this home?
Our expert will guide your tour, in-person or virtual
Need more information?
Text or call (888) 486-2818
Financials
Similar homes nearby
Recently added communities in this area
Nearby communities in St. Petersburg
New homes in nearby cities
More New Homes in St. Petersburg, FL
BRIGHTWELL REALTY & MANAGEMENT, MLS TB8438482
Based on information submitted to the MLS GRID as of 10/21/2024 2:31 PM CDT. All data is obtained from various sources and may not have been verified by broker or MLS GRID. Supplied Open House Information is subject to change without notice. All information should be independently reviewed and verified for accuracy. Properties may or may not be listed by the office/agent presenting the information. Some IDX listings have been excluded from this website. Properties displayed may be listed or sold by various participants in the MLS. IDX information is provided exclusively for personal, non-commercial use, and may not be used for any purpose other than to identify prospective properties consumers may be interested in purchasing. Information is deemed reliable but not guaranteed. Use of the MLS GRID Data may be subject to an end user license agreement prescribed by the Member Participant’s applicable MLS if any and as amended from time to time. The Digital Millennium Copyright Act of 1998, 17 U.S.C. § 512 (the “DMCA”) provides recourse for copyright owners who believe that material appearing on the Internet infringes their rights under U.S. copyright law. If you believe in good faith that any content or material made available in connection with our website or services infringes your copyright, you (or your agent) may send us a notice requesting that the content or material be removed, or access to it blocked. Notices must be sent in writing by email to DMCAnotice@MLSGrid.com. The DMCA requires that your notice of alleged copyright infringement include the following information: (1) description of the copyrighted work that is the subject of claimed infringement; (2) description of the alleged infringing content and information sufficient to permit us to locate the content; (3) contact information for you, including your address, telephone number and email address; (4) a statement by you that you have a good faith belief that the content in the manner complained of is not authorized by the copyright owner, or its agent, or by the operation of any law; (5) a statement by you, signed under penalty of perjury, that the information in the notification is accurate and that you have the authority to enforce the copyrights that are claimed to be infringed; and (6) a physical or electronic signature of the copyright owner or a person authorized to act on the copyright owner’s behalf. Failure to include all of the above information may result in the delay of the processing of your complaint. Listing Information presented by local MLS brokerage: NewHomesMate LLC, DBA Jome (888) 486-2818
Read moreLast checked Dec 5, 9:10 pm
- Home
- New homes
- Florida
- Tampa Bay Area
- Pinellas County
- St. Petersburg
- 6183 1St Ave N, St. Petersburg, FL 33710





























